去他的斷舍離!她將90㎡家全部塞滿,卻井井有條,讓人看了很過癮
說起現在的裝修,有個詞很火,那就是“斷舍離”,講究的是透過扔扔扔,來減少家中不必要雜物的堆積,從而實現乾淨整潔的效果。
但是有的時候,當一種現象被反覆熱炒,往往就變了質,甚至脫離了實際,畢竟一個充斥著人間煙火味的家,怎麼可能做到“空無一物”,沒有雜物的堆積?
所以本案這位女主,不僅將90㎡家,全部塞滿,放下了將近5000本書和2000個手辦,而且還能堅持衛浴四分離設計的同時,實現井井有條的效果,難怪令人看了大呼過癮,簡直堪稱收納狂魔,不信一起來看看吧。
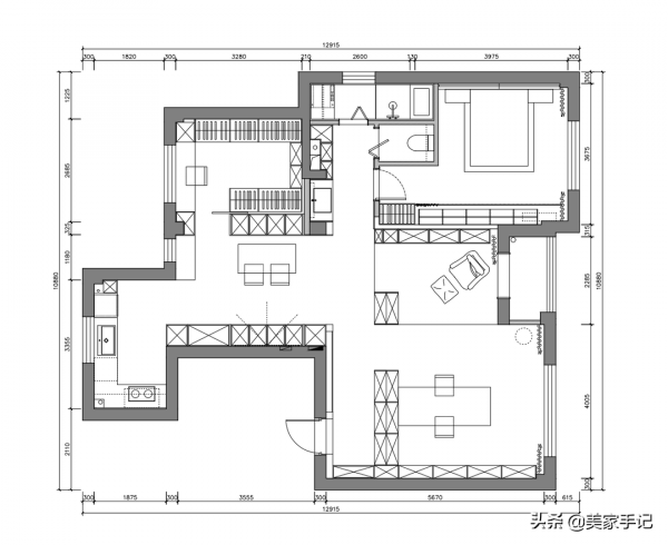
    平面圖
女主是漫畫師,從日本留學歸國,為了給自己一個更好的工作環境,決定對這套老房子進行一個改造,實現職住一體的效果,而原戶型的功能佈局雖說還不錯,但顯然不符合自己的居住需求。
基於此,為提高利用率,女主堅持利用玄關和走廊,打造了一個6米的書架長廊,一方面劃分了不同空間,界定了左側的生活區和右側的工作區,另一方面也為室內增添更多收納機能的同時,避免了入戶開門直對室內,導致的隱私問題。當然,客餐廳一體化和四分離的衛浴設計都不錯。
最後對比一下改造前後的戶型圖。
    入戶:下沉式玄關
現在看實景。入戶進門利用地暖抬高地面產生的高低差,做了一個塑膠材質的下沉式玄關,如此不僅劃分了空間,還能作為落塵區,方便清潔打理衛生。至於鞋櫃的層板,可以收納大量的鞋子。
站在走廊盡頭往對面的入戶玄關看,可以發現進門的右手邊還設定了一組頂天立地櫃。
開啟櫃門後可以發現暗藏玄機,比如方便進出門整理衣著形象和儀容儀表的穿衣鏡,又如可抽拉的換鞋凳等等,不僅細節考慮周到,重要的是還不佔地。
另外,換鞋凳的坐面是可以上翻的,底部有抽屜收納了屋主用來換季的鞋子,包括上面一層的隔板也是。
其它就是用來掛放衣物的地方。
    書架長廊
站在玄關看書架長廊,其中左側作為展示區,擺滿了女主收藏了多年的原畫,以及各種喜歡的漫畫家的親筆簽名,而右側是藏書區,琳琅滿目的書籍無疑營造了一個書香雅韻的氛圍,讓人一回家就能靜下心來。至於對面盡頭是浴室,這個我們待會再講。
    工作區
沿著書架長廊右轉,來到眼前的工作區,原本這裡是客廳,但屋主想要一個採光好的南向辦公地點,就改成了現在的模樣,即一組L形的轉角書櫃,加上居中擺放的書桌,並在柔美窗簾和明媚光線的烘托下,頓時就有了一種歲月靜好的氛圍感。
而這種被書包裹的感覺,不僅令人感到心裡踏實,也能更快地進入工作狀態。
書桌上還用透明的亞力克盒子,裝滿了各種用來畫畫的模型和其它零碎小物件等等。
    廚房
廚房裝修可謂是掌握了日式住宅的精髓和智慧,比如在實用主義至上理念的驅動下,牆面捨棄了傳統的瓷磚材質,改用鋼化玻璃+軟白板作為防濺牆,好處在於它光滑的表面不易沾染油汙,即便有,輕輕一擦也能實現光亮如新的效果,這樣可以大大減輕家務負擔。
再一個是動線佈局合理,從最右側的冰箱拿取食材,到水槽區域清洗,再到旁邊的操作檯加工,最後到灶臺烹飪,整個動線一氣呵成,十分流暢。
細節方面,操作檯下方以抽屜為主,好處在於一經拉開,所有碗碟和各種餐具都能起到一目瞭然的拿取效果。反觀普通的對開門,需要你蹲下身子,不斷探著頭去找,這樣時間久了雙腿容易發麻不說,還會感覺到特別的累。
另外就是檯面和其它地方準備了各種收納好物,進而保證了廚房的乾淨清爽。
這個是廚房左側收納各種小家電的地方。
    客餐廳
如前所述,為提高利用率,滿足職住一體的居住需求,屋主將客餐廳結合在一起設計,加上勾連在一起的廚房,整體佈局為LDK的一體化結構。
至於裝修本身,左側的電視牆定製了白色的整體櫃,然後中間預留了凹位掛放電視機,這樣既滿足了影音方面的需求,也為室內增添了更多的收納機能。當然,白色的免拉手櫃門也弱化了體積感;而右側餐廳,透過卡座和櫃體實行一體化的設計來提高利用率,加上木質結構的輕巧餐桌,可以一邊吃飯一邊追劇,這沉浸式的體驗感,簡直爆棚。
餐廳還在靠窗的地方設定了這麼一個木質的水吧檯,用來休閒觀景什麼的,很愜意。
    臥室
臥室在硬裝上幾乎可以用家徒四壁來形容,因為只刷白色的乳膠漆,然後不造型不裝飾。軟裝的話以地臺床為主,而且它是結合懸空的床頭櫃一體化設計的,好處在於清潔衛生變得方便了很多。
床尾用了宜家的博阿克塞系列做了系統收納,以便於屋主可以將各種藏品放上去,同時裝了掛簾來達到一個乾淨整潔的效果。
補充一下主臥進門的視角,整體採光還不錯。
    休閒室
休閒室在工作區的對面,屋主將地面抬高了15公分用以功能分割槽,同時設定了大面積的玻璃櫃擺滿各種手辦,要知道,任何一件事物,對於一個愛好它的人來說,看著這種琳琅滿目的效果,都有一種欣賞戰利品般的感覺,令人心生愉悅。同時,據設計師介紹,屋主有朋友來了也可以在這區域留宿。
    衣帽間
衣帽間在餐廳的左側,原本是作為北臥室存在的,但更改後的佈局就成了現在的樣子。
具體我們看實景。可以發現右側是一組L形的轉角衣櫃,有效彌補了主臥沒有衣櫃帶來的收納問題。
右側的話靠窗設定了梳妝檯。
    四分離衛浴
沿著通往主臥的走廊,可以看到眼前的四分離衛浴。
這裡我們先來看洗漱區,之所以這麼設計,最大的好處就是提高了使用效率,即各個空間相互獨立,互不影響。另外,浴室櫃下方懸空,用來收納電子秤和掃地機器人。
這個是鏡櫃,且左右兩邊都設定了頂天立地櫃作為家政區,如此各種清潔工具和雜物通通都能收納進去,進而保持乾淨整潔、井井有條的效果。
開啟磨砂玻璃門來到淋浴區,左側擺放了洗衣機,用以解決衣物清洗的需求,完後再拿到休閒室右側的小陽臺完成晾曬。同時,這裡也是洗澡時,更換衣物的地方。
浴室。緊湊的空間內,除設定花灑用來淋浴,還擺放了小浴缸作為深泡池。
馬桶區,整體沿襲了日式裝修的風格,一樣有壁櫃和腳凳。
    陽臺
如前所述,在休閒室的右側,主要解決衣物晾曬和家政工具收納的需求。
一些細節。
    設計圖VS實景圖
最後對比一下設計圖和實景圖。
可以說這位女主,在斷舍離理念和極簡風盛行的今天,不僅勇於打破常規,把家塞得滿滿當當,還在這種情況下,把屋子收拾得井井有條,且處處都充滿了各種人性化的設計和小細節,這是難能可貴的,所以喜歡的不妨參考一下。(注:本案文字原創,圖片來源於不作設計工作室@孔祥雪,如有侵權,請聯絡刪除)
想了解更多精彩內容,快來關注@美家手記































































 
			 
			 
			 
			 
			 
			 
			 
			 
			 
			 
			 
			 
			 
			 
			 
			 
			