今天為大家推薦的作品
來自好好住認證設計師@犀宅原創設計師
這套118㎡的房子位於上海嘉定,業主用來做婚房,小姐姐的夢想是家裡能有一個榻榻米。設計師保留了兩個臥室,將書房做成全屋榻榻米,關上門可以作為臥房使用,開啟後平時業主兩個人在這裡喝茶、看書,週末還可以在這裡與朋友一起轟趴,成為屋主小姐姐最喜歡的一個空間。
一起來看看吧!
房屋資訊
戶型 3 室
使用面積 118 ㎡
裝修花費 53.0 萬元
房屋位置 上海 嘉定
01
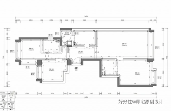
戶型圖
原始戶型是三室一廳兩衛,但廚房很小,次臥缺少儲物空間,兩個衛生間都是浴缸形式,結構和功能上都有很多不滿意的地方需要設計師改造。
業主說家裡目前兩口人住,近兩年會升級為三口之家,雙方父母到時也會輪流來上海一起住一段時間。結合業主需求考慮我們主要做了幾點改動:
1、滿足業主對榻榻米的情結,將書房做成整體榻榻米,只保留兩個臥室;
2、利用小陽臺,將廚房變成中西廚形式,同時放大廚房、客餐廳空間感,也更符合業主的生活習慣;
3、去除不必要的浴缸,將次衛改成乾溼分離,幹區從衛生間內部解放放至走道處,既讓日常使用更便利,還讓渡了一部分空間給次臥,增加了次臥收納空間。
02
客廳
業主小姐姐說小時候看櫻桃小丸子,覺得家裡能有一個榻榻米簡直是夢想啊,很自然的家裡的風格基調就定位成日式簡約風啦。
整體以白色、原木色為主,再搭配一些灰色、霧藍色等,營造溫馨舒適的感覺,打造最純正的日式風格,同時在軟裝上增添一些有趣的元素,不至於過於單調乏味。強烈推薦北歐風情的沙發,特別舒適寬敞,且看起來簡單大氣,看著就讓人有躺上去的衝動。
為了和整體風格更加統一,飄窗上沒有用大理石窗臺,而是鋪上原木色窗臺板打造成休閒區。拍攝當天天公作美,陽光明媚,透過紗簾折射下斑駁的光影,客廳呈現出一派安寧祥和。飄窗下也細心地預留了兩個插座,在這樣美好的氛圍裡,迎著初冬的暖陽,窩在單人沙發刷刷手機,看看劇,想想都很美。
電視牆整體向主臥後推,增加了一整排電視櫃。專門設定了一列展示櫃,從頂端延伸至地面,可以放業主小姐姐精心挑選的各種盲盒手辦。同時結合了原木色開放格,讓整個背景牆更有層次感。
展示櫃也內建了燈帶,無論白天還是黑夜,展示櫃都是客廳最吸引人的空間。整體看起來琳琅滿目,讓人滿足而喜悅。
開燈效果圖片。
不知道是家裡裝飾性的擺件不多,還是攝影師的偏愛,無臉怪多次傾情出鏡。
03
餐廳
因為廚房太小,整體呈L型,感覺很狹窄,無法放置雙開門冰箱。所以最初溝通時業主是想改造成開放式廚房,但同時又考慮到平時會經常做飯,需要在使用時將廚房和外部空間能靈活隔離。所以我們設計了中西廚的形式,中廚使用時可以透過推拉門來隔斷,平時推開也不影響空間感。
一些小家電和冰箱收納在西廚區域,為中廚留出了更多的空間,增加了洗碗機、垃圾處理器、蒸烤箱等廚房電器,兩個人可以嘗試的菜餚選擇更多了,客廳也因此顯得更加寬敞明亮。島臺上也特別設計了兩個插座,如果需要充電、吃火鍋特別方便。島臺上方T字型吊頂結構上稍顯突兀,我們特別選擇和櫃體板同色系木紋紙貼飾,和立面形成呼應,讓餐區視覺上更完整,也讓兩邊走道形成區域劃分。
改造成中西廚房之後,操作空間更大。業主小姐姐也可以在西廚幫助先生備菜,兩個人配合起來更融洽,做烘焙、煮咖啡或偶爾在中島吧檯上愜意的聊天喝酒,這裡也是男業主最滿意的區域。
西廚上櫃底部也嵌入了燈帶,烘托氛圍,也避免了晚上背光操作。餐桌旁是業主新添的軟木板,靜待隨著美好生活的展開慢慢豐富起來。
因為把小陽臺利用上了,而且中廚開門位置也有所調整,改造後擁有了一個U型的櫥櫃,收納和操作都方便了很多。
04
臥室
主臥簡簡單單,以自然、溫馨為主,床頭背景是低飽和度的霧藍色,低調耐看。
因為開間尺寸限制,床的一側放了梳妝檯兼作床頭櫃之用。
05
次臥
全屋比較大的一點改造就是次臥的收納空間。雖然因為面積和朝向優勢我們把南臥室作為主臥,但其實擁有兩面飄窗的次臥是全屋窗景最棒的位置。業主小姐姐說之前看過有的鄰居將一個飄窗改造成了衣櫥,感覺這樣完全失去了兩個飄窗的意義。
於是我們把次衛浴缸拆除,洗手檯移至走廊上,讓洗手間用起來更便利的同時還把空間讓了一部分給次臥,為次臥增加了衣櫥,保留了雙飄窗,還形成了乾溼分離。
走廊的另一側就是業主小姐姐心心念唸的榻榻米了
06
書房
書房改造成全屋榻榻米,關上門非常雅緻,開啟門別有洞天,可以在榻榻米上與朋友一起轟趴。平時兩個人可以喝喝茶、看看書,點上香薰,好不愜意。以後有寶寶了,可以在榻榻米上爬,成為寶寶的活動區,關起門來也很安全,業主小姐姐說這裡是自己最喜歡的一個空間了。
這裡也作為收納空間的補充,以後有必要還可以作為臥房使用。
07
衛生間
來自業主小姐姐的無私推薦雅列的淋浴套裝非常驚喜,材質是全銅的,有一定分量感,手感極佳順滑;它由花灑,噴頭,噴槍組成,功能強大,水流強勁。
