這次要給大家分享的裝修案例,是一套非典型的極簡風格裝修。之所以這麼說,是因為以往看到的極簡風格,大多以“黑白灰”格調為主,雖然看上去毫無累贅,但也過於肅穆冷淡。而這套案例,算是我見過最為溫馨的極簡裝修案例,屋內融入了大量木色系,中和了黑與白的單調,真心不錯!
屋主是一對追求極簡生活的上海夫婦,房子有106㎡,做工精湛值得細細品味,為了更精細的做邊角收口,全屋連踢腳線都捨棄了,不得不說效果的確很高階。作為觀者,一進屋讓我覺得場面極度舒適,夫妻倆的極簡生活簡單又幸福,一起來看看吧!(圖源:木卡工作室@木木卡)
    設計內容
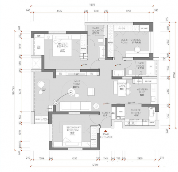
▲戶型設計圖
106㎡為屋內實測的精準使用面積,至於公攤資料不詳,大家可以結合上圖的尺寸和佈局評估一下,平面圖可以點選放大詳細參考。
▲材質色彩分析
屋內色調主要以木色、黑、白、灰綠為主,其中木色系包含了櫸木色,植鞣皮革棕色和橡木色。灰綠色以水磨石和老竹色呈現。白色以鏡面白和亞光白為主,黑色則以拉絲黑為主。
    屋內實景
▲玄關,正對入戶視角
鏡頭深處的黑色大門就是入戶門,左手邊緊挨著廚房結構,打造了嵌入式的壁櫥鞋櫃,中底鏤空的設計,以橡木色和啞光白結合,打造輕鬆舒適的簡約層次感,無拉手設計更顯極簡大氣,從外觀看沒有絲毫累贅感,又能呈現相對溫馨的層次感。右手邊用橡木色KD板裝飾沙發背景牆,大面積的木色系,中和了黑白兩色,帶來更強烈的居家氛圍。
鞋櫃對面,就是一進屋左手邊的次臥室,把木色裝飾牆面延伸到此處,把房門藏入背景當中,設隱形門。讓入戶區域的視覺框架感更少,更顯大氣簡約。
走過玄關,沿著走廊向前走,可直達臥室門口的玄關區,此處直接用壁掛式的圓形組合背光燈做裝飾,烘托出非常溫馨高階的氛圍。過道處的吊頂適當下沉,嵌入軌道型筒燈,淺淺的線條感更加更夠拉伸空間的大氣效果。左側為客廳,右側為餐廳,層次色塊對比鮮明,十分乾練。
▲客廳
乾淨、敞亮,雖說整體效果十分極簡,但木色系佔據了整個空間色調的二分之一,整體呈現了一種暖色調,立馬中和了電視背景牆的黑與白。
房子的採光很棒,客廳外面的陽臺也打通了,一整面落地窗毫無遮擋,使得屋內通透大氣。無主燈的設計也倍顯簡約,打造出超強空間感。
極簡的生活,並不意味著“不食人間煙火”,而是不給“雜亂場面”留下任何可乘之機。
家中也有諸多雜物,例如大量的書籍、隨手件等物品。整個電視牆區域就被完美利用起來,用黑白兩色打造了兼備觀影和收納的儲物牆。
牆體以黑色櫃體為基礎,輔以順滑的極簡頂天立地推拉門,只需輕輕挪動,就能順暢開合,櫃門向右推就可以開啟書架,隨手存取書籍方便極了。
若是保持原來的樣子,則是一個標準的電視牆效果,中間的黑色區域,擺放電視機,讓電器和背景融為一體,一黑一白讓空間得到極大拉伸,上下方分別是吊櫃和電視櫃,收納空間不容小覷。
正是因為有了諸多隱形式的收納空間,才可以保證雜物都能有序存放,只要養成隨手收納的好習慣,家中就能時常保持簡單高效的生活場面。
圓形的組合型茶几,材質和色調都能和家中的主色系相呼應,正圓的造型也能保證,未來家裡有了小朋友的話,減少孩子跑跳時的磕碰。
植鞣棕皮革的竹沙發,坐感鬆軟舒適,整體質感復古又上檔次,和背景牆的木色系也很搭。
沙發背景牆的頂角線區域,嵌入了高階感很強的暖光燈帶做收口,如此一來又能更進一步的拉伸空間。
▲客廳陽臺
陽臺大面積留空,僅擺放一組單椅和一個小書架,閒暇時分,拿出電視櫃中的書籍,坐在這裡閱讀一番,累了閉著眼睛小睡一下,好放鬆,好愜意。
最左邊安裝了洗衣機和烘乾機,吊頂做嵌入式的隱形升降晾衣架。平時不用的時候,站在客廳區根本察覺不到這裡可以洗衣晾曬。
提到收口,真心是這套裝修案例最大的亮點。最典型的傳統收口方式,就是利用踢腳線遮住牆地面銜接的區域,其實筆者問過資深的油漆工師傅和資深設計師,利用踢腳線收口,其實是一個相對討巧又偷懶的方式,這樣油漆工在塗刷乳膠漆的時候就不必在意底部銜接問題了,直接用踢腳線就可以遮醜。而這套案例追求了更精湛的工藝效果,直接捨棄踢腳線,這對施工人員的技能要求將會更高。
▲餐廳
餐廳區的右側也有一個小陽臺,打通後改造成附屬於餐廳和廚房的西廚區域,在此處也裝了不少隱形收納櫃,並嵌入了烤箱安裝了水吧檯,滿足了屋主夫婦更豐富的飲食需求和收納需求。
▲廚房
廚房是獨立的,和餐廳之間有玻璃推拉門隔開。這裡重點說1個小細節,就是水槽區和炒菜區的高低錯位,多數人都懂得這個錯位的目的,其實就是為了匹配人機工程學,符合人體操作的舒適度,若是不懂也可以在評論區留言。
▲餐廳看客廳視角
南北通透,澄明敞亮,乾淨簡約,很喜歡這種帶有濃烈木色調的極簡之家,簡約不失溫馨!
▲主衛
主衛的洗漱臺側面裝了摺疊美容鏡,有放大效果,方便女主護膚。鏡子左側的收口處嵌入了燈帶,為了避免曝光所以就熄燈拍攝了,實際開啟燈這裡非常明亮。
▲公衛
主衛和公衛的格局類似,都是把洗漱臺外接,內部做了乾溼分離,同時也都利用老竹綠的背景色做了隱形門處理,區別在於主衛內是淋浴房,公衛內是浴缸,主衛幹區用的是木紋瓷磚,公衛幹區用的是水磨石鋪貼。
公衛使用頻率更高,所以此處的鏡子考慮到收納裝了鏡櫃的模式。
和主衛洗漱臺區分開來,這裡選擇了臺下盆,主要是為了和主衛有些對比。
▲衣帽間、書房
靠近主臥的一間房,改造成了獨立的書房,其次這裡也兼備衣帽間。
左側和正面是一組L型的頂天立地隱形衣櫃,最右側則用黑色區域區分開來,裝上鏡櫃,內部收納男主的各種AJ鞋。
對面是一組雙人位的大書桌,採用定製懸掛的模式,減少底部的桌腿,效果極簡而且打掃更方便。
吊櫃的書架底部也嵌入了輔助光源,明亮又好看。
▲主臥
主臥延續了客廳的裝修格調,利用了同樣橡木色的背景牆+暖光源燈帶設計,並嵌入了豎線條造型,大氣簡約又溫馨。
兩側的床頭櫃,也採用了一體式定製懸空模式。
底部鏤空,視覺效果更輕盈,更利於打掃。無床頭靠背的設計,意味著整個背景牆都是靠背,用抱枕替代就可以,大氣極了。
左側飄窗一角,下圖為主臥右側的隱形衣櫃。
最後,說一說大家可能會關心的問題。沒有踢腳線,如何打掃衛生,拖地的時候會不會弄髒牆面。其實不必擔心,家中有掃地機器人、拖地機、靜電除塵紙,這些家居神器不僅可以快速的打掃衛生,還可以保證不弄髒牆面。那麼本案就分享到這裡了,在這裡也感謝設計師的優質裝修案例,並祝福屋主一家人和各位讀者都能越來越幸福,希望給大家一些參考,感謝閱讀!



































 
			 
			 
			 
			 
			 
			 
			 
			 
			