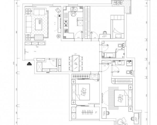
家不僅是一套房子,還是情感與愛的交融之所,它像一個有溫度的媒介,關照生活與成長互動,記錄空間故事,傳達居者的個性與態度。
客廳效果圖及設計說明
整體空間採用白色調為主,搭配淡淡的暖色乳膠漆,金屬線條點綴,簡約不簡單,把輕奢展現得淋漓盡致。
餐廳效果圖及設計說明
寬大的餐廳區域,透過設計師魔改之後,不僅在多出了一個儲物間的同時,餐邊櫃與儲物間的完美結合,讓一切都顯得那麼自然。更重要的是,現有用餐空間一點也不侷促。依然那麼寬闊。
臥室效果圖及設計說明
延續整體的色彩與風格基調,主臥空間典雅精緻的觀感,在暖灰的鋪敘下,金色配飾的點綴,象徵著生活的熱情與活力。
玄關
入戶門正對客廳窗戶,在解決此問題的同時,也解決了女業主大量鞋子收納的問題。超大換鞋凳、超寬超高的鞋櫃、再加上一個超高的出門鏡,又有哪個女業主能夠不喜歡呢?
