前言
屋主是一對兒年輕人,除了日常規律的上下班外,他們是很喜歡在休息日裡把好朋友喊到家裡一起玩兒的,可以一起做飯、一起打遊戲。 在現今物質十分豐富的情況下,他們更期待的是一種簡潔明瞭的居住氛圍。
空間展示
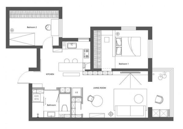
戶型圖
改造前戶型分析:
1.兩個臥室十分方正,主臥採光充足。
2.廚房空間狹小,利用率低。
3.玄關無收納功能。
4.以廚房、衛生間為界限的過道很浪費。
5.客廳電視牆被門洞分割後尺寸很小。
改造後的平面佈置圖:
1.將廚房變為開放式,增加島臺和整體儲物功能。
2.擴大衛生間,形成淋浴、馬桶、洗漱、洗衣四室獨立。
3.進門右手邊增加鞋櫃、衣櫃的收納,以及隱蔽冰箱的同時增加步入式雜物間。
4.將客廳電視牆作為整面櫃體處理。
5.主臥室床頭讓開窗戶,以地臺分隔形成睡眠區和衣帽間。
6.第二間臥室作為書房、客房、儲物間和未來兒童房使用。
餐廳
把原先的牆體拆除了一部分,改為玄關櫃,為進門空間增加衣帽的收納。最右側是獨立的鞋櫃,這樣鞋子和外套都有各自的收納空間。整體通高門板的處理,會讓這個空間看起來更加整潔,避免雜亂。
開放式的處理是為了讓進門視線空間增大,因為屋主是隻有在週末偶爾才會下廚,結合廚房處是有通風窗戶的,所以完全不用擔心油煙的問題。藍色造型牆面是黑板漆
廚房是用大面積的白色和點綴的黑色來進行搭配的,這樣將煙機灶具以及電氣可以很好的融入進去。
櫃子採用的是暗釦手,十分整齊。
客廳
對於中餐來說,圓桌其實使用起來會更方便。
客廳背景牆用的是藝術塗料。
隔板系統的儲藏間,平時大件的行李箱、打掃工具、快遞箱都是可以放進來的。
地毯友愛指數非常高,朋友來家裡一起打遊戲的時候都會坐在地毯上。
埡口側邊的位置做了進深60公分的儲物櫃。
電視背景牆將臥室門融為一體。
深色櫃體部分預留了穿線孔,所有的插座都隱藏在了下面的櫃子。
臥室
主臥用地臺劃分出了睡眠空間,同時自然的形成了衣帽間的功能,簾子的形式比較便於尋找衣物。
地毯通鋪木地板,邊沿處安裝了燈帶,便於夜間去洗手間時的路徑照明。
次臥
次臥也可以作為書房使用。
通高門板的儲物櫃。
衛生間
衛生間四室分離。
馬桶間用了長虹玻璃推拉門。
壁掛馬桶簡潔並且便於打掃衛生,水箱上面是收納櫃,同時馬桶旁邊增加了高壓噴槍。
淋浴間用了長條隱形地漏。
(圖文來源:北京七巧天工設計)


























 
			 
			 
			 
			 
			 
			 
			 
			 
			 
			 
			 
			 
			 
			 
			 
			