這個58平一居室的主人是退休的楊先生夫婦。他們為了方便照顧外孫,邀請女兒和外孫來家裡常住。四人同居讓小屋顯得很侷促。
叔叔阿姨比多數同齡人更“小資”,願意為了更好的生活品質做出改變。阿姨喜歡插花、喝茶、讀書和烹飪。對生活的每個細節都很有要求,也很有想法。
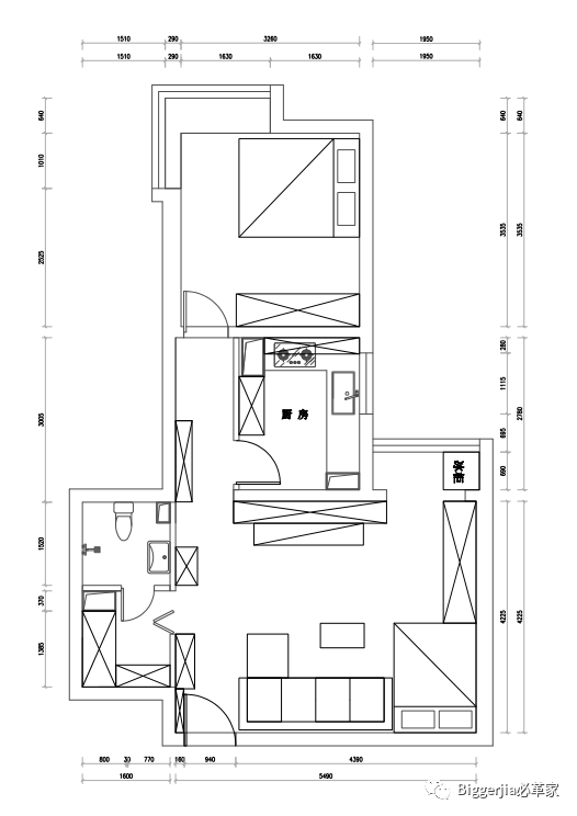
改造前空間平面示意
改造前,一家人吃飯、活動,外孫學習翫耍都在客廳。女兒和外孫擠住在客廳的一張大床上,沒有私密性,很不方便。老兩口住在臥室,起夜多不僅打擾老伴兒,還會吵醒睡在客廳的女兒和孩子。收納也是家裡大難題,東西堆得滿滿當當,每次找東西都要翻箱倒櫃。
設計師沒有把空間平面劃定成一個固定狀態,而是利用產品將空間分為夜間休息模式,日間活動模式和收納模式三個板塊。讓每個空間在不同的時間發揮不同的作用,空間使用率發揮到極致。
舒適睡
關於“住”楊先生夫婦提出兩個要求:一是要老兩口分床睡,起夜不至於打擾對方休息;二是要讓讓女兒和外孫在屋子裡有獨立休息區。
改造後休息狀態平面示意
臥室配有兩個單人床,滿足兩位分床睡的要求。其中一張床與衣帽間相連,可透過智慧按鍵實現位置移動。
休息時,衣帽間關閉,兩個單人床之間會留出過道空間,方便兩位老人上下床。衣帽間開啟時,兩床合併為一,為衣帽間提供走廊空間。
外孫和女兒的住所自然需要在原有客廳中發掘。我們設計了一組沙發移動櫃和隱藏的翻折床實現了第二居所的功能。
白天這裡是一個很寬敞的客廳。夜晚移動櫃和翻折床開啟,拉上床邊拉簾,這裡就變身成安靜獨立的小休息區,既私密又安靜。
拉上簾子,裡面就是一個小臥室啦!
隨意玩
改造後日間活動狀態平面示意
客廳的休閒空間三代人的需求也很清晰,叔叔阿姨需要一個飲茶和閒坐的區域;外孫喜歡武術,是個活潑好動的小男孩,需要儘量多的活動空間;當然,他們還需要在客廳一起用餐;需要有對安靜的空間讓小朋友學習。
- 小朋友的天地
活潑好動的男孩,有奧特曼和小汽車的地方都是他的快樂天地。
床邊隱藏的抽拉桌,可以讓小朋友在“固定”的地方學習,養成良好的學習習慣。
看看漫畫讀故事,也有自己的專屬領地。
- 喝茶養花愜意生活
楊先生夫婦最享受的家庭時光,就是有孩子和女兒一起飲茶賞花。
- 聚會場景
逢年過節有親戚朋友來家裡小聚,可抽拉延長島臺餐桌滿足多人用餐,一家人團圓的機會,一定要把氛圍拉滿!
貼心收納
改造後收納空間平面示意
58平米的四口之家,其中還有一個小朋友。收納成了楊先生夫婦頭疼的問題,他們反覆強調“我們家東西特別多”。必革家的設計師幾乎將室內收納做到了極限,每一個牆櫃、隔板、抽屜、格柵的設計都嚴格規劃,物盡其用。
- 衣帽間
在這個小屋裡面塞入一個步入式衣帽間是多少小戶型的夢想,我們做到了!
- 床下收納
床下兩個大抽屜,收納了叔叔阿姨的各類藥品。方便每天早起睡前隨時拿取。
- 客廳和翻床
入戶客廳整面牆,自右向左分別為鞋櫃、外套收納櫃、雜物抽屜、客廳被褥衣物收納。方便不同時段和場景下,家人的使用需求。
島臺外側做分層抽屜,收納客廳的雜物和生活用品。
空調格柵美觀整潔,兩側的頂櫃體還可收納不常用的家居用品。
第二居室兩側的櫃體收納被褥和衣物。 移動櫃的背後有洞洞板和隔層,收納臨時衣物,孩子的玩具和書籍。
床頭的收納格和抽屜可以放置隨身物品,睡前可以把水杯、眼鏡、首飾等物品放在這裡,十分方便。
- 衛生間/廚房
開放式廚房讓家裡看起來空間感十足,灰白配色簡單大氣。吊櫃和地櫃組合使用抽屜、隔板櫃和抽拉架,搭配各類收納架。讓廚房生活井井有條。
衛生間空間不大,我們不僅實現了三分離,還將洗衣機、烘乾機塞了進去。
馬桶間和洗衣區都設定擱板架,方便拿取生活和洗漱用品。
楊先生一家已經搬入了滿意的新家,看著他們歡樂的笑容,我們無比欣慰。希望這個精緻高效的小屋陪伴家人度過舒適溫馨的每一天。
專案資訊
面積:58平米
地點:北京






































 
			 
			 
			 
			 
			 
			 
			 
			 
			 
			 
			 
			 
			 
			 
			 
			 
			