本案是一套面積為82平米的兩居室,屋主一家三口,家中有兩隻柯基和兩隻貓咪很是熱鬧,考慮到寵物毛髮掉落的情況,希望衛生易打理;隨著孩子的成長,東西越來越多,希望在有限的空間裡將收納做到極致。
圖賞
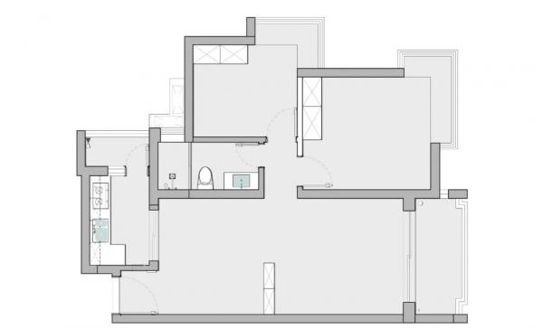
▲原始結構圖
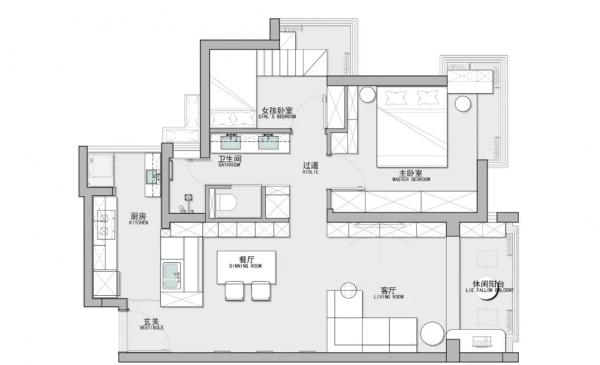
▲平面佈局圖
戶型最佳化改造:
1、改變廚房門朝向,借用部分餐廳空間擴大廚房,增設洗手檯;廚房採用半開放式設計,增進家人互動,也增加了空間的通透感;
2、將戶外陽臺納入客廳空間,以榻榻米的形式作為休閒辦公區、觀影區、貓咪活動區;
3、改造後實現衛生間三分離同時還設有雙洗手盆。
| 客廳 |
客廳無主燈設計,灰白空間簡約幹練。客廳區域沒有多餘的傢俱,L型的組合沙發搭配小邊幾,滿足功能需求,留出了足夠寬敞的活動空間。
從陽臺看客餐廳,整體給人的感覺是簡約實用,自然質樸的~電視牆做了滿牆定製櫃,充分滿足了空間儲物的需求。電視櫃門可移動,可以自由開啟不同模式:看電視模式或閱讀模式。
天花和牆面使用微水泥材質,考慮到家裡寵物可能給地面留下抓痕,地面通鋪具有良好耐磨性的新型材料spc,無縫一體的質感讓空間更加純淨簡約。
榻榻米與客廳之間的高差位則是投影幕的“藏身之處”,需要時放下來,在家即可享受到一場影視盛宴。榻榻米不僅是一家人的休閒之處,底下還有著超強的儲物。
客廳溫馨的小角落。
| 餐廳 |
以“窗”的形式讓餐廚空間有了聯接,同時兼備收納功能。
卡座與餐邊櫃結合,空間利用充分。卡座背景以軟木板作為背景,可以貼上家庭照片,記錄生活點滴。
客廳與餐廳都有一面牆的收納櫃,白色+開放式的設計,完全沒有擁堵感。
從玄關鏡的角度看客餐廳,視覺在其中得到延伸。
| 廚房 |
廚房與生活陽臺和餐廳之間都是互通的,採光、通風會更好。廚房的定製櫃仍以白色為主,與黑色的搭配看起來簡潔又時尚。
| 主臥 |
主臥床頭背景選擇水泥灰色,打造空間的層次感。屋主希望對不同的衣物針對性收納,兩個衣櫃各自分工。
L型大飄窗是屋主的私人居心之地,看看書、聽聽音樂...在這裡獲得全身心的放鬆。
床頭的圓形吊燈,顏值線上,是不錯的家居單品。
| 兒童房 |
上下床是小朋友的小小夢想,從軟裝配飾的選擇到空間細節的質感都考慮得十分周到,小小空間被媽媽愛意包裹。
利落的線條交織出空間感,“上床下桌”的一體式定製大大提升了空間利用率,利用樓梯空間做隱藏式收納櫃,將空間利用做到極致。
| 衛生間 |
三分離的衛生間設計方便家人使用,雙洗手檯大大滿足了女主人的使用需求。利用過道與馬桶間的空間,嵌入了家政櫃,方便日常收納與取用。
