本案這套110平的兩居室,兩室兩廳兩衛,戶型正氣,無論從空間尺寸和功能分佈來看,都足以滿足屋主的基本居住需求。但對於一個“家”的標準,怎麼能僅僅止步於“夠用”?
設計師透過洄游動線、衛生間三分離、增加衣帽間,充分利用每一處空間,讓屋主享受沒娃之前的二人世界。靈活次臥和強大的收納系統又能隨時切換,滿足未來的三口之家。
圖賞
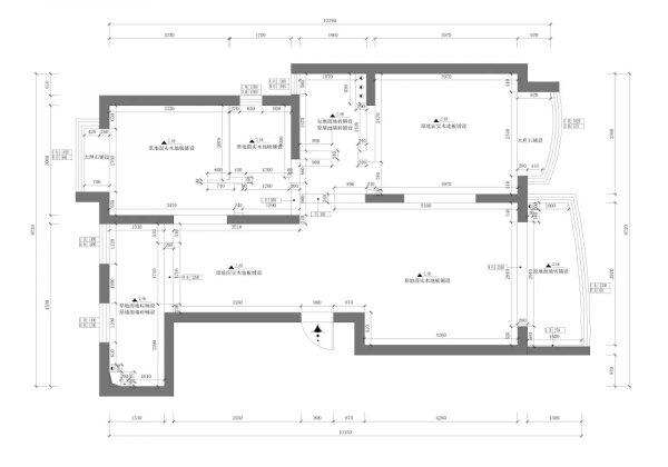
▲原始結構圖
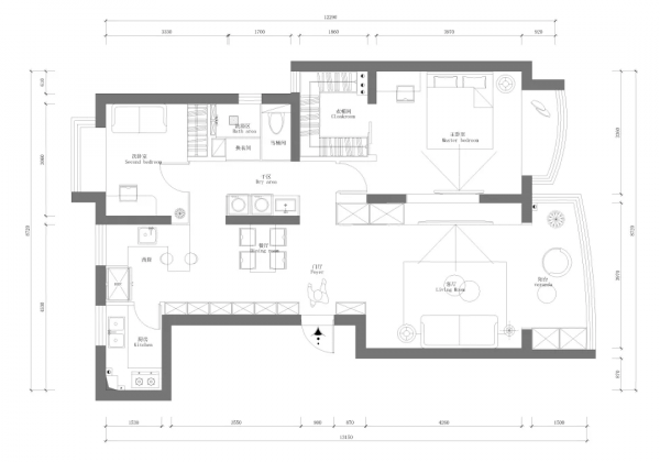
▲平面戶型圖
| 入戶 |
改造後的玄關做了容量強大的鞋櫃,便利的換鞋凳,可隨手放置物品、包包的空間,一應俱全。和餐邊櫃功能融合,承載著玄關、餐廳的收納功能。
| 廚房 |
根據屋主需求設計了中西廚,西廚和餐廳打通,既能提升公共空間通透性,也能作為餐區的補充收納空間。
西廚選擇白色大理石臺面,簡潔質感。牆面下面以瓷磚擋水,上方則以藝術漆做裝飾,優雅質樸。
| 餐廳 |
餐廳也採用了同款藝術漆,與廚房、餐廳的背景相呼應。
大理石臺面餐桌搭配棕色皮質餐椅,舒適質感,也方便日常打理。
| 客廳 |
客廳打造收納型電視背景牆,增加客廳儲物空間,同時和餐廳背景牆拉平,視覺上更整潔。
一組玻璃櫃和開放架破開沉悶,豐富視覺效果,對外展示著屋主精心收藏的樂高。
陽臺打造成放鬆、聚會的休閒區。卡座和吊櫃的設計,用來存放不常用的雜物。
沙發背景牆採用撞色處理,弧形元素豐富空間線條,進一步增添趣味性。
角落裡釣魚燈的線條與背景相融合。
| 衛生間 |
壓縮一部分次臥空間讓渡給衛生間,形成三分離的功能區分,洄游動線的形式提升了舒適性和便利性。
幹區和次臥都採用長虹玻璃隔斷,增加採光。延長加寬洗漱區檯面,將洗衣機、烘乾機嵌入其中,成為小型家政區。
| 次臥 |
次臥是未來的兒童房,目前作為書房使用,提前做好的收納規劃。
清新的綠色牆裙,搭配暖色的傢俱,自然復古。
| 主臥 |
主臥營造了與公區截然不同的配色氛圍,柔和的中性色使睡眠區多了一份沉靜。
主衛被取消,替代成對於屋主來說更為實用的衣帽間。設計和生活一樣,總是充斥著各種取捨。
從衣櫃延伸出的懸空床頭櫃,也可做為屋主書桌或是梳妝檯。
背景以木質隔柵做裝飾,豐富空間層次,增添韻味。




























 
			 
			 
			 
			 
			 
			 
			 
			 
			 
			 
			 
			 
			 
			 
			 
			 
			