▲ 使用面積68平,造價16萬,專案座標:北京朝陽,本案是複式結構(一樓層高2.6,二樓層高2.5),業主是一個年輕的女生,新房裝修後準備跟父母一起住,對於空間美學存在自己的想法和憧憬,她希望用藝術手法表達出自己喜歡的色塊,也要結合經典復古沉澱下來的情感,跟空間結構產生共鳴
▲ 一樓原始結構圖
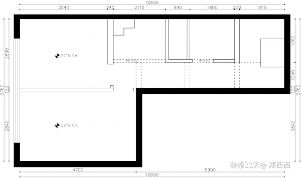
▲ 一樓平面佈置圖
▲ 客廳改造前
▲ 改造後大面積玻璃窗結合開放式格局,整體顯得開闊通透,因為層高不算高,所以客廳沒有設定主燈
▲ 沙發和茶几都選用木質傢俱,藍色色塊對樓梯和沙發背景進行了分割,下方加入石膏線條勾勒出簡約造型
▲ 電視背景運用拱形元素,將電視機嵌入牆體,取消電視櫃,騰出過道
▲ 右側的百葉門內是書房,在保證隱私的同時也能保證透光和通風
▲ 業主拍攝的書房一角
▲ 廚房改造前
▲ 廚房開啟後增強了空間互動性,與餐廳之間設定吧檯進行過渡
▲ 吧檯平時可以當做廚房的操作檯,需要小資的時候又可在此小酌幾杯
▲ 廚房鋪設花磚地面搭配小白磚牆面,操作檯做高低處理預留出洗衣機位置,檯面用來放一些蒸箱、烤箱、咖啡機等小家電
▲ 餐廳,選擇中古風的餐邊櫃和編藤木質餐椅,與人字拼木地板非常般配
▲ 樓梯改造前
▲ 改造後利用樓梯下方空間作為小貓咪的大本營,樓梯背面是衣帽架和穿衣鏡,北方冬天天氣冷,房間自帶暖氣,所以進出會有很多大衣需要掛放
▲ 鏤空踏步+玻璃扶手設計,確保空間通透
▲ 樓梯上去就是一整面藍色背景,過道採用拱形門洞,整體延續客廳設計
▲ 二樓原始結構圖
▲ 二樓平面佈置圖
▲ 過道改造前
▲ 大膽的色塊碰撞,塑造出立體感和層次感
▲ 過道上的步入式衣帽間用布簾隔斷,內部衣櫃做開放式設計,各類衣物一目瞭然
▲ 次臥改造前
▲ 次臥改造後,床頭背景透過弧形處理,將原始空間的建築管道隱藏起來
▲ 深紫色窗簾搭配綠色系背景,點綴一盞百褶吊燈,溫柔而優雅
▲ 衣櫃選擇了年輪感較強的櫃門,凸顯質感與生命力
▲ 主臥改造前
▲ 主臥原始頂部有建築管道,所以跟次臥的的形式一致,只是弧形方向不一樣,藍色的背景配上藤編復古高背床,既時尚又經典
▲ 利用背景色塊劃分空間
▲ 床頭左側是衣櫃和梳妝檯區域,櫃體區域性做了開放格設計,可放置一些常用物品
▲ 床尾加入綠植裝飾帶來生機
▲ 衛生間,灰色水泥磚搭配黑白花磚,金色元素的點綴提升整體質感
▲ 牆面增設壁龕補充收納,入牆式花灑顏值線上
文字編輯 | 東東
設計 | 鄭西西(南京)
關注公眾號:裝修33天,可獲得設計師更多資訊
版權宣告:裝修33天出品,未經許可不得轉載。
