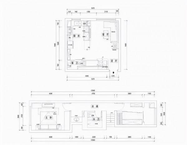
這是一套面積為90平米的簡約休閒複式案例,雖然兩層的面積僅90平米,但功能規劃合理。半包裝修花了8萬,加上傢俱家電,總造價21萬。
一點沒有侷促感,一樓餐廳與廚房開放式的設計,寬敞透亮,還有樓梯、過道的空間都得到的合理的利用,儲物空間充足,小複式也可以住得很舒適愜意。
| 玄關 |
玄關處以馬賽克彩繪玻璃作為隔斷,色彩絢麗,又增加的空間採光與通透性。
一面木質格柵屏風,化解入戶直面客廳和窗戶的問題,保護了隱私,也解決了風水問題。
| 客廳 |
客廳與廚房開放式的設計,整體簡約敞亮。通鋪木地板,搭配清新樸素的傢俱,與窗外的景緻一樣宜人。
沙發背景牆錯落的文化石裝飾,搭配簡約的木質隔板,擺放上裝飾畫,與一旁的工業風落地燈相佐,個性文藝感倍濃。
藍色雙人沙發搭配綠色單人沙發,清新樸實。
白色北歐風茶几組,錯落相依,輕便實用。
木作半高隔斷櫃,兼具電視背景與櫥櫃機能,左側延伸小吧檯作為簡餐區,暖木色和亮黃吧檯椅提亮空間色彩。
木作黑色隔斷框架,分隔客廳與開放式廚房場域,並創造一種框景效果。
吧檯兩側的餐椅似有鏡相的效果。
| 廚房 |
開放式的廚房設計,U型櫥櫃,實現在儲物功能的最大化。
從廚房空間看向走廊。
| 客衛 |
網紅款穀倉門作為客衛門,入門處的牆面增添儲物空間,或開放或封閉的櫃子,靈活以層次感。
| 樓梯 |
設計師利用樓梯下方的空間,打造了一組嵌入式書櫃,放孩子看的繪本,高度剛好合適!
入戶的七彩馬賽克與樓梯的色彩形成鮮明的對比,樓梯的燈光也是別具藝術感的。
黑色樓梯步搭配黑色扶手,裝幾盞壁燈形成夜燈效果,光與影的結合,安全又美觀。
| 衣帽間 |
二樓長條形戶型,長長的走廊延伸至獨立衣帽間,置頂儲物櫃有著超強的收納功能。
| 主臥 |
主臥以素色背景搭配木作傢俱,木作床頭櫃與床一體設計,整體簡約大方,溫馨寧靜宜於營造舒適的睡眠環境。
床頭兩側的暖光吊燈,可做閱讀檯燈之用。
由於過道中已有獨立的衣帽間,主臥床側沒有打造傳統的衣櫃,做了開放式的收納空間,收納功能不亞於衣帽間。
床尾的角落增設了梳妝檯,滿足女主人的梳妝需求,簡潔輕便不佔地方,蓋上蓋子還可做書桌使用。
| 主衛 |
主衛花磚地面搭配北歐風小白磚,清新文藝。以浴簾進行乾溼分割槽,入牆式馬桶,簡約省空間。
編輯留言
歡迎大傢俬信小編來聊聊吧。
