黑白灰係為主的裝修風格已成為當下業主的首選之一,簡潔愜意且自在。
案例資訊
座標:金地樾檀山
面積:148㎡
風格:現代風格
戶型:平層四居室
設計理念
本案屋主是一對帶著7歲孩子的夫婦,追求健康品質的生活方式,注重住宅與自己的健康、安全。
本案整體以黑白灰色系為主,白色大理石搭配黑胡桃木牆板,材質軟硬交替,搭配布藝沙發,為房屋增加溫度。
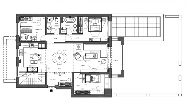
    戶型圖
(一層)
(負一層)
如果近期你也有裝修需求,可以點選【裝修報價】,免費獲取裝修報價的同時,還有設計師免費幫您做房屋設計規劃。
    門廳
入戶門廳將原有門廳與儲物間連通,加大門廳面積。
    客廳
屋主居住舒適感為主,搭配布藝沙發,配合無主燈設計,增加都市感。
    廚房
打破原有廚房,利用原有臥室設計大廚房面積,滿足女主人熱愛烹飪的需求。
    鋼琴室
設計在負一層中廳,以圓廳圍合,主題感強。
    起居廳
負一層空間連通設計,家人聚會互動。
最後,如果你還在為房子的裝修設計發愁,歡迎點選【裝修報價】,免費獲取報價的同時,小易也會幫你安排優秀的設計師做設計規劃。













 
			 
			 
			 
			 
			 
			 
			 
			 
			 
			 
			 
			 
			 
			 
			 
			