秋天的溫暖,秋天是色彩濃郁的,秋天是成熟的。簡美風格是一種簡約而溫馨的家庭氛圍。家庭裝修就是需要營造一個優雅有氣質,簡約明朗,大氣包容的氛圍是我們最初的構思。
本期給大家帶來的精選案例是一套130平米的簡美風格,全屋以白色系為主,顯得整個空間乾淨、整潔,再加之一些深色的傢俱點綴,這樣就輕中帶穩,簡約明快又不失穩重之意。
設計簡介:
裝修風格:簡約美式風格
實際面積:130㎡
空間格局:3房2廳2衛
設計師:韋一笑設計師
專案位置:四川省·綿竹市
裝修造價:預算費用30.28W
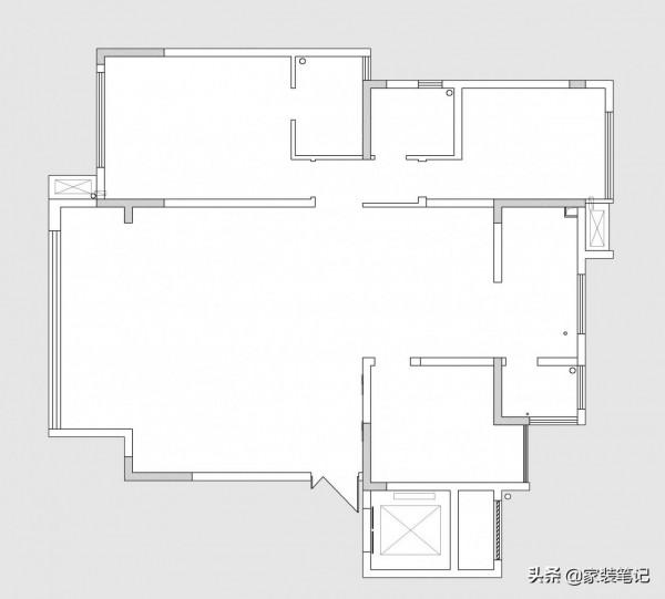
01戶型圖
房子的結構很明確,一個很標準的三居室戶型,入戶沒有玄關。我們從圖中可以看出,這是一個兩梯兩戶的戶型,也就是說,這戶的電梯間屬於業主一家的。朝向方面:很標準的南北通透,裡面承重牆並不多,所以給後期改造提供了方便。
02平面佈置圖
通過後期的改造,讓家裡面的整個動線變得更加完善了,使用更加的方便。改動如下:
1,入戶處做一組鞋櫃,讓入戶自然的形成一個玄關空間出來。空間感也強多了,空間界限分明。
2,廚房做開放式的設計,把原來的生活陽臺也包裹進來,相當於陽臺也做了開放式的處理,這樣空間就顯得更加敞亮、大氣了。
3,客廳的開間非常大,在沙發後面做了個品茶區出來,合理地利用好空間。
4,沒有改變主衛門洞,但是正對著臥室床,所以在他們兩者中間做了一組衣櫃,形成一個小衣帽間,一舉兩得。
03玄關
開啟房門,就能直眼看到過道的盡頭,牆上的三個裝飾品成了一個很美觀的端景效果。玄關鞋櫃做了上下懸空的佈置設計,在留空的區域都做了暗藏燈帶的設計處理,顯得很精緻之外,實用性也很強,每天開啟房門的時候,這個燈就會自動的亮,極大的方便了入戶。
04餐廳
餐廳和廚房連通之後,空間感非常的強,顯得很敞亮,採光效果非常好。連著餐桌做了一個導臺,很方便,讓生活變得更加精緻,導臺專門吃早餐,吃西餐等,中餐和晚餐就到餐桌上進行,透過頂面的吊燈燈光照射下來,增加用餐的氛圍。
05廚房
餐廳和廚房相連,擁有超多的操作空間和收納空間。因為做了開放式,所以取消了常規的鋁扣板吊頂,改做了和餐廳一樣的石膏板吊頂,餐廳區域做得比較簡單,剛好和餐廳吊頂形成一個很好的層次感。
廚房旁邊有一個生活陽臺區域,這整個區域妥妥的形成了一個生活區。只不過這裡雖然說是生活陽臺區域,曬衣服卻不在這裡。
06客廳
可以以白色系為主,顯得乾淨、整潔。爵士白的大理石,紋路很好看,也很自然。沙發後面沒有實牆,所以做了隔斷出來,讓沙發總得有個“靠”的。因為空間本身就比較敞亮,所以不需要做無主燈的設計,選擇了一款很好看的吊燈。
07陽臺
客廳旁邊有個很大的陽臺,休閒味道很濃,上面擺放一臺跑步機,早上陽光充沛,待著這裡跑著步,享受著陽光,那一個清晨都是愉悅的。
08品茶區
業主是做茶葉生意的,所以有個專門的品茶區對他來說比較重要,正好這個戶型可以做一個這樣寬敞、舒適的品茶空間出來。在硬裝造型搭配上都以美式為主,因為要呼應客廳空間,但是在茶桌選擇上,選擇了中式款式,似乎也不影響整體的協調。
09主臥室
主臥室是兩夫妻休息的地方,講究的就是簡單、溫馨,我們這裡營造出來也就是這種感覺。臥室沒有做中央空調,也沒有選擇風管機,一臺掛機做到梳妝檯的頂上,不正對著人吹風,這樣非常好。
為了避免床和主衛門形成“對沖”,做了這樣一個小衣帽間出來,起到了一舉兩得之妙。
10主衛
主衛地面是灰色的瓷磚,牆面做爵士白牆磚,兩者很是協調,洗手櫃的櫃門和鏡子的邊框都是選擇的藍色,成了點綴色彩,讓整個主衛看上去很清新自然。



























 
			 
			 
			 
			 
			 
			 
			 
			 
			 
			 
			 
			 
			 
			 
			 
			 
			 
			