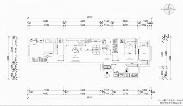
入戶左側做了一個整體的櫃子,可儲物,做鞋櫃。客廳區域的,整體佈局較簡單。餐廳區域,業主需要多些儲物空間,所以餐廳區域加了酒櫃。整體空間方正,沒有異形,次臥室有陽臺,業主用於儲物或休閒區域都可以。主臥室的採光性好很好,主次臥房間的通風都很好。廚房區域利用空間最大合理化,做成L型造型,不浪費任何空間。衛生間區域整體不算太大。整體來說兩間臥室及廚房的房型還很好,衛生間跟客餐廳就差點。
客廳幾乎就是傢俱、背景牆簡單的組合就可以了。牆面裝飾的種類很多,比如有桌布、矽藻泥、乳膠漆等等,每個人喜歡的風格不同,所以在選擇上可以根據個人喜好決定。
客廳牆面是白色乳膠漆;客廳的電視背景牆是灰色乳膠漆,客廳、過道及兩間臥室為石膏線圈邊。
客廳用的木材都選用胡桃木,比較統一,客廳選用的吸頂燈,房頂較低所以吸頂燈會給人舒服的感覺,剩下的燈都選用北歐風格。
臥室的裝修並非只是擺設一張床這麼簡單的事情,在臥室裝修中,有很多需要注意的地方。現在的臥室,室內功能越來越完善,舒適度也越來越高,基本可以滿足主人的任何生活需求。
主臥室選擇金屬與白色烤漆相配的書桌,比較清新、乾淨的感覺,掛畫也是選擇業主比較喜歡的鹿為主,主臥室窗簾與床相搭配。
次臥室有一面牆選擇灰色,床品也是為了搭配牆面顏色,次臥室的掛畫為綠植顯得有生氣。
戶型:兩室兩廳一廚一衛兩房兩廳,一廚一衛,面積不大,整體很滿。房間的整體為現代簡約風格。






 
			 
			 
			 
			 
			 
			 
			 
			 
			 
			 
			 
			 
			 
			 
			