每位業主對生活的需求不用,對家庭空間大小的需求也不用。本案例房間面積是75平米,考慮到業主的真實需求,將房子裝修成北歐風格的二居室,整個房子裝修完總花費6萬,一起來看看裝修效果吧。
客廳是最主要的公共活動空間,不管是否做人工吊頂,都必須確保空間的高度性。另外,還要確保客廳從任何角度看都有美感。
電視背景牆則是做了滿牆的儲物櫃,中間部分同樣是刷成了灰色,底部的木質隔板櫃擺放零碎物品和綠植,邊邊角角的收納設計加起來,再也不擔心東西放不下。
臥室的整體設計是比較通透和明亮的,地板桌布的裝修和傢俱都不要那麼的繁瑣複雜,裝飾品也要簡單大氣.主要以實用功能為主。
臥室原本是有一個迷你的小陽臺的,但設計師把陽臺和臥室打通,利用這個小角落做了一個書房,這樣在家辦公也方便了不少。
在裝修衛生間的時候,要注意不要用大件的衛浴,留足活動空間,使用的時候才更方便。另外,必要的時候要捨棄安裝浴缸、浴室櫃等能進一步提高生活質量的衛浴用品。在美觀上,保持與家庭裝修風格主色調一致,或者做到色彩搭配協調統一。
衛生間內做了乾溼分離的設計,鑽石形的淋浴房放在轉角的位置,然後左右兩側做木色的洗手檯和馬桶,浴室鏡改成了鏡櫃的款式,還在底部加了藏光設計,更加時尚。
很多人家的餐廳都是不大的,所以能夠容納的就是餐桌和椅子,如果可以放上一個酒櫃也是不錯的選擇。餐桌的大小和椅子的數量要根據家裡的成員進行選擇,做好就是能夠多出來2人位置,這樣在來客人的時候也不會因為沒有椅子,而發生尷尬的事情。
餐廳和客廳之間沒有做隔斷,餐桌椅靠著牆面擺放,另一側的牆面做了嵌入式的到頂櫃子,冰箱也選擇了嵌入櫃子當中,儲物空間非常多。
廚房設計很重要,想要做飯不累就要廚房的設計合理,其實小編是不建議大家買整體廚房的櫥櫃。因為每個人的身高不一樣,我們工作的檯面高度也不一樣,所以動線很重要!
廚房內部是做了L形的櫥櫃佈局方案,淺灰色的地面搭配小白磚,再加上白色的吊櫃和深色的櫥櫃,整個廚房看起來層次分明。
玄關是我們與外界的一個分界線,也是我們更換衣服的地方,所以在設計上我們可以打一個衣物架,掛我們的日常衣服,盛放雜物,還能儲存鞋子。玄關處可以設定一盞感應燈,這樣我們在晚上回家的時候,就方便很多。
入戶玄關做了嵌入式的鞋櫃,設計師還在鞋櫃當中留出了一個換鞋凳的區域,方便屋主平時更換鞋子和掛包包、外衣等,非常實用。
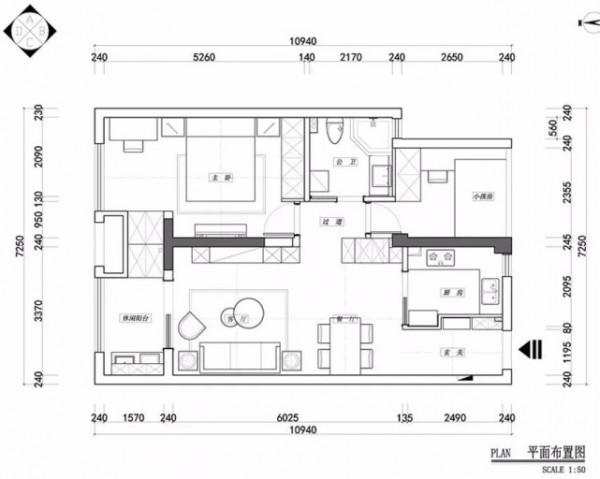
戶型圖
了嵌入式的鞋櫃,設計師還在鞋櫃當中留出了一個換鞋凳的區域,方便屋主平時更換鞋子和掛包包、外衣等,非常實用。
戶型圖
