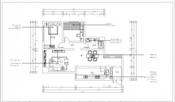
從入戶門進入,左側就是廚房,面積較大臥室設有飄窗,餐廳在進門左前方,客廳位於房門左前方,再接下來是次臥,內設1個小窗,採光較好,視野開闊,書房更改為客臥室可供單人休息衛生間為於主臥旁,面積一般,深夜去衛生間比較方便,主臥位於戶型的最裡面,私密較性好,安靜,視野開闊,採光較好,再接下來是客廳,客廳面積較大,客廳與餐廳相近,給用餐帶來了方便。
客廳是最主要的公共活動空間,不管是否做人工吊頂,都必須確保空間的高度性。另外,還要確保客廳從任何角度看都有美感。
客廳的設計比較簡單,沙發背景牆放了3幅裝飾畫,使空間更為大氣,吊頂的設計做了石膏線圈邊,沙發的選擇為布藝的,茶几選擇為方形。
臥室裡不要放過多的電器,特別是電視、筆記本,輻射和電源燈都會影響睡眠。大部分的人都喜歡躺在床上看書或看電視,這種行為非常不可取,它也會對我們的健康造成影響。
臥室的設計很舒適,傢俱的選擇較為簡單,臥室的設計舒適大氣,傢俱的顏色選擇大部分為黑白木色。
餐廳的裝飾講究美觀,同時也要實用,最重要是適合餐廳的氛圍。在裝飾的時候,一些桌布和窗簾等是不錯的選擇。另外,設計師會選擇一些比較薄的化纖材料,既容易清洗,價格也是很實惠的。
兒童房對於孩子們來說,是他們的一個小天地。除了注重休息的功能之外,兒童房還應該加入一些兒童元素,在油漆工程和傢俱上多用點心就好了。
書房改為兒童房設計為榻榻米節約空間,提升空間利用率。整體設計很舒適,適合居住。
戶型:兩室一廳該戶型南北通透,光線較為充足,空間比較合理,可以為住戶創造舒適的住房體驗。
型南北通透,光線較為充足,空間比較合理,可以為住戶創造舒適的住房體驗。
