業主花6萬裝修出77平米的簡約小戶型,整個房子採用的裝修方式,裝完之後鄰居紛紛來效仿。一起來看看這位業主是如何裝修77平米的小戶型的?
客廳在家庭空間中的佔地面積是最大的,也是家庭居住的核心區域,是最能體現裝修風格的區域。客廳的特點是面積大,空間開放性高。明確客廳風格是非常重要的,如果連客廳都表達不出家庭裝修風格,那這樣的家庭裝修絕對是失敗的。
實木框架+布藝搭配的設計,靠窗一張日式休閒椅佈置,整體空間以樸素的元素佈置,營造出一種貼近生活的人文氣息。
陽臺也是打通納入大這個開放的空間內,使得小小的房子,也有寬敞高檔的空間感。
客廳與餐廚區域也是連通的,橫廳格局的設計,在沙發後方擺設了書桌作為辦公區。電視牆以定製收納櫃+地臺的組合設計,也使得空間更加現代簡約而高檔。
臥室裝修由於居住主體的不同,配色也有所不同。主臥室裝修宜採用木地板,溫馨愜意最合適。次臥一般是老人居住,所以同樣要溫馨,同時還要考慮老人的行動方便和喜好等。臥室的照明要求不多,但要注意臥室不宜採用向下射的燈具,宜用照頂的燈光。
衛生間常見的問題就是陰冷、潮溼,這樣的衛生間很容易滋生細菌,到了夏天還會出現異味。如果你家的衛生間足夠大,一定要做好乾溼分離。現在很多家庭都是暗衛,都是沒有窗戶的,如果不做乾溼分離,衛生間就會處於長期的潮溼的環境,很容易滋生細菌的,這樣就會影響我們的身體健康了。
衛生間以雅白的牆面+鏡子設計,把洗手盆外接到過道區域以增加衛浴空間的實用率。而洗手盆與公共區域之間,則是加入了長虹玻璃隔斷,避免洗手盆直接與公共區域打通,讓空間顯得精緻而私密。
現代家裝中,餐廳不像以前一樣,僅僅一張桌子和幾張凳子就完事了。人們越來越追求美觀,但也要考慮到實用功能,餐廳在套宅設計中不可缺少,也應該受到重視。
廚房L形操作檯連貫著定製櫃與餐桌一體,整體空間利用合理舒適,保留出寬鬆舒適的生活動線設計。
餐桌是定製的大理石材質的,連貫著廚房的收納櫃裝了一個餐邊櫃,設計佈置精緻,讓空間充滿現代時尚的高階感。
現代廚房除了常見的油煙機、灶臺、冰箱、微波爐外,洗碗機、廚餘處理器、淨水器等裝置也正在被越來越多的家庭接受。這樣的廚房科技感滿滿,使用起來也更加方便,在廚房裝修的時候就要提前預留各種電源插座,如果不注意這些細節,後期你家的廚房可就跟不上時代的步伐咯。
餐廳與廚房區域(包括客廳與書房),整個大空間都打通,讓小戶型也有著大別墅般的空間感。
書房是工作、學習和放鬆的地方。所以書房的設計,既要顯得很寧靜,也不能太乏味。書房的用眼頻率較高,書桌最好靠近窗邊。為了避免長時間閱讀造成眼睛疲勞,可考慮採用色度較接近早晨柔和太陽光、不閃爍且光源穩定的、能有效散熱的燈具,以減輕視覺負擔。
辦公區佈置在沙發後方,一張獨特造型的書桌擺設,後方定製的開放書架佈置上雜誌書籍與小飾品,營造出一個端莊優雅的閱讀或看書工作體驗。
中性色調的空間佈置,在現代風的空間下,也是顯得更加溫雅端莊。
一般而言,兒童房的裝修設計比較活潑,材料偏向於更加環保的材料。但是考慮的兒童的成長,兒童房的設計也可以適當靈活,一些組裝可拆卸的傢俱可以隨著兒童的成長變化不同的風格。
兒童房的定製榻榻米床與後方的收納櫃連為一體,在收納櫃中間留空出一個書桌擺放的位置,做成小屋造型的設計,結合收納格上可愛的小擺飾,讓空間充滿童趣的活潑氣息。
側邊的牆面做了一面黑板牆,還有一個洞洞板收納架,提供了一個有趣的塗鴉畫畫與收納的靈活牆面設計。
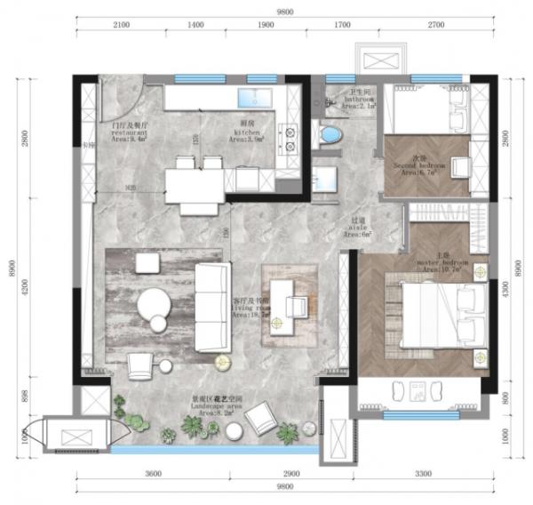
戶型圖
合收納格上可愛的小擺飾,讓空間充滿童趣的活潑氣息。
側邊的牆面做了一面黑板牆,還有一個洞洞板收納架,提供了一個有趣的塗鴉畫畫與收納的靈活牆面設計。
戶型圖
