沉穩、內斂、含蓄而極富韻味,這是中式風格與人的多數印象。設計師在滿足業主對家的所思所想的同時,透過在平面設計上的區域性調整,更好的釋放出各空間功能的實用性,提升家居舒適度。
房屋資訊
專案地址:廣源大都會
專案面積:178㎡
設計風格:中式風格
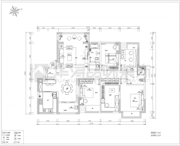
▲原始戶型圖
▲設計平面圖
玄關
將屏風與鞋櫃相結合,頂牆的設計,讓人一進門便感受到內斂大氣的家居氛圍,紅木材質、繁複的鏤空雕花造型,再配上一副花鳥刺繡,屬於中式風的古色古香撲面而來。
▲玄關細節
客廳
用實木雕花板、大理石紋巖板背景牆和巨幅山水刺繡組合而成的客廳背景牆,予人一種古今相融合的家裝視感,精巧又雅緻。
▲客廳電視背景牆
客廳內的整套紅木傢俱看似色彩深沉,莊重感極強;卻在空間光影的變化下,流露出少許中式的細膩溫柔,就連旁側整面的落地窗外的江景,都隨之染上幾分“古邕城”的影韻。
▲客廳
▲陽臺窗外江景視野
餐廳
餐廳天花吊頂選用和餐桌一樣的圓形做設計,配上精緻的白、金兩色復古吊燈,統一空間視覺的同時,也豐富了餐廳的視覺層次感。旁側的半開放式收納頂櫃,既可作酒櫃使用,也可滿足該空間的物品收納需求。
▲餐廳
女兒房
女兒房有別於客餐廳的中式風,採用咖色木飾面作為臥房背景牆,搭配橘色軟包床頭背板,和同為咖色系的衣櫃、書桌,妥妥的現代風。為滿足小姐姐可以坐在飄窗讀書學習的需求,設計師特將書桌與飄窗相結合,設計成一體。
▲女兒房
▲女兒房飄窗
主臥
主臥色調採用紅、綠色做主調進行設計,以明黃、乳白兩色做點綴,透過深淺不一的色彩變化,配以精美的木質雕花、刺繡等極具中式色彩的元素展現形式,不但營造出古色古香的中式韻味,也打造出寧靜舒適的休息空間。
▲主臥
▲主臥
▲主臥射燈
衣帽間
將與主臥相鄰的臥室房間打通,併入主臥空間,作為衣帽間進行使用。紅木材質的衣櫃、鏤空的推拉式屏風作為房門,再配上同材質的梳妝檯,櫃門上精美的雕花設計,典雅有意境,韻味十足。將櫃體60%設計成掛衣區,滿足家中四季不同衣物的收納空間,也更便於物品拿取。
▲衣帽間
▲衣帽間
衛生間
將洗手檯外移是典型的衛生間乾溼分離式設計的一種,考慮到業主希望能在家中安放浴缸,享受泡澡的舒適,並充分發揮江景房的優勢。設計師在公衛臨窗處放置浴缸,這樣一來,一遍泡澡一邊享受窗外秀美江景,好不愜意!
▲公衛洗漱區
▲公衛淋浴區
▲主衛
中式風格既有明清時期家裝風格的延續,更有現代生活的融合與創新,用大膽的色彩搭配,搭配現代裝修材質,打造出獨一無二的中式雅居。
如果你也喜歡,點贊支援一下,感謝!




















 
			 
			 
			 
			 
			 
			 
			 
			 
			 
			 
			 
			 
			 
			 
			 
			