裝修中有一個很有意思的現象,那就是你去問老一輩,哪個空間最重要,很多人回答是客廳,因為它是家人,和親朋好友,聚在一起,待的時間最長的地方。但如果你再去問年輕人,那得到反饋多數是嗤之以鼻,甚至認為客廳根本沒有必要。
一是身處網路時代,真沒幾個人看電視;二是工作繁忙,也沒有時間,所以比起這個,更需要一間放鬆身心的書房,可以打打遊戲、看看書,亦或者辦公學習等等;最後就是在大城市定居後,不像縣城和鄉下,有那麼多街坊鄰里來串門。
而本期要分享的案例就和這個有關。位於南京,面積86㎡,是一套不折不扣的兩居室剛需房。裝修上,屋主“離經叛道”,打破世俗偏見,堅持去客廳化設計,沒有茶几和電視,卻成了家居界的教科書。無它,這種創新的效果,未來必成為一種趨勢,不信我們一起來看看吧。
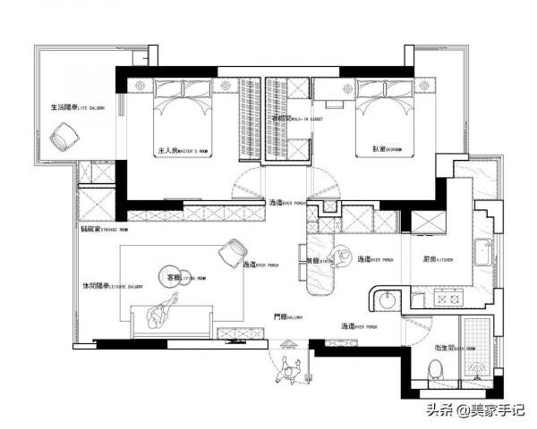
平面圖
戶型還不錯,結構周正,且南北通透。
起居室
現在看實景。進門左轉就到了眼前的客廳。不過和常規佈局不一樣,這裡既沒有電視,也沒有茶几,有的只是讓你回到家,能夠用來放鬆的沙發。好處在於空間顯得敞亮的同時,孩子可以拿它作為活動區。也就說本案採用了目前非常流行的去客廳化設計。
如果你對客廳沒有執念,無論佈置成健身區、工作區,還是其它功能區間都可以。
很多人納悶,既如此,那麼影音方面的需求該怎麼辦?
答案是,屋主在右側的頂面,設定了收納投影儀幕布的暗槽,如此有需要時,放下來就可以使用了。
需要補充的是,本案沒有獨立玄關,就在左側靠近沙發的地方,擺放了一款白色的半高成品櫃用來收納鞋子。
原本作為電視牆的地方,屋主直接定製了一排,白色免拉手的櫃子,好處在於就像是裹上了飾面板的背景牆,不僅看著渾然一體不突兀,而且美觀大氣又實用的同時,還為客廳增添了更多的收納機能。如此家中很多雜物就能透過藏藏藏,來實現乾淨整潔的效果了。
補充一下傢俱。沙發整體選用實木框架配上布藝坐墊,不僅看著結構輕巧又舒適,也顯得空間靈活大方有質感。
至於對面的陽臺,直接納入客廳的同時,配上大面積的落地窗,如此,一個是讓空間顯得敞亮,另一個是配上休閒椅和腳凳,在這放鬆觀景也是可以的。
另外就是沙發左側的鬥櫃,可以彌補沒有茶几,帶來的收納不足的問題。
餐廳
餐廳直接開啟入戶門就到了。裝修上,右側的背景牆,採用了條紋狀的結構,看著更有層次感。至於對面的餐櫃,延續了之前的風格,以白色的免拉手櫃門為主,基於此這裡就不多講了。不過中間鏤空的地方配上感應燈,主要便於擺放一些使用頻次高的物品,而且嵌入了蒸烤箱,作為西廚使用也是可以的。
傢俱的話,非常喜歡這個木質檯面的餐桌,紋理細膩自然,配上簡約精緻的椅子,真的極具質感。
細節。主要是廚房和餐廳之間的地面,分別採用了地磚和地板,一方面可以劃分不同的空間,另一方面,因為前者涉及到一日三餐油汙多,這樣便於清潔打理。當然,這種不規則的形狀也有一種獨特的美感。
廚房
中廚空間不大,但勝在整潔大方的同時,空間顯得明亮。而且右側L型的操作檯加上左側的冰箱,整體呈U型結構利用率高。
回到餐廳看對面的客廳。
主臥
一共兩間房,這間是主臥。裝修上,為避免只刷漆顯得單調,床頭牆採用了極具裝飾效果的吸音板作為背景,顯然,這比單純的只刷漆,要顯得更有質感。
傢俱方面,依然採用了胡桃木質感的臥室床,配上柔軟舒適的床品,從而營造了一個落落大方,十分適合睡眠休息的空間出來。
換一個角度是衣櫃。可以發現有別於傳統直接用板材來定製的結構,這裡採用的是更為實惠靈活的宜家艾格特,好處在於可以自由組合。
需要補充的是,南京冬季陰冷潮溼,所以屋主在臥室安裝了暖氣片。
家政區
主臥附帶了一個生活陽臺,就定製一面家政櫃來收納各種雜物的同時,預留位置,嵌入擺放洗衣機和烘乾機,進而解決衣物清洗和晾曬的問題。
衛浴
最後是衛生間,不僅時尚整潔顏值高,而且壁掛式馬桶的上方,還做了一組壁櫃的同時,設定了壁龕式的收納槽和感應燈,加上牆排和不留清潔死角的這些細節,整個功能既強大,又非常人性化。
以上就是南京一主婦曬出的86㎡新居了,感謝大家閱讀。(注:本案文字原創,圖片來源於@壹石設計,如有侵權,請聯絡刪除)
想了解更多精彩內容,快來關注@美家手記
