都說“房子買得好,日後少煩惱”,對於大多數業主朋友們來說,擁有一套屬於自己的房子,大概是人生目標追求之一,更別說是“鐵商學”全配齊的絕佳地段了;房子買好了,接下來便是為愛家著手裝修事宜了。
前段時間,一位在五象蟠龍板塊置業的業主朋友,便找到我們,希望能為他的愛家設計一套專屬的私人訂製家裝方案。
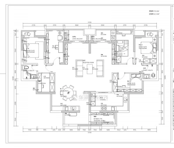
房屋資訊
專案名稱:蟠龍小區
專案面積:147㎡
戶型原始平面
玄關
將原玄關處打通成“一”字形,把鞋帽區設計在位靠廚房的一次,安放雙排鞋櫃,方便收納業主一家的鞋子,而將換鞋凳放置在門口處,方便業主外出或入門時更換鞋子。
客廳
在原戶型的中線上,一堵牆連結兩頭承重牆,將客廳的區域空間一分為二,業主在與設計師溝通時,希望能擴大客廳的使用面積,且由於家中觀看電視較少,不大考慮做電視背景牆。因此,設計師在設計客廳時,將客廳中心的原有部分牆體拆除,擴大客廳的使用面積,並在靠近陽臺的兩側區域分別設計了一排衣櫃和裝飾櫃,可用來陳列業主家中的收藏擺件。
餐廳
餐廳區域設計在與玄關拐角相連的左側區域,原本玄關進來的區域,在原戶型上是廚房的位置,但由於區域中線有堵承重牆,且考慮到家中人口的問題,設計師便將左側區域牆體進行拆改設計成餐廳,還將西廚的部分割槽域設計在此處。
戶型平面設計
廚房
在原戶型空間中,廚房的使用面積偏小,設計師便將原廚房空間與左右兩側空間相連,以承重牆為界,右側空間接納入廚房的使用面積,並設計成“L”型廚房,在靠近承重牆的一側設計高櫃和冰箱的放置區,廚房門選擇推拉式的玻璃門。
臥室
整個戶型共設計了四個臥室,分佈在客廳兩側,左側為主臥,右側為另三個臥室,先來說說主臥的設計。主臥的使用空間由三個大小不一的房間合併而成,讓主臥空間包含了主衛和步入式衣帽間,衣帽間內還安放一張梳妝檯,方便女主人在此梳妝打扮。
另三間臥室的空間相對小一點,其中次臥一的部分使用面積由原來的陽臺區域合併而成,合併區域設計安放了長形書桌,方便孩子讀書學習,臥室床則選擇了雙人上下鋪。
臥室二的佈局設計傾向於多功能型別,除了必要的臥室床和衣櫃之外,還安放了書桌和整面的書櫃,方便收納家中的書籍。在學習辦公勞累時,可以就地休息,亦或者家中來客多時,為客人提供舒適的休息區域。
總的來說,設計師將整體戶型空間進行進一步最佳化和功能設計,滿足業主家中需求的同時,提高了居住舒適度。你覺得這套設計的動靜線走向如何?合你心意嗎?歡迎留言討論。
