這期案例的女主人潘姐,很喜歡美式風,但傳統的美式風比較濃重,於是就做輕盈的簡美風,質感依舊,還更適合現代生活。
另外她是個生活達人,烘焙、DIY、養花等,樣樣精通,因為熱愛,再多的家務事,都不在話下。
而且潘姐跟先生都喜歡看書,二人知性浪漫,精神富足,簡直就是模範夫妻。想到他們家看看嗎?快來↓↓
房屋資訊
建築面積:130㎡
戶型:三房兩廳
常住人口:3口人
所在城市:上海
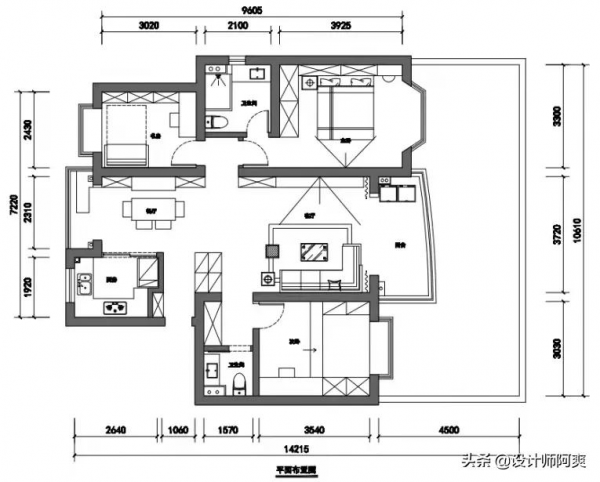
戶型圖
▲ 因為房子是在一樓,所以有個院子,就是右側這個大方框哦。也因為有了這個院子,讓這個家處處都是美景。另外客餐廳面積比較大,可以做很多收納空間,這也是潘姐所需要的。
01
玄關
↑↑設計圖vs實景↓↓
▲ 本來無玄關,吳女士決定把牆往後推一半,凹出鞋櫃位置。另外半面牆不動,留著廚房空間給冰箱,但也還是裝上門板,保持風格統一。
回家放包-換鞋-掛衣,動線流暢,還可以收納日用品,展示愛好。
↑↑設計圖vs實景↓↓
▲ 過道空間比較多,潘姐決定定製隔斷櫃,擴大玄關空間。定製矮櫃和半高櫃,方便換鞋,也可以收納鞋子、掛包包等。
旁邊的到頂櫃和三門櫃子,可以收納大件物品和日常用品。
02
客餐廳+陽臺
↑↑設計圖vs實景↓↓
▲ 客廳同樣是淺色傢俱居多,造型門板的電視櫃和石膏線沙發牆相互呼應,簡美風一下就出來感覺了。
▲ 淺灰牆面搭配米白沙發,溫柔也養眼。點睛之筆是米白的落地燈,燈光一出來,美感昇華。
▲ 米白的到頂電視櫃儲物能力超強,開放空間放些常用的,櫃門內的空間就分類收納好。
▲ 陽臺只有一面是實體牆,定製半高的陽臺櫃,內嵌洗衣機,旁邊開放設計帶上掛簾,方便又美觀。
↑↑設計圖vs實景↓↓
▲ 客廳與餐廳之間的走道設計成拱門,搭配長掛畫和綠植,簡美風拉滿。
↑↑設計前vs安裝後↓↓
▲ 米白的餐邊櫃跟白色的餐桌非常搭,窗邊還有小吧檯,平時休閒就可以在這裡望望景色。
▲ 吧檯旁邊的牆內嵌了收納櫃,可用於家務用品專區。用餐區是餐椅+卡座,節省空間,整體感更強。
▲ 看看潘姐的大作,真的好想去她家做客哦。
↑↑安裝戶外遮陽傘 & 安裝鐵架↓↓
▲ 潘姐還是個DIY小能手,安裝、種植能力超強,細心打理出一個超讚的院子,沒事來吹吹風就很爽啊!
03
衛生間
▲ 衛生間的用色同樣很淺。米白浴室櫃,米白石紋牆磚,還有純白的收納盒,非常統一。鏡櫃自帶柔光,自拍效果一級棒!
▲ 馬桶是智慧,有持續供暖功能,PP不再受涼。垃圾桶也是智慧的,不用接觸,就能掀蓋扔紙巾,衛生。
04
主臥
↑↑設計圖vs實景↓↓
▲ 主臥也要好好利用空間,定製床頭的滿牆收納櫃,留出開放櫃,方便拿取常用小物。
▲ 衣櫃一門到頂,搭配金屬長拉手,簡約大氣(考慮到主臥空間較小,就不做客廳同款造型門板了)。
▲ 床邊還有梳妝的位置,潘姐每天早晚都要在這裡好好打扮一番呢。
▲ 衛生間。窗戶是獨特的梯形,搭配溫柔米色窗簾,這裡突然間又有了簡美風的感覺。外面是院子的美景,放個沙發又能好好欣賞,潘姐真的超喜歡這裡。
05
主衛
▲ 主臥裡還有個衛生間,牆磚淺灰,整體現代感更強。
▲ 髒衣籃、掛鉤、收納盒等等,這些日用小物都是不同店買的,但卻非常搭,生活氣息超濃。
▲ 馬桶和垃圾桶跟另一個衛生間倒是同款,收納架和廁紙架用了黑色,跟淺灰牆面非常搭。
06
兒童房
↑↑設計圖vs實景↓↓
▲ 兒童房定製米白榻榻米床組合,衣櫃+書桌櫃+床,滿足小孩成長需求,整體實用耐看。
↑↑設計圖vs實景↓↓
▲ 獨特的清新綠和清新藍,拿捏到位,非常養眼。櫃子定製木屋造型,讓小孩愛上看書。
▲ 小孩子來一起玩,空間寬敞,也有充足的私密性。
07
書房
↑↑設計圖vs實景↓↓
▲ 書房是先生專用的空間,他希望可以有高低檯面,這樣無論是坐著或是站著辦公,都很得心應手。(低檯面就是正常高度的桌子檯面,高臺面是電子產品上的那塊板,深度會比低檯面淺,不會影響到坐著辦公的狀態)
↑↑設計圖vs實景↓↓
▲ 書櫃也是定製整面牆,有玻璃櫃、櫃門和抽屜,方便分類收納。旁邊放張沙發,可以休息,也可以招待友人。(窗外的景色依然鬱鬱蔥蔥,好生羨慕)
本案設計師
朱亞敏
“聆聽故事需求,用心設計,
呈現美好家居”
這家簡美風,你喜歡嗎?快到留言裡分享一下吧~











































 
			 
			 
			 
			 
			 
			 
			 
			 
			 
			 
			 
			 
			 
			 
			