而小戶型裝修往往才真的是拼設計能力,相比千篇一律的大戶型設計,Allen覺得小宅設計更值得一看。
好的小宅設計,真的是能“化腐朽為神奇”,甚至能改變、改善一個家庭三代人的生活狀態,讓他們的日子越過越幸福。
這期內容要分享的,就是一套54㎡小宅裝修案例,座標在廣州。
在Allen看來,這套設計,之所以能稱之為“裝修範本”,真的一兩句話說不完,必須看完才能真正震撼到。裡面真的藏著超多絕妙的設計巧思,不急,聽我講解,慢慢看!
屋主之所以從大房子搬到這所小房子裡,主要也是為了更方便照顧未來上小學的孩子們,在僅有的54㎡空間內,需要滿足超多功能需求:
- 要有很大的,且便於操作、儲物的廚房。
- 主廳要給孩子豐富的學習、活動、玩耍空間。
- 一家人都熱愛閱讀,要有超多存書的空間,要有可供一家人同時閱讀的大書桌。
- 要有一個舞蹈室,方便女主練瑜伽,方便女兒學跳舞。
- 孩子們的超多玩具要存放。
- 還有……常住6口人,2大、2小、4老。(這裡註明一下,雙方父母是輪流來住,但也需要偶爾滿足同時來住的可能性)
看到如此多需求,一般設計師估計已懵。
但設計師何雨晴老師,最終幫他們實現了這個改造夢想,讓人驚歎。
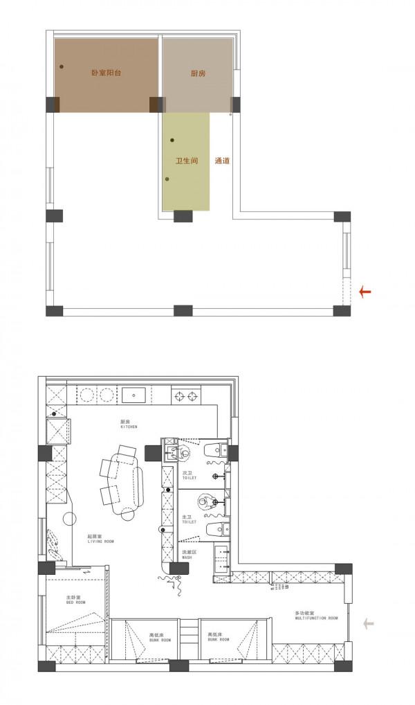
全屋空間半平米不浪費,住起來照樣不擁擠,一家人的日子過得簡單又幸福。(原本兩室一廳格局,改造成了高複合型四臥一廳)
在保證房屋結構安全,不違規、不動承重牆、不影響排水的情況下,整個空間都做了較大的改動。因為是老房子拆舊翻新,所以牆面找平後用到了黃色的牆固,可以起到穩固、抗鹼的作用。
改造後室內情況
咱們從入戶的位置開始介紹吧,也更方便大家閱讀。
進屋就是舞蹈室這個設計概念,真的是絕了。
因為入戶的空間較大,單純的設定玄關反而極浪費空間,於是就有了舞蹈室和玄關功能的巧妙融合。
兩側設定滿滿當當的頂天立地櫃體,滿足於一家人衣物、鞋子、玩具、囤貨雜物等大量收納。左側的鏡子櫃門恰好可充當舞蹈室鏡子,還能延展雙倍的視覺空間感,妙!
在空間劃分上,砌了半堵牆+埡口門洞,兼顧通風采光又能隔開背後的臥室。
復古絲絨的窗簾相當好看,從“氣質上”也契合了建築外觀“民國風”的復古文藝氣息。
長長的過道,有了右側櫃子的加持,變得絲毫不浪費。設計師巧妙地給下半部分的櫃體設定了拱形鏤空,一方面可帶來複古的元素造型,更顯精緻,另一方面孩子可坐在這裡閱讀、玩玩具,隨手可拿。
在佈局儲物和睡眠區域方面,設計師可謂“絞盡腦汁”。
剛剛孩子坐的過道左側,就是上圖中左側的睡眠區。因為是老房子,層高有一定優勢(3米多一點點,正常住宅是2.7米左右)所以恰好可以利用起來,打造出閣樓型臥室。
上層分別有對稱的兩個臥室,腳對腳,從中間爬樓梯上去。
男寶和女寶左右各一個,承重做了加固處理,非常穩固,夜燈、壁掛收納區一應俱全。側面也有安全且不壓抑的圍欄、窗洞造型設計,可以掛窗簾、蚊帳,透氣性好不壓抑。
樓梯本身也自帶收納能能力,孩子的玩具可隨處存放。
男寶的臥室下面是一個坐落閱讀區,還設定了可DIY繪畫的黑板牆,增加互動趣味。女寶的臥室下面是長輩的臥室,可供兩個老人入睡,採用榻榻米床架,能睡人能儲物。如此三個臥室就有了。
床下還有大量抽屜可以收納。
這裡將來可以改造成掛衣區。
這個視角可以看到,整個空間被利用得非常好,美觀、舒適、整潔。
如果有讀者,看得有點的,可以再鞏固一下戶型的平面設計細節。接著我們看左邊的主臥。
女兒房和老人房的右側就是主臥了,推拉門的設計更節約空間。
一樣是無床架的設計,整個地面直接抬高,用榻榻米櫃體填充儲物功能。
廣州到了冬天也是會冷一段時間的,開空調太乾燥,備著的厚衣服厚被子都可以放在下面收納。
床頭背後是儲物櫃,中間特地做了鏤空,以此解決沒有床頭櫃的置物問題,水杯、書籍、手機都可以放在中間。
這樣的四個臥室結構,足以滿足一家6口人同時居住,即便四個老人都來家裡,真的睡8口人也能住得下。
小戶型的空間放大,原來並不是“痴人說夢”。
看了主空間的整體效果,我被這親切治癒的氛圍深深迷住了,家的感覺如此濃烈。
在設計處理上,設計師用了“模糊界限、降低定義”的手法。設定了“去客廳化”,模糊了客廳、餐廳、書房的獨立概念,在小戶型當中實現了三者合一。
作為以親子互動為主要需求的家,捨棄傳統客廳是很明智的選擇。
只保留傳統客廳中的沙發休息功能,以卡座+定製坐墊(可拆卸)的形式,確保可空間利用無死角,增強儲物能力的同時又能便於沙發弄髒拆洗。
見縫插針地設定櫃子,不會讓空間擁擠,反倒對居住人口多的家庭而言,大量的儲物空間降低了雜物外露,藏起來乾乾淨淨!
櫃體一直銜接到右側新改造的廚房處,把角落處打造成了大型電器收納區,冰箱、洗衣機、烘乾機一應俱全,也解決了陽臺被廚房佔用的晾曬問題。
現在的廚房由原來的廚房和陽臺打通後得來,整個空間、採光效果得以最大化。
整合灶的設定,避免了開放式廚房的油汙難打理問題,充足的檯面空間,方便一日三餐製作各種美食。
雖然這套房子的樓層不高,但廚房外沒有任何建築遮擋,一整排窗戶望向屋外,古樸自然的街道映入眼簾,蔥蔥郁郁的綠植讓人心曠神怡。
餐桌成為了整個空間的主角,一方面它可供最多8人同時進餐,另一方面,它也是一家人的閱讀桌、孩子們的手工桌、學習區。
兩個小可愛也愛極了這裡。
馬卡龍配色的書櫃,溫柔又有趣,不會過於張揚或低幼,低飽和的色彩的櫃門配合原木色櫃體,更顯自然靈動氣息。
在主廳和臥室之間,都設定了隱藏的日式摺疊門,必要時可以讓空間之間相互分離,平時開啟摺疊門可以收納到角落處,完全不佔空間,方便打掃。
看到這裡,其實已經不難發現,這套小小的房子,早已滿足了一家所有人的生活訴求,而額外的驚喜還在後面。
這個驚喜就是衛生間的設計啦~
原本面積狹小的衛生間,納入被浪費的過道,借用了一點點廚房空間後,打造出三分離格局,並設定了雙動線。
上圖這邊就是第一個動線,正常的洗漱區,這裡設定了雙龍頭,加寬的洗漱臺。可供兩人同時刷牙洗臉,更節約家人早起通勤的時間。左側就是磨砂玻璃平開門隔開的馬桶區,確保了採光和隱私。
第二個動線就是從廚房右側進入,這裡是一個額外的馬桶區兼淋浴房。
並在淋浴房對面還有一個小型的洗漱臺,主要是方便如廁後洗手。
兩個動線是互通的,也可以分別從兩個方向進入衛生間。
雙馬桶的設計,真正意義上解決了一家人搶廁所的問題。三個洗漱位,真是非常夠用了。
實景圖沒看明白的,可以看看這張,就會瞬間清晰這個設計的意義所在了。
文末總結:
這是一套極具代表性的小戶型住宅設計改造案例,藏著濃濃的人情味,更是藏著滿滿的設計智慧,好的設計真的需要分享,讓更多人看到,也感謝大家的閱讀,歡迎在評論區發表您寶貴的看法~
