地面篇
籃球專用運動地板
籃球專用運動地板安裝三維示意圖△
- 設計時應考慮地板下通風,並在施工圖中繪出地板通風箅子和龍骨骨通風陣位置及大樣;
- 粘結用膠需選用運動用木地板專用膠粘劑。
籃球專用運動地板安裝節點圖△
網路地板安裝
靜電地板安裝三維示意圖△
- 1:3水泥砂漿抹面壓實趕光,幹後臥銅條分格(銅條打眼穿22號鍍鋅低碳鋼絲臥牢,每米4眼);
- 可調節支架系統。
靜電地板安裝節點圖△
自流平做法
自流平做法三維示意圖△
自流平做法節點圖△
地溝做法
地溝做法三維示意圖△
- 最低處增加暗藏地漏且有暗溝防止第二層防水滲滿;
- 地磚(8~12厚,幹水泥擦縫)(找坡)。
地溝做法節點圖△
鋁型材軌道門檻製作
鋁型材軌道門檻製作三維示意圖△
鋁型材軌道門檻製作節點圖△
吊頂
風口與金屬板相接
風口與金屬板相接三維圖示意圖△
- 根據圖紙確認風口的大小和位置;
- 根據開好的風口與吊頂的高度確認大小長短;
- 安裝空調系統風管;
- 龍骨的安裝;
- 風口的安裝。
風口與金屬板相接做法節點圖△
玻璃隔斷與鋁板相接
玻璃隔斷與鋁板相接三維圖示意圖△
- 在頂棚和地面彈出玻璃隔斷的位置線;
- 安裝固定下部的錨韌體;
- 再完成隔斷上部的安裝;
- 中間填滿橡皮墊或填充劑;
- 最後用密封膠密封。
玻璃隔斷與鋁板相接節點圖△
窗簾盒與玻璃幕牆相接
窗簾盒與玻璃幕牆收口節點三維示意圖△
- 龍骨吊件與鋼架轉換層焊接固定,連線處滿焊,刷防鏽漆三遍;
- 50主龍間距900mm,50副龍間距300mm,副龍橫稱間距600mm;
- 18mm細木工板刷防火塗料三度,與吸頂吊件採用35mm自攻螺絲固定;
- 9.5mm厚紙面石膏板用自攻螺絲與龍骨固定;
- 滿批耐水膩子三度;
- 乳膠漆塗料飾面。
窗簾盒與玻璃幕牆收口節點圖△
暗藏燈帶窗簾盒
暗藏燈帶窗簾盒安裝三維示意圖△
- 龍骨吊件與鋼架轉換層焊接固定,連線處滿焊,刷防鏽漆三遍;
- 50主龍間距900mm,50副龍間距300mm,副龍橫稱間距600mm;
- 18mm細木工板刷防火塗料三度,與吸頂吊件採用35mm自攻螺絲固定;
- 9.5mm厚紙面石膏板用自攻螺絲與龍骨固定;
- 滿批耐水膩子三度;
- 乳膠漆塗料飾面。
暗藏燈帶窗簾盒安裝節點圖△
木飾面與鋼結構圓柱相接
木飾面與鋼結構圓柱相接三維示意圖△
- 龍骨吸頂吊件用膨脹螺栓與鋼筋混凝土板固定;
- 50主龍間距900mm,50副龍間距300mm,副龍橫稱間距600mm;
- 9mm厚多層板刷防火塗料三度,用自攻螺絲與龍骨固定;
- 木飾面採用掛條固定;
- 加工定製內徑300mm,外徑350mm成品木飾面線條,與木飾面固定。
木飾面與鋼結構圓柱相接節點圖△
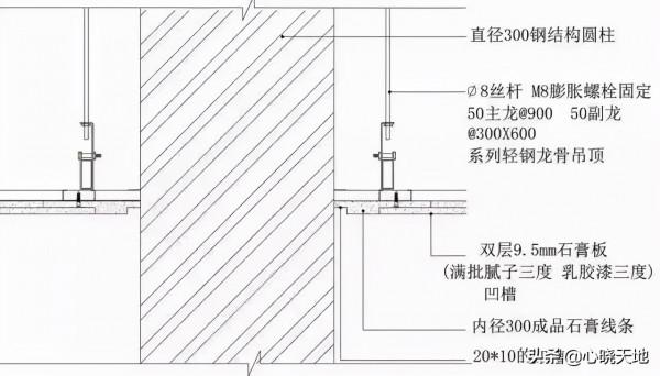
紙面石膏板與鋼結構圓柱相接
紙面石膏板與鋼結構圓柱相接三維示意圖△
- 龍骨吸頂吊件用膨脹螺栓與鋼筋混凝土板固定;
- 50主龍間距900mm,50副龍間距300mm,副龍橫稱間距600mm;
- 加工定製成品石膏線條,內徑300mm,外徑450mm,預留20*10的凹槽;
- 9.5mm厚紙面石膏板與成品石膏線條用自攻螺絲與龍骨固定;
- 滿批耐水膩子三度;
- 乳膠漆塗料飾面。
注意:留20*10的凹槽!
紙面石膏板與鋼結構圓柱相接節點圖△
牆面
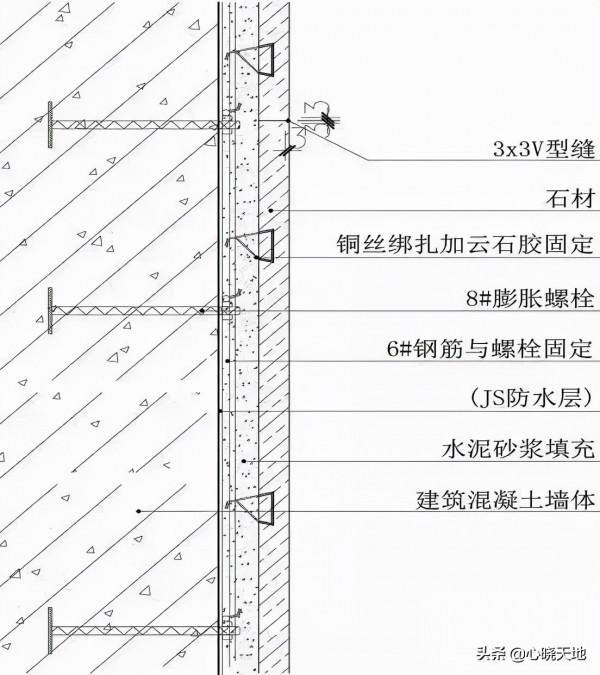
石材與混凝土牆相接
石材與混凝土牆相接三維示意圖△
- 牆面做JS防水層;
- 選用石材18mm,均經過六面防護、晶面處理;
- 塑造石材造型,上下口做3mm倒角;
- 石材安裝前進行打眼,方便銅絲固定(上下共4個眼);
- 鋼筋與石材固定;
- 土建牆體固定膨脹螺栓;
- 鋼筋用螺栓固定,鋼筋成網狀;
- 銅絲栓綁於鋼筋網;
- 石材與牆體之間填充水泥砂漿,即灌漿。
石材與混凝土牆相接節點圖△
陶瓷馬賽克隔牆工藝做法
陶瓷馬賽克隔牆工藝做法三維示意圖△
- 選用馬賽克,表面平整、尺寸正確、邊稜整齊;
- 上下固定75天地龍骨,上38穿心龍骨完成基層施工;
- 固定水泥板,上雙層鋼絲網;
- 水泥砂漿抹灰找平處理,一定保證平整度;
- 刮毛處理,保證粘結層的附著力;
- 鋪貼馬賽克,完成施工;
- 揭紙、調縫、擦縫。
陶瓷馬賽克隔牆工藝做法節點圖△
玻璃窗戶與牆面相接
玻璃窗戶與牆面相接三維示意圖△
- 玻璃物料選樣,無劃痕,無損傷;
- 鋼架基層預埋;
- U型槽的焊接安裝;
- 彈性膠墊填充;
- 安裝玻璃,透明膠條填充;
- 收口處3mm打膠處理;
- 清理,保護。
加氣塊牆石材幹掛
加氣塊牆石材幹掛三維示意圖△
- 選用石材18mm,均經過六面防護、晶面處理;
- 塑造石材造型,上下口做3mm倒角;
- 加氣塊牆體固定鍍鋅鋼板,一般用8#穿牆螺栓固定;
- 在幹掛件無法滿足造型的需求下,採用滿焊5#角鋼轉接件,以調整完成面與牆體的間距;
- 滿焊8#鍍鋅槽鋼豎向龍骨;
- 滿焊5#鍍鋅角鋼橫向龍骨;
- 固定不鏽鋼幹掛件;
- 固定不鏽鋼幹掛件,AB膠固定石材,完成安裝。
加氣塊牆石材幹掛節點圖△
藝術玻璃與牆面相接做法
藝術玻璃與牆面相接做法三維示意圖△
- 玻璃物料選樣,無劃痕,無損傷;
- 鋼架基層預埋;
- 鋼架基層焊接;
- 使用結構膠安裝藝術玻璃;
- 安裝完成,清理,保護。
藝術玻璃與牆面相接做法節點圖△
木龍骨幹掛木飾面牆面做法
木龍骨幹掛木飾面牆面做法三維示意圖△
- 30*40mm木龍骨中距300mm,刷防火塗料三度,用鋼釘與木楨固定,木楨固定在混凝土牆體內;
- 12mm厚多層板基層找平處理,用鋼釘與木龍骨固定,刷防火塗料三度;
- 木掛條中距300mm,用槍釘與多層板固定,木掛條背面刷膠,且刷防火塗料三度;
- 木掛條背面刷膠與木飾面用槍釘固定;
- 木飾面卡件安裝,木飾面平整度調整。
混凝土隔牆乳膠漆類做法
混凝土隔牆乳膠漆類做法三維示意圖△
- 混凝土隔牆表面清除乾淨,牆面滾塗介面劑一遍,素水泥漿一道內摻水重3%~5%的108膠;
- 10厚1:0.3:3水泥石灰膏砂漿打底掃毛;
- 6厚1:0.3:2.5水泥石灰膏砂漿找平層;
- 滿刮三遍膩子(內摻水重3%~5%的108膠);
- 封閉底塗料一道,待乾燥後找平、修補、打磨;
- 第三遍塗料滾刷要均勻,滾塗要循序漸進,最好採用噴塗。
混凝土隔牆乳膠漆類做法三維示意圖△
