這是一套570平米的獨棟別墅,還帶有一個200平的花園,整體空間以現代舒適的設計為主,在大面積的空間下,透過實用與藝術結合的佈置,營造出一種高階的人文居住體驗。
玄關
▲玄關在六邊形地磚的基礎,左側裝一面全身鏡,右側加入一個定製鞋櫃,在玄關與大廳之間還裝了一扇屏風門,增加了室內空間的私密設計感。
客廳
▲客廳空間比較寬敞,沙發區域在紫灰色的地毯基礎,沙發環繞著茶几佈置,為一家人帶來一種時尚優雅的居家聊天體驗。
▲電視牆左側加入一個鏤空門洞,在簡潔的牆面基礎,掛上一組黑白色的裝飾畫,簡素的背景牆,結合軟裝的烘托,顯得簡潔而不失優雅質感。
▲弧形意式沙發,也讓空間顯得更加舒適優雅。
▲簡潔的沙發牆上,掛一幅藍色的圓形裝飾畫,擺上一套造型獨特的沙發,搭配極簡巖板的雙拼餐桌,也讓客廳氛圍顯得更加精緻舒適而高階。
▲客廳大面積的落地窗外,就是小院子,通透明亮而大氣的空間設計,也帶來了一種優雅舒適的居住空間體驗。
餐廳
▲餐廳在圓形餐桌椅佈置基礎,地面鋪上圓形地毯,吊頂也是做了個圓形的造型,結合水晶吊燈的裝飾,也讓空間顯得更加華麗精緻而高階。
茶室
▲地下室裡設定品茶區,精緻茶臺後方定製一個收納櫃,兩側櫃子加入玻璃櫃門,茶臺上佈置精緻的茶具與花瓶,也讓空間顯得更加禪意優雅而舒適大氣。
小院
▲小院地面鋪上防腐木地板,佈置戶外傢俱、種上鮮花與樹枝,也把自然生機感引入到院子裡,增添生活的文藝氣質。
兒童玩耍區
▲兒童房玩耍區,擺上玩具、小鋼琴、樂高牆等設計,為孩子帶來了一個童趣感滿滿的空間。
品酒區
▲品酒區大面積的酒架,靠窗位置一張小吧檯,也為空間帶來了一種精緻情趣的高階生活體驗。
運動區
▲單獨的運動區,鋪上瑜伽墊、運動器材,並在角落放置休閒沙發椅,也為主人提供了一個舒適輕鬆的在家運動體驗。
臥室
▲臥室床頭牆貼上灰色調的植物枝葉圖案牆布,佈置灰色皮藝床、床尾沙發與小茶几,地上鋪著米白色的床單,也為空間帶來了一種現代舒適的精緻與高階體驗。
▲面積寬敞的臥室,還在床尾的牆上裝上電視機,結合床尾沙發的佈置,也為主人提供了一個放鬆自我的小區域。
▲側邊的鬥櫃與掛畫裝飾,結合小茶几的花瓶點綴,也是點亮了空間的溫情與優雅氣質。
主衛
▲主衛地面以仿古磚的地面,牆面從下往上以藍色-白色的漸變馬賽克磚組合,裝上一個圓形的浴缸,也是帶來了一個自然安靜的衛浴體驗。
樓梯
▲鏤空的黑色旋轉樓梯,也為空間帶來一種別樣的設計體驗。
▲樓梯上方的學習書房空間,裝上一整排大尺寸的玻璃書櫃,讓書籍有了實用方便的收納位置。
樓梯②
▲另一個樓梯是常規踏步樓梯設計,牆面上繪上蘿蔔小雞的素描,也帶來一個靈活生動的空間。
▲金屬質感的樓梯扶手,斜頂天花以木質裝飾,再吊上一盞球形的吊燈,也為空間帶來了一種文雅高階的居住體驗。
學習區
▲樓梯上到最上層就是閱讀學習空間。
▲成品書桌椅,定製書架+軟木板組合,為孩子提供了一個活潑的學習區域。
兒童房
▲深藍色的海洋主題牆布為基礎,佈置上現代優雅的床鋪、書桌與傢俱細節,也讓空間顯得更加安靜文藝而優雅。
兒童房②
▲兒童房②採取雙床佈置設計,兩端佈置小床,中間是視窗剛好留空,對稱設計基礎,灰色床+白色床單,結合藍色地毯,也為空間帶來一種安靜優雅的空間體驗。
樓道
▲樓道牆面貼上灰色牆布,佈置小鬥櫃,地面創意鋪貼的木地板,也為空間帶來一種文藝高階的生活體驗。
房子外觀
▲獨棟的別墅空間,令人羨慕的生活體驗。
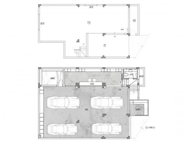
平面佈置圖
設計:ACE謝輝設計,攝影:張騎麟,點評:設計館
