房屋資訊
面積:123平
裝修費用:50萬
座標:上海
設計師:蕭嘉敏
屋主資訊
職業:白領
年齡:80後
簡介:屋主一家三口,還有一隻狗狗,本次改造屬於舊屋翻新。屋主希望保留原有棕紅色木地板,居住壓力不大,整體格局不需要大動;風格喜歡簡約,可帶點禪意;特別希望增加家裡收納,希望能保留家裡的一件有紀念意義的玄關幾。屋主一家深受傳統文化薰陶,喜歡讀書、字畫、品茶,女主人從小學古琴。
戶型圖
△ 原始戶型圖。可以看到,黑色承重牆較多,各空間區域基本已經鎖定,正好屋主也不想大改,而且保留原來木地板也不好動牆。屋主希望:
1. 全屋收納多一些,讓家裡保持整潔;
2. 增加玄關,提高實用性和私密性;
3. 客廳不需要電視機,希望客廳是靈活的,能容納一家三口在一起學習、玩耍、交流,一家人可以多聚在客廳;
4. 原有廚房動線不舒服,希望調整廚房動線,操作檯多一些,最好有個中島;
5. 最佳化洗衣房和晾曬區域,原有北陽臺很雞肋,希望這次改造能充分利用;
6. 南陽臺獨立,合理安排狗狗的家,還希望能在這裡曬太陽看風景
△ 改造後的戶型圖。
由於不能大改,設計師只能“螺絲殼裡做道場”:
1. 完善豐富了玄關功能:廚房牆左移,玄關左邊增加了一個鞋子儲藏間!右邊增設換鞋凳,掛衣櫥,在玄關鞋櫃後面還增加了一個儲藏間!小小儲藏間大大的收納容量!
2. 廚房格局大改造,最佳化操作動線,增加中島,增加電器櫃,廚房每一寸都利用得好好的!
3. 次臥的牆打薄,做了一個深度足夠的好用的大衣櫃!
4. 北陽臺大改造,既能洗衣晾衣,又有大大大量收納空間,清潔工具、生活用品、大件儲物,安排得妥妥的!
玄關
△ 改造前:沒有玄關,進門一覽無遺。門口只放了一個簡易鞋架和靠牆矮櫃,使用很不方便。
△ 改造後:方正的玄關。
改造後的玄關爆爆爆好用!換鞋凳!全身鏡!衣帽櫃、鞋包儲藏間、洞洞板收納小物品/雨傘,玄關該有的功能都有,該藏起來的一件都看不見!^_^這個設計妙不妙?
△ 小儲藏間隔斷玄關與客廳,進門不再一覽無遺。(這個儲藏間背後就是玄關哦!這一平米的櫃子,真的太能藏了!)
△ 玄關改造前後戶型圖。玄關兩邊都改造成小型儲藏間,容量超大大大!
△ 玄關左側,儲藏間尺寸圖。
打掉與廚房之間的牆體,利用牆體厚度和廚房的部分空間,做成一個鞋、包儲藏間,就算小小的儲藏間,輕鬆收納一百多雙鞋子+N個包包! 開啟摺疊門,一百多雙鞋子擺出來隨便選!這感覺太棒啦!
△ 玄關右側,玄關櫃尺寸圖。
增設了換鞋凳和衣櫃,還做了洞洞板,隨手的物品可以放這裡。這個櫃子不僅方便好用,還無形中提高客廳的私密性。
△ 進門處正對玄關的端景。
這是屋主留做紀念的玄關幾,看到它不禁感慨:家雖然翻新了,但它還是我們的家!這是一個穿越時空感的物件,它是懷念舊家的情感橋樑!
同時,為了凸顯玄關感覺,我特意增設了格柵造型的原木色牆板,臥室門做成平面的原木色牆板,整個牆面看起來雅緻、簡約,讓人完全看不出主臥隱形門的存在。
♬小遊戲:你找到了主臥門了麼?還有衛生間、次臥門、廚房門呢?你看出來了麼?(繼續往下看可以看到答案哦!)
客廳
△ 客廳改造前:風格老舊、整體偏暗,最大問題是收納空間不足,家裡擺滿東西,再勤快收拾,看著都亂亂的。
△ 這是客廳效果圖一稿,在做裝修過程中,屋主決定客廳與朝南房間之間不做窗戶,保留牆體。
△ 客廳改造後,深木色傢俱和地板相呼應,
白色天花板和牆讓空間更明亮,
亞麻色地毯增加層次感,
配上疏淡寥落的綠植,
我把客廳搭配成耐看的日式禪意風!
很好地讓保留下來的棕紅色木地板融入新的風格!
△ 屋主比較重視一家人一起辦公學習,平時也少看電視,所以摒棄常規客廳做法。
客廳不做電視牆,打造了整牆的書櫃。
書櫃部分封閉,可收納大量雜物;
部分鏤空,可擺放大量書籍,既實用又起到裝飾作用。
隔著螢幕也可感受到屋主家濃濃的書香氣息!
△ 麻布沙發和窗簾,舒適實用。旁邊放一個電腦桌,滿足一家人一起辦公學習的需求。
△ 疏淡寥落的綠植,給房間增添一絲禪意。
△ 另一個角度的客廳,非常通透。增加了收納櫃,和書櫃後,家裡東西都能藏起來了!
(設計師光腳亂入 哈哈哈哈!)
餐廳
△ 改造前的餐廳,座位與過道感覺擁擠。
傳統木地板與現代簡約風的餐桌也格格不入。
△ 餐廳效果圖。佈局調整後,不再擁擠,還有空間放餐邊櫃了!
△ 直線條的木製桌椅、吊燈,盡顯日式簡約之美!
同時與保留的木地板風格融合!
廚房牆以木飾面裝飾,更顯雅緻和格調;
右牆鋪暖氣片,既保暖,又可以護牆;
窗邊增加了實用的餐邊櫃,和一個迷你冰箱,專門放茶葉。
△ 蘊含古意的茶杯,角落裡充滿禪意的綠植,
喻示著這裡既是餐廳,也是愜意的茶室!
△ 廚房門做成隱形門,有日式推拉門的味道,既美觀又實用!
門的右邊,借用牆體厚度,做了一個小水吧,安裝了嵌入式淨水機。
△ 從餐廳看客廳方向,非常通透!在此處喝茶看書,既可以看客廳景色和客廳家人互動,也可以和廚房裡的家人互動!
廚房
△ 改造前的異形廚房,操作檯面少,動線不合理。炒菜時,從門口旁的冰箱拿食物出來,洗、切、炒、端出餐廳的動線如圖所示;添飯還得轉幾個彎到最裡面的陽臺。整個北陽臺看著凌亂不好用,捨棄這麼好採光的地方又不捨得,真的好雞肋。
△ 改造後的廚房,做落地電器櫃,嵌入式冰箱,高效利用空間;
冰箱前方檯面作中島臺。改造後,拿食物、解凍、洗、切、炒、端出客廳的動線如圖中所示,流暢合理。
△ 改造後的廚房,調整了門口位置,使用更方便;
爐灶處的牆內移,讓位置給玄關做鞋櫃,廚房面積減少了一點,但實際利用面積卻沒有變小;
Ū(U+I)型操作檯超大,動線合理。水槽左邊是中島臺,在中島臺放置或解凍好的食物,洗、切、炒一條線完成,然後就近端出餐廳,非常方便。
△ 冰箱前是中島臺,中島臺旁邊放電飯煲(這些是屋主隨手拍的照片)。
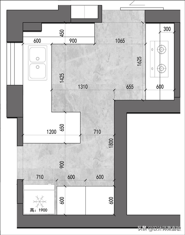
△ 改造後廚房平面圖,附尺寸。
洗衣房
△ 改造前的北陽臺,放置了一臺洗衣機和眾多廚房物品,沒有晾曬區域。洗好的衣服,需要穿過廚房、餐廳、客廳,拿到南陽臺晾曬!兩面超大窗戶的採光都給了這雜物間,真是太可惜了!
△ 改造後的北陽臺,成為專門的洗衣晾衣區,充分利用了這兩面大窗戶的採光!真是太棒了!
還能儲物,左邊牆做擱板擺放雜物,因為此處有個消防門,所以不能直接做整牆櫃;我用簾布擋起來,既防水,又保持簡潔美觀。
家裡的拖把池、清潔工具、行李箱、大件物品,都藏藏藏,藏在窗簾後面啦!!!
藏起了就是好,看起來家裡整潔多了!
主臥
△ 主臥門口正對客廳,斜對玄關,私密性不夠好。
但是整個主臥都被深黑色承重牆包圍,無法改動門口位置。
△ 於是,我把主臥門設計成隱形門,日常處於關閉狀態。從玄關和客廳看過去,平時都是整面的木飾面牆,大大提高了美觀性和私密性!
(♬小遊戲答題啦!你猜對了嗎?)
△ 改造前的主臥。
△ 主臥效果圖。
△ 改造後的主臥。效果圖的落地還原度不錯。
原木色的背景牆,櫻桃木色的傢俱,配原有的棕紅色地板,它們居然那麼搭!
喜歡這些元素的小夥伴可以用起來哦!
△ 改造前的主臥和衣櫃。
△ 另一個角度的主臥效果圖。
△ 改造後的主臥和衣櫃。
木飾面背景牆簡約又時尚!
△ 床頭櫃和閱讀燈。
主衛
△ 改造前的主衛,乾溼不分離,淋浴和浴缸在一起,難清洗、易滑倒。
△ 改造後的主衛,乾溼分離,浴缸和淋浴分開。
△ 改造後的主衛。洗手檯和浴缸之間留了空間,可以放收納架子哦!
△ 主衛改造平面圖。乾溼分離,浴缸與淋浴間分開,馬桶移到洗手盆對面。
次臥
△ 次臥門與客衛門,都做成了隱形門。
小小的走道,做了木飾面和隱形面,顏值很高!
(♬小遊戲答題時間!次臥門和衛生間門!你們找到了吧!)
△ 這是屋主10歲兒子的房間,以實用為主。兒子在校寄宿,回家時間少,喜歡看書、下圍棋。
△ 房間寬度比較小,設計師打薄了左邊牆,添置了實用的大衣櫃。
客衛
△ 客衛平時是給兒子用的,把洗手檯安排在窗戶旁邊,增設轉角鏡子,用起來方便多了!
△ 客衛尺寸圖。
客房&書房
△ 這是客房兼書房。
△ 柔紗簾很合適做在書房,柔和的光線穿過,撒入家裡的書桌上,很是愜意
書桌和邊櫃都是櫻桃木的傢俱,網上看到款式,到了上海的門店看了實物,質感蠻好的,屋主很喜歡。(櫻桃木實物質感是不錯的,只是櫻桃木是越放越紅的哦,介意的慎選!)
後記
屋主家這款棕紅色木地板,在上海老公房和精裝修房很常見,又很耐用,裝修時換掉又可惜,不換又很難搭配。
我結合屋主的喜好,把房子改造成日式禪意風,和諧又好看!你覺得怎麼樣呢?
我是@設計師蕭嘉敏,喜歡請關注、點贊和轉發哦!
我的其它案例:
1.《太美了!她把133m²精裝豪宅砸掉,改成慵懶度假屋!朋友都說好!》
2.《絕了!她把128平三房變四房,客廳怎麼還能變大一倍?鄰居都想學》
3.《老舊昏暗95平兩居變身敞亮美式,她是怎麼做到的?(附施工乾貨)》
