從投入成本上考慮,租房比買房要划算很多,但為什麼很多人寧願砸鍋賣鐵、節衣縮食也一定要買房呢?除了求得一份安穩外,更多的是希望有自己的房子後,可以過上自己真正想要的生活,畢竟租來的房子,只能湊合著住,即便自己願意花錢去改造,也得房東同意才行。
本期分享的這套裝修案例的屋主,在辛苦打拼好幾年後,終於如願以償地買下了一套專屬於她自己的房子。雖然是二手房,她的裝修預算也非常有限,但全屋最終所呈現出來的效果,還是讓她很滿意的。
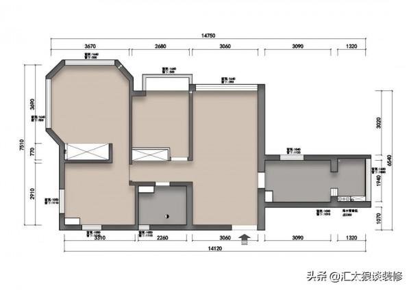
這套房子原本是小三房的格局,不過屋主妹子單身,並不需要那麼多的房間,所以將北向的一個小房間與主臥打通,變成一個帶有獨立衣帽間的大套房,而原來的次臥,也拆掉兩邊的隔牆,改用日式障子門圍合成一個多功能房。另外,廚房裡面也做了一個小的調整。
整個裝修,沒有任何刻意炫技的成分,全是以屋主的所需所喜來打造的,所以,即便不如別人家的裝修那樣精緻奢華,卻是她心裡的聖地。一起走近了欣賞一下吧。
房子是進門就見廳的戶型,所以入戶收納功能就安排在了大門兩邊,一邊是全身鏡和半高的成品鞋櫃,一邊是頂天立地式的衣櫃,門口牆面上的電錶箱,也用一個簡約的掛鐘做了遮擋,一進門,功能齊全又清爽。
廚房這邊做了一個小的調整,將中廚操作區安排在了原來的生活陽臺那邊,而原來的廚房則設為西廚操作區和家政區,如此一來,廚房內側外側都很敞亮。
廚房內定製了U型櫥櫃,整體的白色系顯得十分明亮,再加上這邊直接對著窗戶,採光更好,能極大地提升烹飪體驗。
大門左側是餐廳,餐廳這邊除了擺著一套樸素的木質餐桌椅外,四周沒有任何花哨的裝飾,與碎花桌布、日式吊燈組合在一起,顯得非常地文藝小清新。
客廳這邊也摒棄了一切花裡胡哨的裝飾陳設,而延續了日式的質樸自然之風。深綠色的沙發配上白色和木家的傢俱,顯得十分地清新自然。沙發背後多功能房的日式障子門,剛好成為沙發背景牆的造型,與整個空間的氛圍十分契合。
多功能房兩側的障子門,都是採用的摺疊式的設計,折起來後,比移門所佔的空間要小得多,也就是說,多功能房可以最大化地敞開,與客廳和過道連為一體,增加通透性,讓空間更顯開闊敞亮。
多功能房內,通鋪榻榻米,並帶有升降桌和一整面儲物櫃。將客房、休閒區與儲物間等功能結合為一體,又實用又靈活。
臥室的形狀不太規則,會給視覺上帶來一些不適感,所以設計師在床頭背景牆上鋪設了一圈木飾面,並一直延伸至轉角處,形成一種床被包圍在中間的感覺,極大地削弱了原本存在的突兀感。
臥室內,除了單獨的衣帽間外,床側面也定製了一組衣櫃。整體的白木色調,顯得十分地清新自然,臥室氛圍更被營造得恬淡安寧極了。
最後就是衛生間了,衛生間是乾溼分離的,洗漱區的牆面鋪設爵士白瓷磚,浴區室的牆面則鋪設六角花磚。清新淡雅的配色,顯得十分地清爽明亮。
看了這個妹子的家後,我只想說:自己買的房,住著就是香,雖不如人家的精緻奢華,但溫馨舒適又實用。真的讓人超級羨慕了!
