導語:發現一戶原木風裝修,因餐廚區設計而走紅,堪稱小戶型“天花板”!
文案編輯:斯斯
原木風可以成為家裝中最具有治癒效果的色彩,它溫潤而細膩,正是一個“家”應有的包容與溫度。
本期案例除了配色以外,客餐廳的佈局和細節都有許多值得學習的地方,堪稱小戶型的“天花板”。廢話不多說,快跟隨小編的步伐,一起來看看吧。
本案例戶型2房1廳2衛,面積為90㎡,常住人口為2個大人,座標北京。
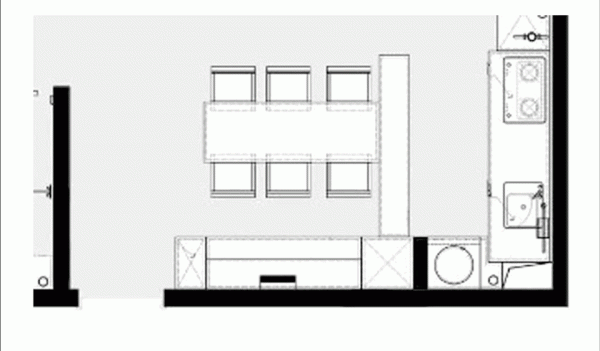
從佈局的角度來看,本案例主要有三個亮點:
①入戶隔斷:入戶正對客廳,便採取立柱隔斷的形式進行遮擋。
②開放式餐廚:打通餐廳與廚房,巧用吧檯分割兩個空間。
③雙衛生間:提高男女屋主的生活質量和效率。
入戶+餐廚區
這個戶型入戶門的左側門框離牆很近,所以這面牆只能設計為懸掛區。設計師巧妙地採用了和入戶隔斷同樣的元素,打造出一個木柱掛衣區。
斯斯建議:針對入戶門一側是牆的戶型,屋主可以綜合家人們日常的生活習慣,設計為牆面掛衣區、摺疊式的穿鞋凳、全身鏡等等。
入戶門的另一側就是餐廳和廚房,本案例將鞋櫃和餐邊櫃結合在一起,透過門板開啟方向來區分功能性。
在配色上,鞋櫃和餐邊櫃都選擇了明亮的白色系,這種配色方案可以將櫃體與白色的牆面融為一體,透過減輕櫃體的存在感來擴大房子的空間感。
再同步搭配溫潤的原木色,整個客餐廳看起來層次分明,簡潔幹練。
在空間格局方面,設計師考慮到原始戶型的廚房和餐廳沒有室外窗,便將餐廚區打造為開放式。
餐邊櫃還採用了上下分體式的設計,中間檯面可作為小家電的操作區。
屋主一家的烤箱、咖啡機、水壺等都固定放在這裡,輕鬆擁有一個實用性很強的水吧檯。
斯斯建議:餐邊櫃不僅僅是收納酒瓶、餐具的櫃子,中間留空的設計可以成為獨立的功能區,同時別忘了在牆面多安裝幾個插座。
在本案例中,格局設計的最大亮點之一就是島臺。設計師考慮到原始戶型的廚房面積狹小以及採光不良的問題,便透過一道40公分的島臺來分割兩個功能空間。
島臺靠牆一側與廚房的高櫃相連,高櫃與餐邊櫃相連,兩個空間之間便有了互通連貫之感。
屋主再將餐桌緊靠島臺放置,除了滿足正餐需求以外,偶爾下午茶或者陪伴孩子的同時還可以在這裡兼顧工作的需求,使得這裡成為家裡的核心社交區域。
餐廳與開放式廚房的連通,看似各自獨立卻又連貫而緊密相關,準備佳餚的同時,給予了家人更多精神上和言語上的交流。
現在有很多業主都會選擇把洗衣機和烘乾機放在廚房的位置,特別是針對沒有陽臺的戶型。
增加了島臺以後,整個廚房的操作檯面就多了一倍。這樣無論是日常做飯還是朋友聚會,屋主都能有充足的準備空間。
大多數業主都會嫌棄外露的燃氣表很難看,其實遮掩的辦法有很多種,比如你可以把它包進吊櫃或者改到地櫃裡。
本案例屋主則是選擇將其包進一門到頂的高櫃裡,這樣一來,整體餐廚區就從燃氣灶旁的高櫃一路延伸到入戶位置的鞋櫃,形成一個L形的收納區。
斯斯建議:特別推薦大家學習本案例的餐廚區設計,一氣呵成的L形收納櫃讓整個空間變得十分完整。對於小戶型來講,越規整連續的空間也就越顯大。
客廳
雖然這個家只有90㎡,但一眼看過去卻顯得很大很明亮,這得歸功於客餐廳的牆頂面以及隔斷設計。
首先,屋主為了避免入戶見廳的尷尬,採用了木格柵隔斷的形式,這種元素既能滿足有所遮擋的心理作用,也絲毫不影響客廳光線進入玄關。
對於原木風格來講,這樣的木格柵搭配紋理自然的木地板和白牆面,整個家都顯得十分溫馨和質樸。
午後暖陽慵懶地撒入客廳,一切都變得溫暖起來。簡潔幹練的線條也讓客廳顯得更為整潔。
大面積的收納電視櫃滿足了全家人的收納需求,L形原木風開放格的存在打破了白色的單調感,整個電視櫃的配色設計變得有輕有重,十分耐看。
這個家之所以看起來很寬敞的另一個原因便是牆地面的設計。屋主除了必須的空調吊頂外,其他位置沒有做任何裝飾。除此以外,統一的白色也讓房子看起來更通透。
臥室
清新雅緻是主臥打造的主基調,衣櫃被設置於房間入口處,為臥室帶來了更寬闊的使用面積。
臥室的頂面也沒有做任何裝飾,唯一的窗簾盒的設計會讓空間看起來會顯得更加乾淨利落。
飄窗將更多的陽光引入室內,午後時分依靠在飄窗軟墊上,便可以俯瞰城市之景。
衛生間
上班族肯定都體驗過早上搶衛生間的痛苦,設計兩個衛生間,男女主人便可告別洗漱擁擠的煩惱。
清新的霧霾藍搭配淺灰色的拼色牆面真的很好看,帶著灰調的色彩讓空間顯得低調又時尚。
另一個衛生間則安裝了浴缸,週末忙碌的工作後,屋主喜歡用泡澡來清除所有的煩惱與疲累。
說在後面
無論生活在哪裡,是怎樣的房子,都要用心去佈置成自己喜歡的樣子。這樣一來,當我們工作生活中,遇到七零八碎的事情時,家便是可以包容我們一切的地方。
以上案例僅為設計分享,如有侵權請私信刪除。
—THE END—
