院子始終是大部分人不可磨滅的情懷。如果能在上班回家的路上,都能途經自己花園的風景,閒暇時還能坐在這片自己的花園裡辦公喝茶,多麼愜意!這種情懷也促成了頂樓與底層因為開闊的露臺與花園,一經出售就會被哄搶一空的局面。但是很多人購買底層與頂樓後,每年都要花費一定的價格對花園進行維護,尤其是住在一樓的業主,每日還要擔心高樓上墜物的危險,一年光玻璃維修就要花不少錢,實在是令人發愁。
............................................
............................................
今天介紹案例的主人曾先生就是這樣一個居住在成都華潤紫雲府一樓的住戶。多年前曾先生曾對一樓花園進行過改造。沒想到在平時使用過程中遇到很大的安全問題,樓上拋物經常砸壞遮陽傘,讓曾先生一家不敢長時間待在花園中,無心享受閒暇時光。
此外,還有兩點,讓花園成為曾先生一家“只可遠觀、不可褻玩”的無用風景:
一個是花臺泥土深度不夠,植物很難養活;
二是花園燈光設計不合理,尤其在晚上回家進花園,要走到最遠處才能開啟光源。
第一次花園效果
............................................
出於這三種因素,設計師出身的曾先生親自操刀,重新對花園進行改造,一勞永逸。
    戶型資訊
樓盤名稱:成都華潤紫雲府
花園面積:70㎡
工期:45天
造價:4.2萬
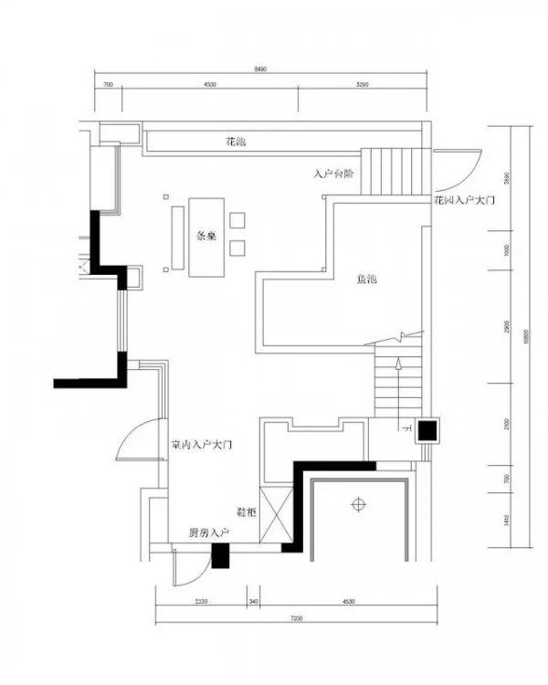
第二次花園設計平面圖
............................................
............................................
改造後全景一覽
............................................
改造後的魚池,是曾先生家裡的貓最愛的地方
針對家裡的三個問題,曾先生使用了四種絕招來解決:
第一,新砌花臺。由原來地面種植改為花臺種植,此次新砌花臺高度在60cm,保證泥土深度適合植物生長。
第二,更換休閒桌椅。將原有的黑色鐵藝圓桌換為木質方桌和條凳,增加可入座人數的同時又能增添溫暖柔和的質感。
第三,新建玻璃陽光棚。這也是曾先生此次改造的創新之處。
為了保證在花園小憩的人們的安全問題,曾先生特地定製了這個陽光棚,它是用橫縱交錯的鋼製矩管作為主結構,再以5夾5夾膠鋼化玻璃作為頂棚的設計,既保證了充足光照,又能擋風遮雨。但是由於處在戶外環境下,玻璃上方容易積灰,所以曾先生在玻璃內側用楸木條做了格柵設計,這樣不會影響採光,也轉移了視線重心,豐富整體設計感,同時還保證了私密性,可以說是一舉多得的設計。充滿美式風情的吊扇燈,實用與美觀並存。
在5夾5的夾膠玻璃基礎上,曾先生又加裝了一層5mm厚的整塊鋼化玻璃。5夾5夾膠玻璃與矩管粘結相當牢固,以此防止漏水滲水到陽光棚下,一旦樓上有大塊拋物落下來,首先破壞的是上層玻璃,更換起來方便很多,而且價格更低,如果直接破壞夾膠玻璃,更換費用高,施工也更復雜。與往年相比,光更換玻璃的錢,每平米都至少節省了860元。
不過曾先生委託家小和提醒各位,陽光房的玻璃一定要使用具有3C認證的鋼化玻璃,最好用雙層夾膠鋼化玻璃,如果預算充足用三層夾膠鋼化玻璃更好,抗擊打能力更強,即使玻璃碎裂,碎片也會被粘在薄膜上,破碎的玻璃表面仍保持整潔光滑。切忌圖便宜使用普通玻璃,安全得不到保障。
第四,使用智慧開關改善照明。本次改造前,如果從花園入戶的話,需要穿過整個花園才能開啟花園照明,如下圖所示。
這次改造中,曾先生將智慧裝置融入其中,不用增加電路改造,而是直接使用智慧開關控制,使用方便又充滿科技感。購買小米的門窗感應器、開關與閘道器,經過設定後,在晚上7點到早上7點的時間,只要有人推開門進花園,燈就會自動開啟,真的是省心又方便!
最後一起再來仔細的欣賞一下曾先生家的花園吧!
曾先生說,這片魚池旁邊,總會出現這隻小白貓的身影。這是曾先生家的貓最喜歡呆的地方,有魚有花,貓生滿足(*^▽^*)~
現在成都天氣正好,曾先生就把自己的辦公場所搬到了這裡。曾先生說,比起室內辦公,這裡空氣更加清新,自然風吹起來,也比空調風吹得更加舒爽。這裡是一個多功能的空間,除了辦公之外,曾先生還非常樂意將自己家的餐廳也改在這裡,另外要是有友人來訪,這裡也可以飲茶聚會。
花園裡一些植物花卉的細節。經過改造後,花園裡的植物生長的非常茂盛,再也不會像以前那樣雜草叢生了。
編輯留言
歡迎大傢俬信小編來聊聊裝修這件事兒吧~



























 
			 
			 
			 
			 
			 
			 
			 
			 
			 
			 
			 
			 
			 
			 
			 
			