記得點選關注“裝個好房子”哦~
每天為你帶來裝修乾貨、改造新靈感與美好生活故事
探尋美好居住方式,我們值得更好的生活!
----------------------------------------------
現如今,很多人購買小戶型,往往是看中了它能夠滿足自己的剛性需求:價格適中、地段好、周圍配套設施完善。
但很多市區內的老破小,總是存在著諸多硬傷,無玄關、採光差、功能分割槽不合理、擁堵逼仄等等。
那麼,究竟如何佈局與設計,才能讓面積小的房子,擁有如大宅般通透的視野,以及舒適的居住感呢?
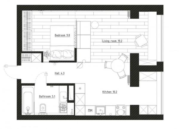
接下來房君要介紹的,就是一個夫妻、情侶可以直接抄作業的48㎡的房子!
從戶型圖上可以很直觀地看出,整個室內空間被不同的地面材料劃分成兩個部分:
一面是更追求舒適度與溫馨感的客廳與臥室,另一面主打耐髒耐磨、好清理的廚房、餐廳和衛生間。
這種不用傳統隔牆,以不同材質的家居建材來劃分功能空間的方式,特別適合既追求整體感與層次感,又要求區域完整、視覺上看起來開敞通透的中小戶型。
別看房子面積不大,一進門卻有個獨立的玄關走廊,雖然較為狹長,但日常使用也足夠了。
深灰色磚牆搭配長虹玻璃,使同一個區域有兩種不同的表達,鏡面元素+白色天花板+淺米黃底地面,讓這裡並不顯得昏暗壓抑。
入戶門正對面是一個通高入牆式玄關櫃,實木材質的櫃體與灰磚和對面的原木護牆板,搭配在一起相得益彰,營造出質樸、自然又略帶粗獷質感的氛圍。
橢圓形穿衣鏡、球形壁燈的加入,為略顯冷硬的背景,增添了幾分溫潤的柔和感。
穿過玄關走廊,視線豁然開朗,淺原木色地板與淺灰色地磚無縫拼接在一起,將客廳和餐廚區分開來。
另外,客廳、餐廳、廚房三個不同功能區域之間,不設任何隔斷連線在一起,大面積純白的背景下,絲毫沒有小戶型的擁堵、侷促之感。
玄關處的灰色磚牆延伸至沙發背後,與長虹玻璃隔斷相連,上面還懸掛著一副彩色抽象裝飾畫,精緻感與豐富的色彩都有了。
方正的沙發很有立體感,對面不設傳統電視牆,只留一面白牆當做投影背景,乾淨利落。
整個空間採用無主燈設計。
除了天花板上的明裝白色筒燈外,臥室、玄關、廚房、餐廳以及沙發旁,都單獨設定了燈具照亮重點區域,夜裡開啟燈後,燈光效果更具層次感。
餐廳在走廊入口對面,藍色圓形小餐桌搭配三張藍色餐椅,款式簡單大方,還與沙發旁的茶几相呼應,為以黑白灰為主調的素雅空間提供一抹亮點,畫龍點睛。
頂部還有一盞造型簡潔的餐燈,細長的線條與餐桌椅的線條呼應,極具呼吸感。
餐廳左側還有個包入室內的小陽臺,沿著窗戶下方設定一張長木板,代替傳統書桌,實用且不佔空間。
右手邊的牆面上還有兩層擱板補充儲物,也方便工作時隨手拿取。
廚房佈置很簡單,一個一字型小櫥櫃搭配右側通高立櫃,滿足儲物需求。
壁燈與餐廳皆為球形,遙相呼應,油煙機則藏在最左側的圓柱體內,十分美觀。
櫥櫃背景牆面選用白色方磚鋪貼,乾淨整潔,因為物品不多,所以並未在牆面上補充收納用品。
水槽是個大單槽形式的臺下盆,方便日常清理。
不需要考慮太大的隱私問題,加上由於房間整體佈局的原因,臥室沒什麼採光,所以將其與客廳之間的非承重隔牆打掉,利用長虹玻璃做隔斷。
玻璃後側安裝米黃色拉簾,睡覺時拉上即可。
床頭上方安裝一排擱板,用來放置少量裝飾品,下方安裝暖色燈帶,方便夜間閱讀。
最內側的衣架呼應著餐桌和餐椅,雖然款式簡單,但足夠滿足屋主日常收納需求。
上方用來收納疊放的衣物,下方是懸掛區。
有別於公共空間的明亮素淡,位於玄關處隱形門的衛生間,延續了此處偏深的背景色調。
墨綠+灰的大背景下,半圓形的鏡子配上燈光渲染,在視覺上產生前後落差,帶來一定的浪漫情調。
淋浴區和如廁區之間,以長虹黑玻璃相隔。
素材及圖片來源:設計師 Andrey Barinov





























 
			 
			 
			 
			 
			 
			 
			 
			 
			 
			 
			 
			 
			 
			