永定府是東西城核心區唯一的限競房,關注者眾多,我們的“永定府交流群”兩個500人微信群都快滿了。專案近期有望上市,今天來更新一下狀態。
永定府位於南二環永定門外,於2017年拍地,至今已經超過4年,當時的定價8.9萬/m²,價格與周邊新盤和次新二手房倒掛嚴重。
位置和價格,都是專案備受的關鍵因素。關於以前的歷史和部分細節,可以點選參照這篇文章《永定府拿到規劃證,核心區唯一的限競房即將亮相》。
先來看看近期專案資訊重點:
- 極大機率轉為共有商品房,80%個人產權的價格是8.9-9.3萬區間,摺合全價11.1-11.6萬區間
- 容積率2.2,4棟樓,4-8層洋房產品,共計391套房源
- 專案預計在12月開盤(搖號)
永定府優點:
- 東西城唯一的限競房(或共有商品房),價格低於周邊新房和次新二手房
- 絕版位置,二環永定門外,雙地鐵,8號線+14號線
- 有小戶型,總價較低,幸運剛需可以上車
永定府缺點:
- 地塊小,小區面積小
- 北面有鐵路經過
- 小學最近的是革新裡小學,東城墊底水平,不過今年被史家收了,史家校長王歡兼任革新裡小學校長,提升預期巨大
接下來我們來看看戶型:
專案一共有高達18種戶型!
主力戶型2+2種,88(89)m²兩居,共287套,面積佔比68.9%,絕對主力戶型。
其次就是132m²戶型,共60套,面積佔比21.4%,兩大主力戶型加起來面積佔比已經90%了,其他的戶型基本都是毛毛雨了。
第一大主力戶型圖 - 88(89)m²兩居
第二大主力戶型-132(133)m²三居戶型
其他非主力戶型圖:
57.5平B1d戶型:
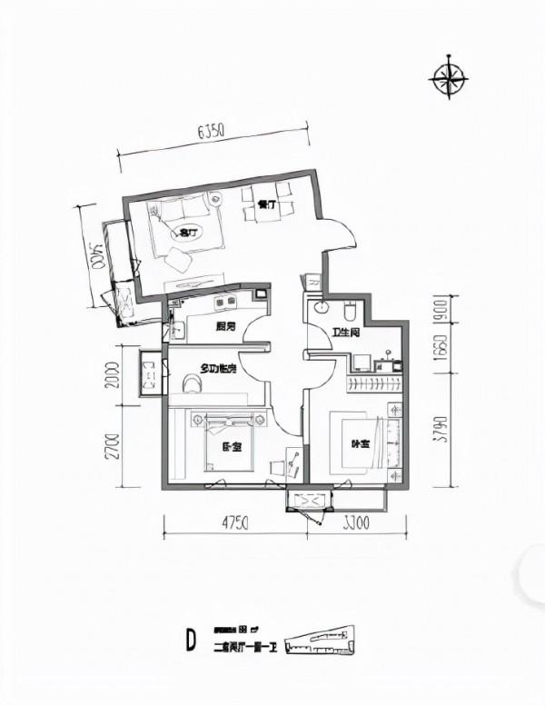
88平D戶型:
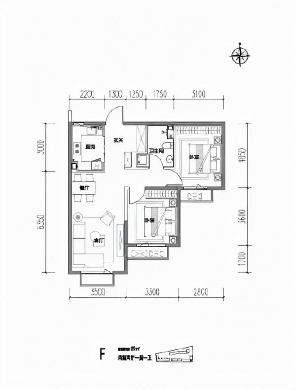
89平F戶型
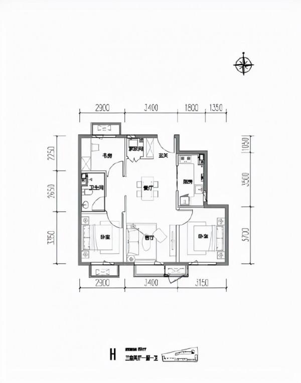
89平H戶型
126平C戶型
139平A2戶型
其他戶型不一一貼了,套數太少意義不大。
這裡要說明一下,永定府轉為共有商品房的傳聞,最新的官方回覆是:在研究,但還沒定。不過既然在研究了,就說明機率很高了,否則沒必要研究。
而且,一旦永定府轉共,那麼天恆學院裡也大機率會轉共,搖號搖起來吧!其實轉共,對於開發商來說倒是簡單了,不然還真不知道該怎麼賣合適。
當然,轉為共有商品房之後,對於買房人來說,價效比下降了嗎?當然。不過好處是更加公平,普通人也能去搖號,也有機會買到了。
參照同為共有商品房的海淀學府壹號院搖號,在房管局的監督下,搖號非常公正。如果想買永定府,除了運氣,剩下的就是儘早準備好購房資金,學府壹號院要求交付款的時間很短,永定府應該也會類似。










 
			 
			 
			 
			 
			 
			 
			 
			 
			 
			 
			 
			 
			 
			 
			 
			 
			