▎設計方案DESIGN PLAN
面積 | 100㎡
戶型 | 2室2廳1廚1衛
風格 | 美式混搭
常住 | 夫妻二人
客戶是一位精緻的杭州阿姨,退休前在城建設計院工作, 十年前的客戶,現在又再次選擇了我們。
房屋需求:
解決收納和美學需求。阿姨特別愛乾淨,雜物都需要有固定的收納位置,對美有要求。
戶型的優勢劣勢:
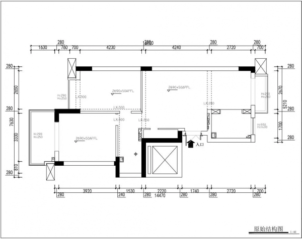
戶型狹長,客廳採光偏弱。結構來說,客廳結構不規則,臥室偏少。不過根據家庭結構來說,正合適兩位老人,適當開闊的空間和能合理地儲物。
▼ 設計亮點 ▼
●新舊傢俱的合理搭配,風格渾然一體,既不突兀,又注入一些年輕的元素。
●書房的嵌入式書桌,與櫃子融為一體,解決儲物,增加空間利用率。
●古典與現代的融合,更有意境和趣味。
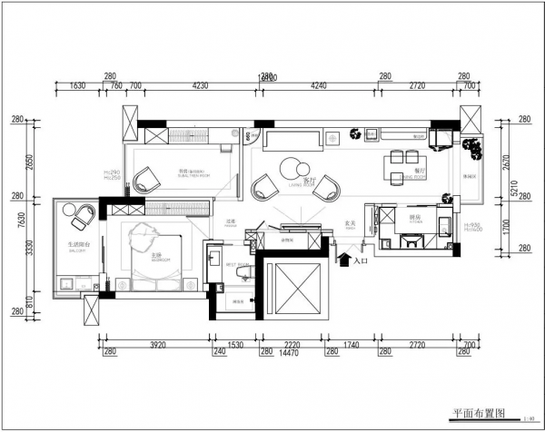
△戶型改造前後
01客廳LIVING ROOM
業主本身是喜歡美式的一些東西,業主之前有一套老傢俱很喜歡,所以裝修新的風格在搭配過程中需要融合這套傢俱。因為常住人口就只有業主夫妻二人,所以客廳選用了小型傢俱,橙綠的撞色,讓空間更加明亮。
02餐廳DINING ROOM
三角酒櫃,餐桌椅,餐邊櫃以及留聲機是原來的舊傢俱,業主很喜歡。所以就照舊保留得下來。因傢俱整體偏暗,將餐廳設定在窗邊,連通客廳,增強空間的光線。白色水晶吊燈,透過光的散射,也讓空間更加明亮。
03陽臺BALCONY
陽臺是從主臥延伸出來的,因為業主特別愛乾淨,雜物都需要有自己的收納位置,所以在陽臺上設定吊櫃和水槽櫃。解決收納和美學需求。
04廚房KITCHEN
根據廚房格局,選用U型櫥櫃佈局,擴大活動空間。形成下方的完美三角動線。琥珀色的金屬移門,隔離廚房油煙,又增加了空間的質感。洗碗機做嵌入式設計,讓空間更加利落整潔。
05主臥BEDROOM
主臥選用了大面積的深湖藍做背景牆,與原木的傢俱撞色,復古又時尚。床正對著做了整面的櫃體,滿足客戶儲物需要。而藍色的床單與背景牆統一,又打破大面積棕色帶來的暗沉。
06書房STUDYROOM
書房作為一個備用空間,也做了整面的牆體,增加儲物空間。書桌做了嵌入式設計,與櫃子融為一體,不佔用空間,又滿足了基本的功能需求。
07衛生間BATHROOM
乾溼分離讓室內更為簡潔舒適,黑色的門框和浴室櫃,改變了純白色的簡約,讓空間瞬間摩登。果然黑白配是時尚的主旋律。
