你好!我是勾勾手設計網,是你微信世界內的個性創意藝術顧問!為懂得我們的客戶提供貼心服務!好設計+好產品≥好生活保證!
老 劉 說
Old Liu said
房子位於福島相馬市。南相馬以“ soma nomaoi”野馬追逐節而聞名,這是福島最大的節日之一ーー或許最好的稱呼是“臨時疏散指定區”。在福島核災難之後,許多人搬出了城市,仍然遠離城市。這個地區有大量的空房子。分別向我們提出裝修要求的業主和他的妻子也別無選擇,只能暫時撤離。放松管制後,他們選擇回到他們居住了幾十年的城市,我們被要求重新裝修他們珍愛的房子。
The premises are located in Soma City, Fukushima. Minamisoma is known for “Soma Nomaoi” wild horse chase festival, one of the biggest festivals Fukushima has to offer—or perhaps best recognized as the “temporary evacuation designated zone”. After the Fukushima nuclear disaster, many moved out of the city and still keep themselves away from the city. There are great quantities of empty houses in the area. The owner and his wife who have separately asked us for a renovation also had no choice but to evacuate temporarily. After deregulation, they chose to go back to the city they had been living in for decades, and we were asked to renovate their cherished home.
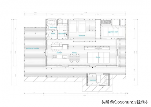
這棟有36年曆史的單層住宅,原本有7個房間,每個15平方米寬,寬敞的廚房,兩個浴室,對70多歲的夫婦來說太大了。儘管考慮到繼承後的管理,收縮房子似乎是最好的主意,但我們決定保留堅固的瓦屋頂,這個屋頂保留了2011年日本東北地方太平洋近海地震,並充分利用了它。
This 36-year-old, one-storied house originally had 7 rooms, each 15 ㎡ wide, extensive kitchen, and two bathrooms, and was too big for a married couple in their 70s. While contraction of the house seemed to be the best idea considering its management after inheritance, we decided to retain the strong tiled roof which survived the 2011 Tohoku earthquake and make full use of it.
老闆一直在有尊嚴地接管這個地區的傳統活動,比如在 soma nomaoi 野馬追逐節上,他扮演了隊長的角色,總是有遊客來來往往。坐在陽臺上,和來訪者交談,這是他們的日常生活。露臺是一個完美的空間,歡迎人們,沒有壓力或需要的遊客脫下他們的鞋子,它允許他們來來去去,只要他們想。
The owner has been taking over the area’s traditional events with dignity, taking the role of the captain in Soma Nomaoi wild horse chase festival for example, and he always had visitors coming and going. Sitting on the terrace, talking to visitors—this was their daily routine. The terrace is a perfect space for welcoming people; there is no stress or need for the visitors to take off their shoes and it allows them to come and go whenever they want.
南相馬幾乎沒有什麼雪,因此,在露臺邊喝茶和抽菸的閒聊,成了整個季節,每天的事情。我們希望保留這個平常但珍貴的景觀,以及瓦片屋頂,為那些回來的人們創造城市的中心,在那裡人們可以互相瞭解和支援。我們決定建造這樣一個房子,我們決定儘量減少生活空間,同時保持屋頂結構不變,並將大部分剩餘區域翻新成一個露臺。
There is hardly any snow in Minamisoma and thus, small talk sessions with tea and tobacco by the terrace were an all-season, everyday thing. We wanted to preserve this usual but precious sight along with the tiled roof, and create the heart of the city for those coming back where people can get to know and support each other. Determined to build such a house, we decided to minimize the living space while keeping the roof structure as it is and renovate most of the remaining area into a terrace.
在 soma nomaoi 野馬追逐節的時候,大約20個人輪流聚集在這個房子周圍。我們建造了主入口用於脫鞋和存放鞋子,但是結構化的房子允許遊客從陽臺的任何一邊進入,這樣他們就不需要穿過入口。我們可以想象節日結束後,這個地區的人們聚集在露臺上,像在自己家裡一樣,互相感謝,享受他們的時光。我們真誠地希望這樣的景象能永存。
At the time of the Soma Nomaoi wild horse chase festival, about 20 people take turns to gather around this house. We have built the main entrance for taking off and storing shoes but structured the house to allow visitors in from any side of the terrace so that they would not need to go through the entrance. We can imagine people of the area gathering around the terrace after the festival, making themselves at home, thanking each other and enjoying their time. We sincerely hope that such sight will last forevermore.
勾勾手設計網|2021年業務佈局
設計服務:
01-潘小君自建房(一站式精裝入住的建築開發商)
02-勾勾手文旅服務(專案策劃+規劃設計+招商運營)
03-夢茹餐飲設計工作室(餐飲加盟連鎖商業賦能)
04-GGH(勾勾手)移動房設計機構(引領全球個性移動房產品體系設計)
團隊揸FIT人介紹

























 
			 
			 
			 
			 
			 
			 
			 
			 
			 
			 
			 
			 
			 
			 
			 
			 
			 
			