隨著時代的不斷髮展,獨居生活也變得越來越流行。只屬於自己一個人的小家,完美契合自己愛好的裝修,這樣的房子處處都可以給予我們生活的美感。今天我們介紹的是一個55歲阿姨的獨居生活。以前年輕的時候阿姨是一名教師,與丈夫離異,現在退休後子女都不在身邊。但是阿姨並沒有認為這樣的情況會影響到自己的生活,她選擇了一個精緻的小公寓,把它裝修成自己最愛的樣子,開啟了自己人生的新篇章。房子面積雖然只有28㎡,但是佈置得十分溫馨,讓人看到了家的溫暖。這樣一個房子裡,上一隻可愛的寵物,上幾盆自己喜歡的鮮花,點點滴滴都是生活最幸福的樣子。在就讓我們一起來看看這個小公寓裝修的閃光之處吧。
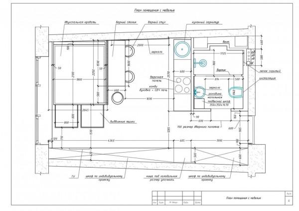
戶型圖
從戶型圖中我們可以發現房子的各個部位都比較迷你,但是設施十分的齊全,完全不影響一個人的生活質量。對於獨居阿姨的經濟條件和日常生活來說十分的方便合適。這套公寓面積雖然只有28㎡,但是空間部位之間的連貫性非常好,部分一體化設計也讓人產生了視覺上的飽和感。
廚房
廚房的設定十分簡單精緻。顏色使用上以白色為主基調,搭配黑色的油煙裝置,十分的高階優雅。阿姨很喜歡這樣潔白純真的顏色,她感覺生活充滿著無限的期待和浪漫。28㎡的小房子中廚房的面積十分的狹小,但是裝置十分的齊全。上下面都是各種櫥櫃,完全有空間來收納廚具用品。做菜區採用大理石板製作,線條細膩流暢,乾淨整潔,讓人感到十分的有質感。在這個簡單的小空間中,阿姨有足夠的時間和精力為自己做一頓美味的早餐。一杯牛奶、一個麵包,或是自己喜歡吃的各種可口飯菜,簡簡單單卻充滿了生活幸福的樣子。
在廚房另一側便是餐廳,二者連貫的設計很是方便生活,也減小了空間面積不足帶來的侷限感。
二者顏色使用也非常搭配,一眼望過去,乾淨整潔,通透舒暢。在米白色的牆壁上還懸掛著一面精緻的大鏡子,掛在這個位置,既美觀又方便。
餐廳
餐廳的佈置不同於一般的圓桌式常規設計,只是一張簡單的高高的白色桌子,充滿現代化,十分清幽簡單。對於一個人的吃飯來說也是十分的方便合適,也為空間帶來了更多的整齊充實感。在吃飯做飯的時候狗狗經常在凳子上陪伴著自己,看著這樣的生活氣氛,阿姨很是滿足。
在白色餐桌旁只有兩把棕色的高座椅子,很有外邊的酒店風格。在這裡採光性也十分好,洗上一盤自己喜歡吃的水果,泡上一杯芳香四溢的花茶,就能夠過上一個美麗的下午時光。生活靜謐悠閒,空氣清新宜人,正是阿姨追求的老年獨居生活景象。
在餐廳的另一側則是臥室設計,兩者有一個木質的架子隔開。架子有不同的很多空格,也可以放上各種質量輕盈的裝飾品來點綴。這樣的設計完美地隔開了兩個空間,帶來了更多的生活氣息,佈置得十分巧妙。白色的櫃子搭配白色的餐桌,顏色協同相映,更加烘托了生活的淳樸。
為了讓白色的餐桌看上去並不單調,阿姨還特地在牆角餐桌側放置上了簡單的藝術照片。黑色的邊框高階優雅,十分具有美感。白色的玻璃瓶中插著剛買回來的鮮花枝條,為整個空間帶來了更多的顏色和生機。每次看到這個花,阿姨便會感覺生活十分幸福。
臥室
臥室的顏色搭配十分的小清新。雖然狹小,但是看上去各項物品都規放十分整齊,透露著不一樣的優雅感。阿姨合理地利用了窗臺的位置,這不僅是綠色植物花盆放置的地方,也是一個獨立的休閒小書桌。
藍色的背景牆十分有自由浪漫感,讓整個空間看上去清新又溫和。白色的枕頭,藍色的床單,沒有過多絢麗的顏色點綴,讓人感覺十分舒服。這樣的暖心設計在日常獨居生活中也是十分受人歡迎的,更大地發揮了小空間的溫馨氣息。
在窗臺的另一側就是阿姨獨立的小休閒區。面積較為寬敞,可以當做一個簡單的小桌子。 平時在這裡放置茶杯、書籍等都十分方便。阿姨便在窗臺一側放上了一張簡單的椅子,隨時都可以在這裡坐上休息一會,或是看書,充實自己的老年生活。 臥室的場景還有一個比較寬敞的空間,平時狗狗就喜歡在這裡蹦蹦蹦跳跳。有它的陪伴,阿姨也會感覺這個28㎡的小房子多了生機和活潑感。
衛生間
衛生間的面積十分狹小,但這並不影響生活質量。設計選擇上顏色深沉內斂,深色系盡顯歐式的浪漫風格。淋浴間佈置得十分的清新,玻璃門與外界完美隔開,透明的裝置更是減小了隱蔽空間帶來的壓抑氣息。牆上的壁龕設計更是完美,平時拿放各種洗浴用品十分的方便。馬桶的位置位於淋浴間外邊的一側,佔地面積不大,很是合適。
在這個28㎡的小房子中洗漱臺的設計就比較簡單了。不同於一般的白色或其他炫麗的顏色設計,這則採用了石頭製作的高臺,看上去十分的高階和有大自然的感覺。牆上定製著一個簡單的支架平板,洗手液等簡單物品放在上面很方便。為了更好地放置各種衛浴用品,設計師還特別在牆上定製了一個簡單的木櫃,劃分成上下不同的四個空間,兩個開啟設計,兩個是抽屜裝置。這樣的分別設定更是十分合理。
現在小戶型房子變得越來越流行,不僅可以幫助我們減緩經濟壓力也可以帶給生活一點溫馨,尤其是受年輕人和獨居老人的歡迎。生活的幸福與一套裝修美觀的房子有很大的聯絡,無論子大小,希望我們都可以找到自己心中熱愛的房子風格,把自己的家裝飾成自己熱愛的模樣。
