其實一個女人也能靠自己的雙手,得到自己想要的東西,只要靠著自己的努力,真的什麼都不是問題。而就是有這麼一位阿姨,今年也有55歲了。而最佩服的是透過自己的努力,在杭州的市中心買了一套58平米的公寓房。雖然說房子不是很大,但是也算是個家,裝修設計也是非常的溫馨。
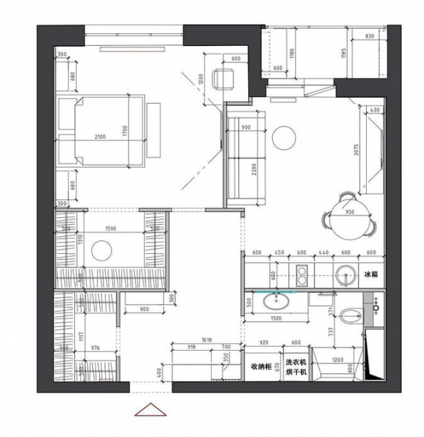
設計圖
重點設計
1、玄關的空間比較大,所以直接做了一個獨立的空間,來放外套和鞋子。
2、衛生間也是乾溼分離的,因為有足夠的空間,衛生間裡面不僅放了洗衣機,還放了一臺烘乾機。邊上也安裝了大型的收納櫃。
3、廚房、餐廳、客廳,這三個功能區全部放在了一個空間內。廚房是一字型開放式的。而在廚房邊上放了一張小圓桌就是餐廳了。客廳就簡單地放了一張沙發,連茶几也沒有放,這樣空間就不會感覺擁擠。
4、家裡唯一的一個陽臺,也被設計成一個功能區,因為也有烘乾機,所以衣服也不需要晾曬。
5、臥室的空間還是非常的寬敞的,而且在臥室中也設計了辦公區,而且在臥室的隔壁,也設計了一個衣帽間,收納空間極其的強大。
玄關
玄關處的牆壁,用了白色豎條紋理做了裝飾,我在牆壁的邊上,也安裝了一個懸掛式的收納櫃,不僅可以收納一些雜物,而且櫃子上方,也能放一些小物件和裝飾品,而在邊上也設計了一個,可收納鞋子的換鞋凳。換鞋凳的上方也安裝了三個小掛鉤,平日可以掛一些衣服,包包等物件。
玄關的邊上有一個獨立的收納空間,裡面專門收納大的外套,和放鞋子用的。而且門上也安裝了一塊全身鏡,每天在出門前都可以照照鏡子,看一下自己衣服的穿搭,好不好看,合不合理。
整個玄關的區域全部鋪設了瓷磚,每天鞋子帶進來的灰塵,在瓷磚上也會非常容易打掃,而進入室內,則是鋪上了地板。
廚房
進入室內就能看到一個開放式的廚房,而廚房也是做了一牆壁的白色櫥櫃,整個廚房也是一個,一字型的設計,水槽,操作檯,電磁灶,烤箱全都有。而最左邊靠牆的櫥櫃內,隱藏著一臺內嵌式的冰箱。而且為了方便打掃衛生,廚房的地面也是直接鋪設白色瓷磚。
餐廳
餐廳就是直接在廚房的空間內,放了一張小圓桌,和4個細腿的餐桌椅,白色的小圓桌搭配著灰黑色的椅子,色彩的搭配有一種時尚的高階感。而在餐桌的上面也設計了一個燈飾,讓整個餐廳,有著自己一塊獨立的區域。
客廳
客廳的電視背景牆,也是直接用的石膏線,做了一個框選,而且在電視背景牆的下面,也設計了一個懸空的收納櫃,讓整塊區域看上去更像客廳一樣,因為後期想要在客廳安裝一個投影儀,所以現在就暫時,掛上一副掛畫在上面。
客廳的沙發也是比較大的,平時一個人躺在上面睡覺也可以,而且客廳也沒有放茶几,就只放了一張細腿的小圓桌子,平日就是放放茶杯,和書籍之類的小物件。
廚房客廳餐廳都在一個空間內,而唯一的一扇窗,就直接照亮了整個空間,可以從圖片上看出,整個室內的採光還是非常好的。
臥室
整個臥室的設計溫馨又大氣,床頭牆壁也被用石膏線,做了一個隔斷的設計。窗戶外的光灑進臥室,照亮了整個臥室,清新又舒適。
而且兩邊的床頭櫃,也是做的懸空的收納櫃。可以收納物品,上面也可以放手機或雜物。
臥室的床尾也放了一張床尾凳,每天早上要穿的衣服都可以放在上面,這樣早上起床的速度,會變得很快。
這是臥室的一個衣櫃,這個衣櫃是被設計成內嵌式的,不會佔用臥室的任何一點空間。上面放一些過季的衣服,下面則是放一些,平日經常可以穿到的衣服。
床對面的牆壁上也掛了一臺電視機,每天都可以躺在床上看電視,非常的愜意。而在邊上的角落裡,也設計出一塊辦公區域,放了電腦和檯燈,上面還做了置物架。平日上班兼職玩遊戲都是在這裡進行的。
衛生間
衛生間洗漱臺的櫃子,和對面的收納櫃全部用的是墨綠色,感覺整個衛生間都綠意盎然,有一股小清新的感覺。
而設計出的櫃子內,也被放了一臺洗衣機,和一臺烘乾機。洗完的衣服,直接可以扔在烘乾機裡面,消毒烘乾。不用晾曬出來就可以穿了,非常的方便。
整個馬桶後面是一堵收納牆,馬桶的水箱也被內嵌在收納櫃裡面,做成了隱藏式的,而且還是一個懸掛式的馬桶。右邊也安裝了噴水龍頭,讓馬桶更加方便打掃衛生。而馬桶的左邊也做了一個,開放式的收納設計,裡面也被放了一些小東西。而上面則是一個大的收納櫃,可以放一些日常的用品。牆壁上也精心安裝了電熱毛巾架。
淋浴間是用的玻璃移門做的隔斷,也讓整個衛生間做到了乾溼分離的設計。
陽臺
陽臺也做了一個可以收納的小卡座,上面也放著軟軟的墊子,這就變成了平日的一個休閒區。而陽臺的另一邊則是做了一個收納櫃,可以做一些物品的儲存,上面也能擺放一些綠植。
