雲雀小屋(Skylark Cabin)坐落在 Ben Ohau 山脈山腳下草原的草叢中。
客戶要求使用堅實的材料建造一個簡單的隱居地:
- 放鬆和隱居
- 觀看陽光和陰影與 Ben Ohau 山脈一起跳舞
- 觀看雲雀在草叢上嬉戲、盤旋和跳舞
- 看星星和夜空
- 具有吸引力的定製方案,可作為潛在的豪華度假地出租
- 一個真正沉浸在風景中,專注於輕鬆放鬆的地方
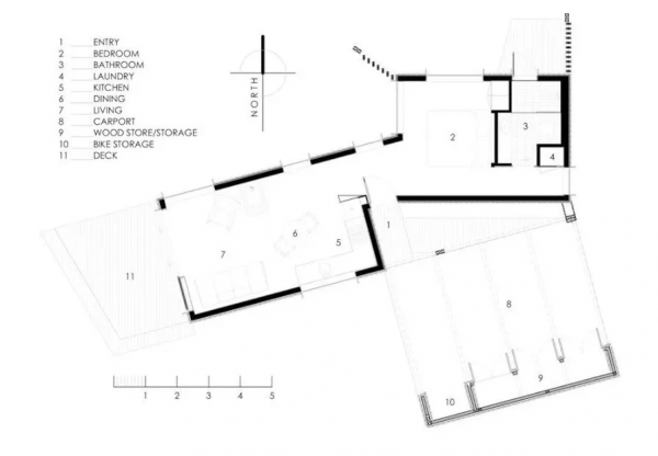
底層形式是兩個偏移的開放式空間。其中一間包含臥室和浴室,其位置可以讓冬季和夏季的早晨陽光透過。這些空間面向黑山(The Black Hills )和 Backbone山峰。另一個是廚房、入口和起居區,可以更近地看到 Ben Ohau 山脈景觀。
偏移的角度由繪製特定活動的檢視所決定;躺在床上,洗碗,洗澡,坐著,站著。建築摺疊的形式也體現了當地雲雀獨特的空中表演,它們的飛行角度、精準而有目的的特技表演。
入口門廊連線到車棚,車棚是一系列橘紅色的結構框架,從小屋屋頂向下延伸,並錨定在隱藏的儲存體量和腳踏車架的另一端。 顏色是特定客戶要求的,用來強調主要的結構元素。
▼小屋夜景
▼建築平面圖
專案資訊
建築師:Barry Connor Design
面積:50平方米
年份:2020
照片:Dennis Radermacher
地點:Twizel,紐西蘭
文字:建築師 | 翻譯:木屋世界
“木屋世界”與您一起領略世界木屋風采,感受環球美景佳作。
我們是木結構與裝配式整合建築及相關行業資訊平臺。相關木屋設計建造業務或平臺合作請聯絡:13911038233,[email protected]
*圖片文字源於網路,“木屋世界”採編,如有版權請聯絡我們更改。
更多精彩請關注“木屋世界”,支援我們請不吝點贊
