這項任務是為一個年輕的家庭設計一個家,在那裡他們可以娛樂和享受彼此的陪伴,同時為孩子和成年人提供空間。一個簡單的,低維護的房子,有足夠的空間,更重要的是:光線。在暴露於氣候中的建築表面使用金屬覆層,在覆蓋區域(如露臺)首選溫暖的當地木材。在室內,廚房和家庭活動室是主要的空間,它們必須要有充足的光線,並與房子的其他部分保持良好的連通。
主要的挑戰是太陽方位。該景點擁有絕佳的南面景觀,因此陽光和景觀不會齊頭並進。這就是為什麼我們想出了這樣一個主意:用朝南的大落地窗開啟房子,框住風景,透過天頂方案接收來自北方的陽光。因此,決定從家庭房間引入光線,這是一個開放的第二層,允許光線到達樓下更多的公共空間,如起居室和餐廳。我們還利用傾斜屋頂的幾何形狀和結構來開啟廚房的天花板,在傳統窗戶和天花板窗戶之間形成視覺連續性。這一特點給廚房帶來了意想不到的寬敞,這是一個驚喜。
使用最高質量的產品來確保隔熱外殼的完整性。牆壁和屋頂上的保溫的纖維素,最小厚度為 8 英寸,結合具有最小熱傳遞值的門窗,保證了建築物的隔熱和正確的通風,這在極端地區(如Aysén)至關重要。值得注意的是,朝南的房子能夠在不犧牲景觀的情況下實現如此高的熱增益和光增益,同時完全滿足任務的前提條件,這是非常了不起的。
▼寬敞而明亮的廚房
▼一層衛生間
▼二層衛生間
▼場地平面圖
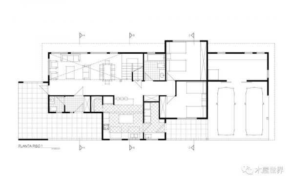
▼一層平面圖
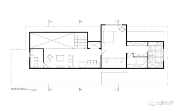
▼二層平面圖
▼立面圖
▼軸側圖
▼剖面圖
▼細部工藝圖
專案資訊
建築師:Staudt Arquitectura
面積:280 平方米
年份:2020
照片:Justin Mullet
製造商:AutoDesk、Sierra Pacific Windows、ASC Building Products、MK、Trimble、Velux
首席建築師:Martina Staudt
設計團隊:Pedro Staudt, José Silva
地點:Coyhaique,智利
文字:建築師 | 翻譯:木屋世界
“木屋世界”與您一起
領略世界木屋風采,感受環球美景佳作。
我們是木結構與裝配式整合建築及相關行業資訊平臺。
相關木屋設計建造業務或平臺合作請聯絡:
13911038233,[email protected]
*圖片文字源於網路,“木屋世界”採編,如有版權請聯絡我們更改。
更多精彩請關注“木屋世界”,支援我們請不吝點贊
