“世界上並不缺少美,而是缺少發現美的眼睛。”這是法國著名雕塑家羅丹的一句名言,我想大家都不陌生。對於這句話的理解,我想能夠無限拓寬我們對於空間的理解,常有人對不加修飾的室內空間戲稱為敘利亞風,這當中或許更多的表達了經濟實力上的缺陷和無奈,當然也是一種自嘲方式。
不加修飾的處理,總是以表現材質本身自帶的肌理感來表達空間,粗野主義便是其中的代表。而破舊不堪的舊房子或許跟粗野主義本身沒有太大的關係,只是表現出來的形式有所類似罷了。試想粗野主義有其自帶的空間美感,那如果是破舊不堪的舊房子呢?它有其自身的價值所在嗎?如果將其放在一個真正的開發商角度,或許它的價值低到可以忽略。畢竟它面對的是大多數的市場消費者,這種對於空間美感的理解本身就被平均化了。而當它作為一個私人住宅空間去思考時,或許就能碰到真正欣賞並理解其美感的主人了。今天小編就要給大家介紹一個由破舊的體育大樓改造而成的私人住宅,看看它在新舊之間碰撞出了什麼樣的火花。
該專案位於荷蘭的鹿特丹,原有建築是一個廢棄的戰前體育大樓,自從被廢棄後,就從來沒有被修整過。原本的功能屬性令其本身具有自身的空間屬性,尤其是其連續的大跨度空間。這個屬性作為一個廢棄多年的建築來說,是最為突出的空間特點了。這對於常見的私人住宅來說,是很特別的空間尺度。因此對其的改造,便著重關注在如何保留這種連續空間的可能。
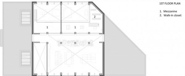
基於保留連續空間的設計策略,建築在拆除了天花和一些牆體後,便沒有進行更多的拆除了。留下一個大跨度的連續空間,而在此基礎上,便是透過置入不同的功能區來進行劃分。並且在劃分的過程中,並未將分隔的單元直接到頂,而是在正常的尺度下,從上方封住形成內部空間。
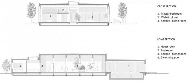
新置入的獨立空間單元與拆除後的裸露混凝土屋頂及部分牆體形成了鮮明的對比,而原先的體育大樓是一個連續的大空間,對於住宅來說,勢必會影響到採光。因此在屋頂處兩個採光天井的置入,可以很好地解決空間中部採光不足的問題。而將其他重要功能空間都往建築的四周佈置,並將原有的側高窗改成了大面積的玻璃窗及落地玻璃窗。
生活公共空間利用了連續的大空間,天花並未做過多的處理,而是將客廳、餐廳和廚房置入於此,在同一個軸向上有序展開。與客廳相連的是一個封閉的玻璃盒子,內部是一個室內游泳池。
除了生活公共區,內部還有四間臥室,一間客房與辦公室位於建築入口一側,其他三間臥室都利用了原有的建築高度,做成了loft形式的空間,底部是臥室和衛生間,夾層則是大型開放式衣帽間。新建的木飾面元素及透明玻璃,與代表過去的舊有混凝土和磚牆,形成了強烈的對比關係。兩者相互融合,形成有趣的對話。
像這樣的改造住宅,既保留了舊有的破舊結構體系,又加入了現代元素,打造了一個舒適的私人住宅居家空間。你喜歡這樣的住宅嗎?在評論區給我留言,告訴我你最真實的想法!
專案資訊
Architect: MASA architects
    City: Rotterdam, NL
    Completion Year: 2020
Partner in charge: Hiroki Matsuura, René Sangers
    Landscape design: MADMA urbanism+landscape
    Plot area: 1340㎡
    Footprint: 605㎡
    Photo credits: Tim Van de Velde



























































 
			 
			 
			 
			 
			 
			 
			 
			 
			 
			 
			 
			 
			 
			 
			 
			 
			 
			