1、【產品資訊】
在售樓棟1、2、3、4、5號樓
產品:上下疊別墅(下疊有樣板間)
房本面積:270、310平
得房率:150%-200%
使用面積:450-510平
精裝庭院:約50-196㎡
上疊價格:1150萬起
下疊價格:1250萬起
外立面通體幹掛石材,全套房設計4-5間
面寬:約8.1米巨幕面寬,13米進深
總層數:一層3.3米、二層3.1米、三層3.3米、四層3.1米、B1層4.5米、B2層3.6米、閣樓層0.4-4.5米
交房時間:2024年10月
物業費:4.88元/平米/月
總套數共:460套(上下疊各230套)
【整盤樓棟圖】(見下圖)
【專案總平圖】
【專案樓棟圖】
2、【專案基本資訊】
產權性質:70年商品房
樓盤名稱:珠江天樾書院
開發商:廣東珠江投資開發有限公司
總佔地面積:126.5萬㎡
五期佔地面積:8.5萬㎡
建築面積:8.5萬㎡
綠 化 率:40%
容積率:1.01
得房率:150%-200%
戶型面積:270、310㎡
銷售單價:4萬元/㎡左右
首付比例:首套40%二套80%
交房標準:毛坯
梯戶:私家電梯
贈送:兩個產權車位
3、【專案核心賣點】
【全北京最強產品力別墅】
十大產品力:
①現代中式風格國際大師設計
②全石材立面
③超大樓間距23-33米
④恭王府造園,五進式歸家,精緻園林夜光跑道
⑤獨門獨戶獨院
⑥私家電梯
⑦超大精裝庭院
⑧精裝門頭體系
⑨使用面積高達450-510㎡
⑩十二大科技體系精工,210項工藝細節
【全北京最舒適的別墅】
十大舒適級:
①8.1米超大面寬
②單層面積超百平
③戶型方正
④層高最高4.5米
⑤4-5居全套房設計
⑥超大主臥套房
⑦超寬三車位
⑧每層獨立水吧檯
⑨地下面積地上化採光
⑩功能分割槽適合全生命週期三代同堂互不打擾
4、【專案生活配套】
️公園環繞:溫榆河溼地景觀帶,紅楓湖高爾夫球場,未來城濱水公園、濱河森林公園、溫榆河濱水公園等,愜享自然鮮氧
【社群配套】:北大培文雙語幼兒園、龍庭會所、五月花街社群醫療、籃球場、網球場、國際學校用地啟動中
商業:毗鄰中關村國際商城、龍德廣場兩大醇熟商圈。周邊購物類配套包括龍德紫金廣場、永旺國際商城購物中心,中關村合生匯以及永輝、物美等大型商超。商超(合生匯/永旺超市)
教育:(王府國際學校/北師大亞太實驗學校/北大培文幼兒園)
醫療:(北大國際/清華長庚/昌平積水潭回龍觀分院/王府中西醫醫院/京都兒童醫院)
交通:四橫四縱多軌道暢達全城:北五環、定泗路(未來拓寬)、北清路、京承高速、立湯路、京藏高速等多條城市快速路暢達熱點商圈。
多軌道:地鐵5號線(未來北延)、17號線(未來科技城站);8號線(南延施工中)、13號線、昌平線(未來南延)
5、【專案區點陣圖】
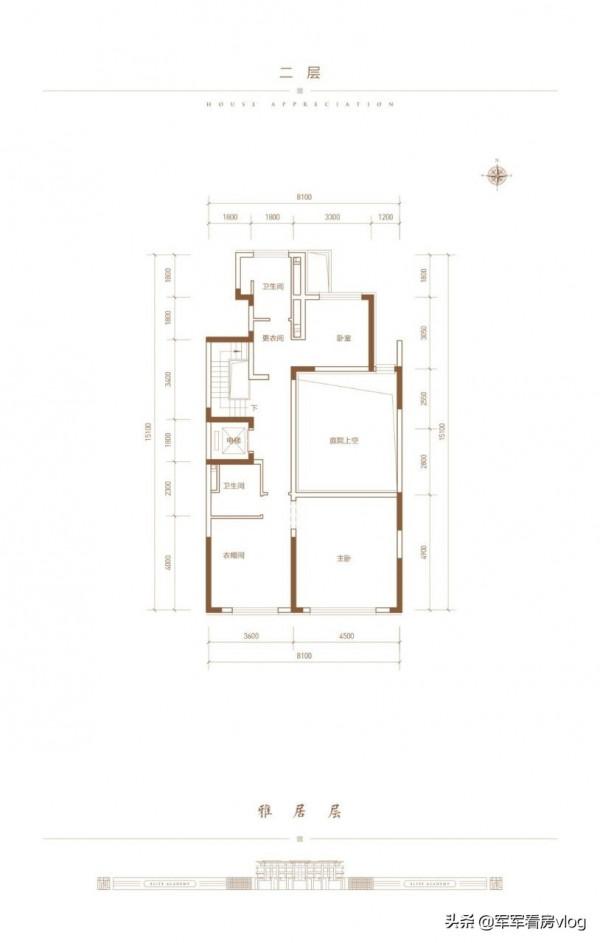
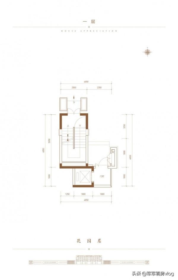
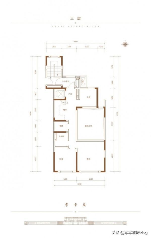
6、【產品戶型圖】
天鏡上疊中戶 戶型品鑑:
樾瀾 下疊中戶 戶型品鑑:
7、【產品樣板間】
8、【專案效果圖】
9、【專案實景圖】
