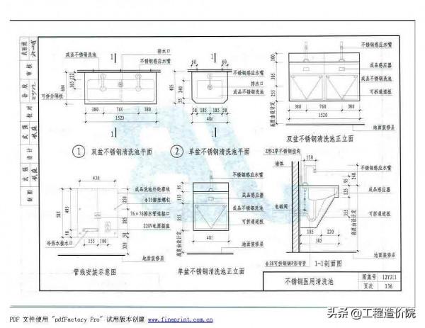
12YJ11 衛生、洗滌設施
sponsored links
12YJ11 衛生、洗滌設施
            分類: 家居        
        
            時間: 2021-09-17        
	相關文章
 
			
						
					埃博拉捲土重來!750萬人的國家,全國僅一臺呼吸機
					
						截止2021年2月25日,遠在非洲的獅子山累計新冠確診病例3139例,累計死亡病例77例.從資料上看,似乎遠沒有美國那樣嚴重.但在這個750萬人的非洲小國已經算是一個非常嚴峻的挑戰了.這個擁有750萬 ...					
				
			 
			
						
					那些沒有離開農村的留守老人們 農村留守老人現狀調查:農作負擔重心理孤單多
					
						來源:法治日報--法制網 ● 為了維持基本生活,農村老年人在業比例較高,仍然是絕大多數農作的主力.與子女外出務工前相比,他們農作的負擔加重了,但獲得的報酬並沒有高多少 ● 農村留守老人精神空虛.孤獨感 ...					
				
			
					10多年未修的“旅遊飯店星級標準”,再次修訂已勢在必行?
					
						<旅遊飯店星級的劃分與評定>(以下簡稱"星級標準")2010年修訂版推出以來,其行業的指導性得到進一步加強,此後10多年都再未修訂. 然而,2012年之後市場環境變化. ...					
				
			 
			
						
					泛美衛生組織:美洲疫情可能持續至2022年
					
						新華社北京9月23日電 世界衛生組織下屬的泛美衛生組織22日釋出報告說,儘管美洲地區新冠死亡病例相比1月峰值有所回落,這一地區的新冠疫情仍可能持續至2022年. 美洲地區疫情比全球其他地區更為嚴重,迄 ...					
				
			
					全球研究顯示出洗滌流程除新冠病毒的有效性1
					
						全球研究顯示出洗滌流程除新冠病毒的有效性 新冠病毒在全球範圍內的長時間爆發,使得布草.制服洗滌服務行業的各個部門都需要有關病毒在不同表面的穩定性和生存能力的資訊以及它在洗滌過程中的生存能力. 美國紡織 ...					
				
			 
			
						
					太陽光曬出來的衣服真的好?想要健康衛生還是買臺洗烘一體機吧
					
						在生活中,不少人總會趁著天氣好的時候將衣物被褥晾曬到戶外,想透過陽光照射的方式去除掉衣物中的細菌,起到"消毒"的作用.但實際上這種做法從科學角度來看並不實用,雖然理論上紫外線能夠破 ...					
				
			 
			
						
					上海發現一戶人家,門口從不亂堆鞋子!瞧人家這佈置,乾淨又衛生
					
						鞋子你還全部擺放在家門前嗎?哪怕是不進屋,也能夠聞到一股鞋臭味兒,難聞又噁心.對於大多數家庭來說,鞋櫃真心不夠用,不得不利用玄關這處空區域來增加鞋子的擺放. 不過這樣對美觀和衛生,就有一定的影響.而且 ...					
				
			 
			
						
					如果你是個愛乾淨的人,新房裝修別去做衛生死角,家務活少一半
					
						#打卡美好生活# 每個人都有自己的家,不管是新買的房子,還是老房子也好,都會經過裝修這一個過程,可能這一次裝修就要住個半輩子.所以在裝修這一件事上,對於我們普通老百姓還是非常重要的.特別是對於什麼都不 ...					
				
			 
			
						
					裝修工頭忠告:衛生間裝修,不想留下衛生死角,做好這幾個細節
					
						如果問,我們家裡最難搞衛生的區域是哪裡?那毫無疑問就是衛生間了.很多人在清潔和打掃衛生間時,都會遇到這樣的狀況:五金表面都是水垢鏽跡,洗手檯的檯面都是積水,衛浴潔具與牆(地)面的接縫圍著一圈發黃的膠水 ...					
				
			 
			
						
					氫燃料發電設施和鋰離子電池儲能系統哪個更具成本效益?
					
						[高質量能源內容,點選右上角加'關注'] 根據麻省理工學院的一項研究,氫燃料發電設施將與鋰離子電池儲能系統在季節性儲能應用方面展開市場競爭,其成本競爭力將取決於它們可能取代的天然氣發電廠熱效率. 在加 ...					
				
			 
			
						
					《首都市民衛生健康公約》——講究衛生
					
						講究衛生--堅持刷牙洗手,定期清潔居室 釋義:養成個人衛生習慣,早晚刷牙,飯後漱口,定期檢查牙齒,不共用毛巾和洗漱用品.注意手衛生,飯前便後,外出回家後要立即洗手.洗手要用流動水,使用肥皂或洗手液充分 ...					
				
			 
			
						
					你的房子“會呼吸”嗎,不需要安裝採暖和製冷設施,就能實現恆溫恆溼,安小居帶你走進被動式超低能耗住宅
					
						你的房子"會呼吸"嗎,不僅不需要安裝採暖和製冷設施,就能實現恆溫恆溼,而且能耗僅為普通建築的三分之一."安小居"帶你走進被動式超低能耗住宅帶來的綠色生活. (一 ...					
				
			 
			
						
					自然通風設施、機械加壓送風設施有哪些要求?
					
						本文引自15K606<建築防煙排煙系統技術標準圖示(最新修訂版)>. 自然通風設施: 3.2.1 採用自然通風方式的封閉樓梯間.防煙樓梯間,應在最高部位設定面積不小於1.0m²的可開啟外窗 ...					
				
			 
			
						
					在空間站“裝修”衛生區,一共分幾步?
					
						雖然住著"三室一衛"的天上"豪宅" 但航天員依然要靠自己的雙手 創造美好生活 來看看他們 是怎麼DIY"裝修"衛生區的 來源:新華社					
				
			 
			
						
					中國建材總院完成空間高能宇宙輻射探測設施專案第一階段研製工作
					
						▲HERD專案組成員合照 9月8日,中國建材總院所屬特種玻璃纖維與光電功能材料研究院(以下簡稱玻纖院)完成了HERD專案中所承擔的第一階段研製工作,研製的相關材料及元件成功交付使用者用於樣機考核,經一 ...					
				
			 
			
						
					2022年衛生資格考試報名流程
					
						2022年衛生資格考試報名需要做哪些準備呢?你知道嗎?大家一起來看看吧! 2022衛生資格考試報名預計在12月份-1月份左右.一般分為網上報名和現場稽核. 一.網上報名 考生在中國衛生人才網上檢視報名 ...					
				
			 
			
						
					在購房時,靠近這4個設施的房子最好避開,會影響居民的正常生活
					
						有人會說,有房子住就不錯了,幹嘛還挑三揀四呢,其實這都是買不起房子的人說的氣話.試問,誰願意自己辛辛苦苦掙的錢最後買一個居住不舒適的房子呢?更何況這個房子大概自己還可能會居住一輩子.在買房時,房子的位 ...					
				
			 
			
						
					全新升級依途房車,3.0T動力航空鋁車身,設施更人性化最多住5口
					
						Hello,大家好~ 提起新星房車,想必大家首先想到的它家特有的全鋁車身,前不久的依途T600自上市以來就得到了很好的反響,不過隨著國六底盤的到來,這次新星房車也將依途T600做了一次大的升級改造,下 ...					
				
			 
			
						














































































































































