一個三代同堂的大家庭,不同的年齡層次,對應著不同的生活訴求。老人的環境要溫馨安逸,生活動線要簡單高效;屋主夫妻倆要有衣帽間,獨立衛生間可是少不了;孩子也需要屬於自己的小天地,學習翫耍兩相宜;那該如何設計呢?不妨參考一下這套155㎡四房兩廳的裝修案例。
    原始結構圖
● 業主訴求
    1、在進門處增加玄關儲物櫃,讓玄關空間利用率更高;
    2、打造中式廚房和西式廚房,滿足不同的烹飪需求;
    3、合理地利用衛生間的空間,對衛生間進行乾溼分離;
    4、為主臥增加一個衣帽間,打造主臥+衣帽間+主衛的組合空間。
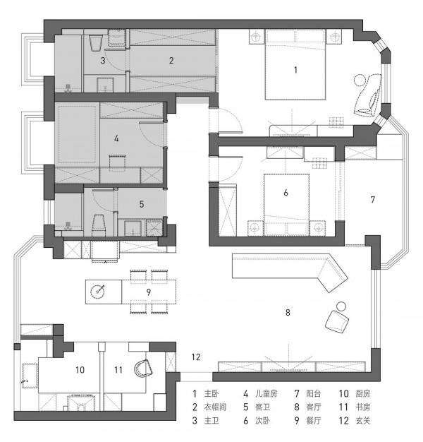
    裝修佈置圖
● 設計說明
    1、減薄牆壁,打造嵌入式玄關儲物櫃,把大面積的完整牆面留給電視背景牆。
    2、重新分隔封閉式廚房,分成活動室和多功能房,利用餐廳空間打造西廚餐廳;
    3、敲除洗手間牆面,利用過道空間,將洗衣機乾衣機和浴室櫃檯盆設定在這裡;
    4、重構與主臥相連的兩個空間的劃分,讓衣帽間和主衛的面積位置更加合理。
    玄關設計
入戶門緊挨電視背景牆,這給玄關儲物設定了難題。還好在入戶門的另一側有一堵窄牆,為玄關儲物櫃提供了寶貴的空間。設計了一組嵌入式儲物鞋櫃,以保證玄關日常收納。
    客廳設計
客餐廳是空間設計核心,客廳與開放式餐廚空間相連,成為了一體化的超大空間。無主燈的設計讓客廳更為整潔大氣。取消了茶几的佈置,讓空間更顯寬敞。
取消複雜電視牆設計,直接定製電視櫃,櫃門採用純白門板+玻璃門板的組合,木質的溫和玻璃的通透,是不同材質在同一櫃體上的“偶遇”。
擔心純白牆面太過素淨,而一段原木飾面板則調和這種單調,透過主臥陽臺的隱形門也藏匿其中。四人位沙發,搭配一旁的棕色單人沙發椅,勝任家庭小聚會不在話下。
    餐廳設計
餐廳是一個家非常重要的組成部分,核心的功能是就餐和餐廳收納。餐廳的完整牆面作為餐邊儲物櫃的空間,地櫃吊櫃形成的檯面空間,可以容納小廚電,輕鬆變身水吧檯。而高櫃除了儲物也能容納冰箱和嵌入式電器。
中島+餐桌的組合形式,可以承擔一部分西廚的功能。餐桌實木桌面呼應了全屋風格,皮革餐椅質感很棒和整體很搭。餐廳牆面採用原木飾面板裝飾,同時藏著通往封中式廚房、以及通往活動室的隱形門
    廚房設計
中西雙廚的設計,兼顧了重油煙烹飪和開放式餐廚空間的優勢,地面和地櫃採用深色地磚和仿巖板材質,更顯質感;檯面牆壁和吊櫃整體純白,減少視覺壓力,同時讓層次感更明朗。
    客衛設計
乾溼分離的客衛,利用原本的狹長空間打造了洗手檯盆,同時定製儲物高櫃嵌入洗衣機和烘乾機,整潔統一。衛生間的淋浴區地磚採用了拉槽工藝,增加地面防滑性的同時,凹槽也可以加速積水的排出。
    主臥設計
屋主喜愛有質感的實木傢俱,深色實木傢俱和深色皮革床頭顯得非常搭配,凸顯了床品的潔淨。為了減少深色傢俱的沉悶感,在軟裝上花了心思,用少量金屬裝飾進行調和,金色不庸俗,深色不深沉。
    衣帽間設計
主臥與主衛之間有一個小空間,,將多餘的隔牆去除,打造成為衣帽間。衣帽間與主臥透過長虹玻璃移門作為隔斷,壓花玻璃的形式美觀,也能最大程度上讓主臥擁有更好的採光。
    次臥設計
次臥的配色和主臥不同,灰色原木衣櫃和床頭背板,搭配藍灰色窗簾,更具有年輕化的氣息。在有吸頂燈的同時,輔助光源不可或缺,吊燈和提供間接光源的壁燈可以作為小夜燈,也渲染了臥室的氛圍感。
    書房設計
書房隱藏在餐廳邊上,要作為書房和娛樂使用,L型的定製書桌最大程度上保證空間利用率。
以上就是這期案例分享,155㎡簡約不花哨,不僅空間寬敞大氣,連家務活也能少一半。
























 
			 
			 
			 
			 
			 
			 
			 
			 
			 
			 
			 
			 
			 
			 
			 
			 
			 
			 
			