入市兩年的禹洲朗廷灣,作為通州區地區的第一批限競房,去化率僅達30%。
青地產透過北京市住建委官網查詢了禹洲朗廷灣的網籤情況。專案分兩期開盤,去年一月一期供房220套,九月二期供房352套,累計供房572套;截至到8月23號,專案一期網籤住房149套,二期網籤32套,累計網籤181套,整體去化率31.6%。
在目前限競房買賣臨近尾聲、購房者競相上車的時期,禹洲朗廷灣受副中心飛速發展光環籠罩,但依然去化緩慢,這樣的結果實在令人詫異。

    2019年春節前夕,北京土拍幾宗熱門地塊吸引了數十家房產公司的競拍,彼時已是城市副中心的通州多年未有過土地出售,所以抓住時機落子通州便成為眾多開發商的土拍重點目標。
南派地產首次進京 紮根心切水土不服
首次進京的禹洲聯合金茂擊退萬科中駿,以18.3億元拿下通州永順限競房用地,成為了當年土拍的重頭戲之一。對初來乍到的禹洲來說,拿地大捷似乎為首次進京開了個好頭。
但好景不長,剛到手的地塊還沒捂熱,聯合拿地的金茂就以無法達到集團“雙15%”的利潤考核標準為由,退出該地塊的開發轉戰臺湖,還未完全熟悉新環境的禹洲只能全權接盤,將專案定名禹洲朗廷灣。
似乎同很多南方開發商一樣,首次進京趕考的閩系開發商禹洲遇到的第一個難題,便是要經歷一段初到北方的水土不服。
專案2020年初入市便經歷疫情時代,銷售困難。下半年形勢稍有緩和,可前來專案瞭解的購房者發現,專案所在區域交通、商業資源匱乏,甚至在西北方向直線距離500m處還坐落著通州最大的殯儀館。雖然銷售一直強調殯儀館已經規劃選址搬遷,但臨近“人生終點站”的這一屬性,無疑成為了禹洲朗廷灣去化的又一大障礙。
產品不盡完美 配套硬傷不少
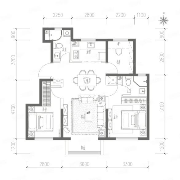
禹洲朗廷灣整體為7-11層的小高層、洋房,14棟住宅樓共572戶,全三居戶型。主力戶型為89㎡的三室兩廳兩衛,佔10棟樓近400戶,其餘樓棟分佈著82㎡、130㎡和極少量99㎡戶型。容積率1.6,在限競房中較為少見,得房率也較高,各戶型均在80%以上。
單價5.25萬/㎡,總價420 -715萬,針對剛需客群,預計2022年11月底交房,目前已經處於封頂階段。
專案只做了89㎡戶型一個樣板間,那就從主力戶型談起。
89平三室兩廳兩衛

    從戶型圖來看,89㎡主力戶型是現在市面上最流行的三面寬戶型,南北通透,整體看起來舒適寬敞。
不過,在實地考察樣板間的過程中也發現了一些不足之處。

    部分戶型南向次臥牆體凹陷進來的部分隔壁為電梯井,日常生活難免受到電梯上下樓產生的噪音響。
在價格方面,89㎡的最貴戶型是位於小區中間位置的5號樓次頂層,總價490萬以上,其餘樓棟低層數有不同折扣,價格在436-490萬不等。
82㎡三室兩廳一衛

    相比70㎡的兩居和90㎡的三居這類市面上典型的剛需戶型,82㎡的三居,對剛需家庭來講似乎更加划算。最高價格次頂層433萬/套,其餘層數每套在400-430萬之間不等。不過兩面寬和不到7㎡的北次臥,又成為了購房者猶豫的理由。
99㎡三室兩廳兩衛

    99㎡的戶型為東南朝向的轉角戶型,11.9m大面寬,可以實現臥室客廳三面觀河。目前主要剩2、3、4層的戶型,由於層數低價格優惠,總價與89㎡戶型價格相近,如果不是十分在意朝向,那入手這個戶型價格非常划算。
130㎡三室兩廳兩衛

    130㎡的面積做成三居戶型本身並沒有什麼問題,但是在禹洲朗廷灣定位剛需及通州剛需客群為主的條件下,大戶型去化較難。客廳大面寬6.7m,價格715萬左右。
規劃遠景光明 現實前途未卜
從禹洲朗廷灣未來的區域規劃看,副中心加持,區域站位高度可圈可點,具備一定發展潛力。

    專案距運河商務區2公里左右,在商業方面,除自持的五棟寫字樓外,未來可以依靠運河CBD大型商圈滿足需求,如遠洋樂堤港、大融城等,預計明年開業。

    在交通方面,專案南側為朝陽北路輔路,由此開車進入市內,在京通高速不堵車情況下,半小時可達國貿。專案距首都國際機場不到17公里,開車25分鐘左右即可到達。專案附近規劃了M101、M102兩條地鐵線,其中M101通往通州政府方向,屆時可抵達通州交通樞紐站;M102為通州區環線,在專案附近300m左右規劃了地鐵西潞苑北站,屆時軌道開通可透過M102換乘M101、6號線、7號線、8通線、平谷線、機場線,軌道預計“十四五”末開通,屆時專案所在區域將初步形成“一環六橫四縱”的軌道交通格局,大大方便出行。

    醫療上,目前東側2公里內有友誼醫院通州院區,南側4.6公里為潞河醫院,後期區域規劃將安貞醫院總院和北京兒研所遷至宋莊,距專案3.7公里左右,屆時專案五公里範圍內將有三所大型三甲醫院。
禹洲朗廷灣距東側小中河100m左右,河流沿岸有劉莊公園等配套休閒,生態環境優秀。
成熟的運河CBD、四通八達的軌道交通網路,通利福尼亞的優秀遠景規劃實在令人嚮往,但就現在來說,一切規劃在未落地前還只是心中的美好願景。目前距禹洲朗廷灣最近的地鐵站為6號線通州北關站,距離2.5公里左右。專案附近有824路、通70等公交透過執行,乘坐公交車需三、四站才可抵達附近地鐵站,目前公共交通出行並不方便。
文/崔心悅
編輯/崔心悅








 
			 
			 
			 
			 
			 
			 
			 
			 
			 
			 
			 
			 
			 
			 
			 
			