Louveira Apartment是位於聖保羅的一座公寓,所在的大樓建於1946年,雖然歷史悠久,但是屋外不遠處便是Pacaembu山谷,且空間採光良好,這讓Ana Sawaia Arquitetura此次的改造擁有了很好的基礎。
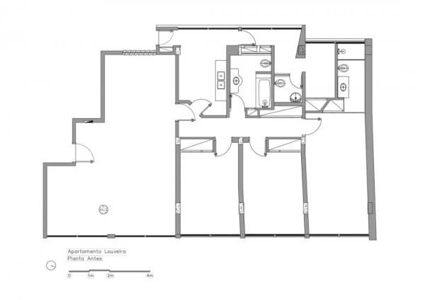
▲建築原始的格局被多面隔牆劃分,導致絕佳的採光也受到了影響,且多數功能區顯得狹小擁擠。改造時拆除了多面隔牆,讓光線可以直接穿透過道,到達最另一側的廚房等區域。
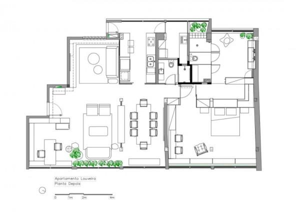
▲將隔牆拆除後,光線與不遠處的山谷美景在室內肆意流淌,粉刷的牆面、人字形拼貼的木質地板,這個空間看起來清爽自然又帶著一些復古的氣息。
▲客廳選擇了折衷主義風格的傢俱,藍綠色的沙發與多處栽種的綠植,可以很好的避免深色傢俱的厚重感,讓自然輕盈相伴左右。
▲定製的長條形地櫃擺放在原先隔牆的位置上,巧妙將功能區劃分。超長的餐桌搭配超大幅的裝飾畫,整個餐廳效果非常的大氣。
▲客廳的另一側為書房,無遮擋的視野讓屋主在辦公時也可以享受到不遠處的美景,擺放的書籍、藝術品,都增加了這裡的書香氣息。
▲屋主收集了兩千多張的CD,設計師特意規劃了一間影音室,定製的白色金屬架用來將這些寶貝收納妥當,紫色的沙發與地毯將氛圍感瞬間拉滿。
▲設計師將廚房的開門方向進行了調整,重新定製了高度為2.2米的黃色移門,色彩與建築外牆上的窗戶一致。
▲廚房地板呼應的使用了森林綠色的馬賽克小磚,上方的一層地櫃使用了黑色調的飾面,另一側則保留了原始的水泥狀態,而上方全部使用木質吊櫃,這個空間裡,不論是色彩、材質還是紋理都保持著豐富與簡約之間的平衡。
▲客衛使用了貫穿多處的黃色調瓷磚,不規則的拼接看起來十分生動有趣。
▲室內僅規劃了一間臥室,調整過的格局讓面積十分寬敞,不僅擁有寧靜的睡眠區,還有L型的衣帽間、辦公區、洗浴室。
▲設計師沿著外牆定製了一整排的地櫃,專門用來收納屋主的大量書籍,牆面則是簡約的辦公區,純白色調看起來十分的清爽舒適。
▲洗浴室的藍色花磚帶來了極強的視覺衝擊力,它既有著淡雅清新的美感,又平衡著簡潔與繁雜之間的平衡。
▲黃色的窗戶成為了建築的標誌,它也貫穿著室內的功能區。
▲主臥配備的汗蒸房。
▲定製傢俱圖
設計/Ana Sawaia Arquitetura
攝影/Carolina Lacaz
