本案小區:米蘭金獅家園
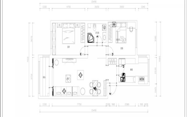
本案戶型:兩室兩廳一廚一衛
本案面積:112
本案風格:現代輕奢
設計說明:本案為米蘭金獅家園兩室兩廳一廚一衛112㎡戶型,這是一套老房改造案例,房屋主人是一對中年夫婦,屬於精英階層,帶著一個十歲左右的小女孩,這套房子已經有十年的房齡,很多地方都已經出現老化,只能重新進行裝修,夫婦二人喜歡簡單一點的設計,因此力天裝飾的設計師把風格定義為現代輕奢,今天我們就一起來欣賞這套112㎡老房子翻新裝修現代輕奢風效果圖。
1. 客廳:整體顏色搭配多用灰色,材質多用石材彰顯整體家居風格的硬朗,為了不使整體空間過於冷清,輔助搭配採用木飾面作為裝飾,體現家的溫馨。
1. 餐廳:與客廳相連,為了滿足一家人的用餐需求,打造了經典的四人餐桌椅的方式,有個性美的吊燈和掛畫,讓餐廳顯得更具有藝術感。另外餐廳的背後,打造了一個展示櫃,平日裡擺放一些餐具,或是書籍、小物件都非常實用。
1. 主臥室:為了凸顯生活的沉穩,整體的空間色調,採用了黑白灰的搭配原則,另外飄窗的設計,不僅能在閒暇的時候欣賞外面的風景,還能達到收納儲物的效果,使整個空間更加乾淨開闊。
1. 次臥室:從整體的設計手法和配色上看,明顯的是一套女兒房,粉色為主打色,給整個房間增添了浪漫情調,完全符合女孩子應有的少女心。
針對這套112㎡老房子翻新裝修現代輕奢風效果圖,您覺得本案的設計與搭配如何?是你喜歡的效果嗎?為此,力天裝飾的設計師也表示,由於業主是個精英人士,對生活質量的要求非常高,因此沉穩的黑白灰搭配非常適合,粉色也更貼近小女孩的喜好,整體來說,業主對這套設計十分滿意。力天裝飾深耕津門家裝24載,不忘誠摯初心,服務千萬家庭,更多相關問題請繼續關注力天裝飾!
