樓盤地址:首開紫郡
套內面積:122㎡
風格:現代輕奢
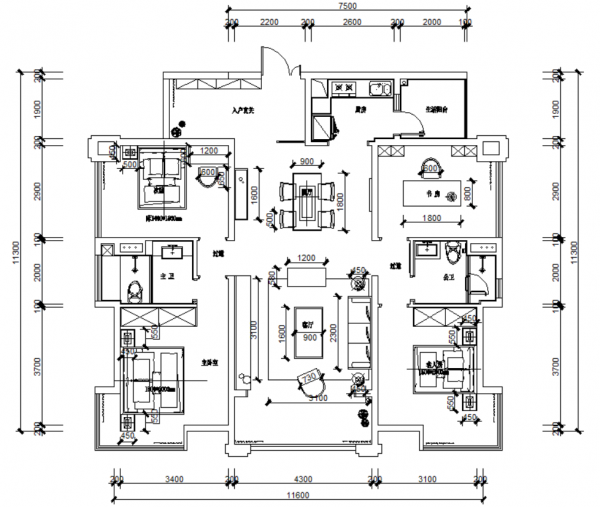
▼戶型圖
▼客廳
現代風格的表現不需要複雜的造型,簡潔的線條和塊面結構就足以修飾整體空間。
電視背景牆和餐廳餐邊櫃在入戶門的位置交匯,不同於傳統的凹陷造型,我們運用了向內收進的方式,用面板來處理了這個斷面,儘量避免出現一些陰角的地方,讓視覺效果在斷面處得到緩衝。
▼臥室
除了溫馨還要加一些色彩,把原本的飄窗做了一個既可以收納,又可以坐在上面休閒的一個功能。當陽光透過白色的紗簾之後坐在飄窗拿起一本書慢慢的品味,背景灰色的顏色做正面的塗刷,彰顯主人的酷炫的個性。
▼書房
窗邊的風景能夠為閱讀增添不少的樂趣,簡單的燈飾也可以恆脫出整體的格調品味
私聊看看像這樣裝修要花多少錢↓↓↓
