相信許多裝修的小夥伴跟我一樣,在交房的之前就已經興致勃勃的研究怎麼裝修了,尤其是一些打算自己裝修或者有自己的想法的小夥伴,這裡我講一下自己的實際經歷。
這個是我買房時售樓部的戶型模型。初看到時很喜歡,也心心念念想了很多改造方案但是拿到戶型圖後就死心了。
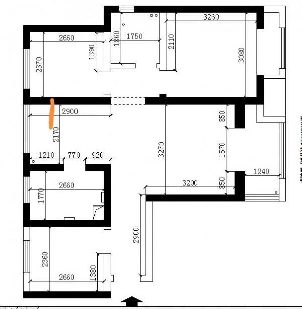
這個是我家的戶型圖,可以看到屋內的牆體大部分都為承重牆,房屋的基本格局沒有辦法動,那麼只能從小細節來處理了。
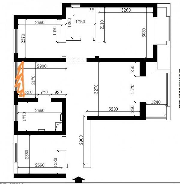
首先,進門處過長的過道是必須要處理的,而且由於過道較窄,右側的牆體又是鄰居的廚房牆體,沒有辦法砸,也沒有辦法掏,左側的牆體是小次臥的牆體,而且強電箱在這裡,所以也沒有辦法動,所以只能在右側的牆體上裝較窄的鞋櫃,如翻鬥櫃,或者內部採用斜隔板,我家選擇了斜隔板。
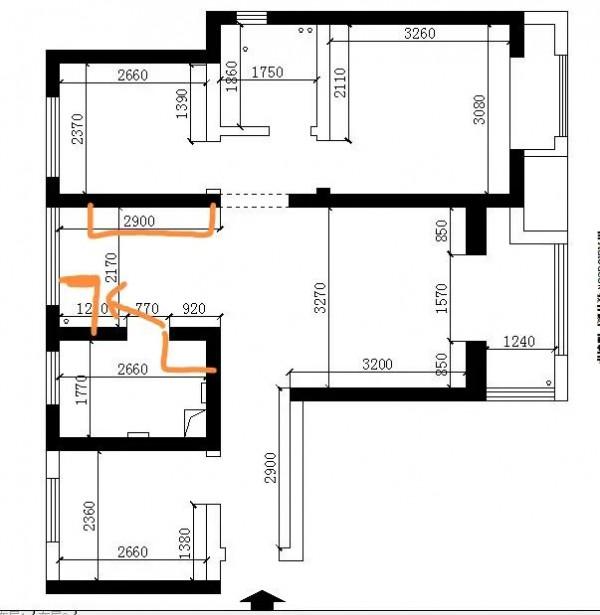
同時,由於過道太長,影響採光,所以鞋櫃採用了半牆設計,而沒有采用通頂設計,這樣沒有太牆的壓迫感。雖然是半牆,但由於過道長,所以鞋櫃也長,我做了兩米的鞋櫃,收納空間足夠 。還留下一米空間在牆上佈置一些掛鉤,可以掛衣服。
剩下就只有餐廳可以微調了,正好北陽臺有半堵牆可以拆掉,納入餐廳。
由於餐廳比較小,所以我選擇在窗邊做了一組齊窗高的餐邊櫃,這樣餐廳也比較方正。
當然有的小夥伴選擇把冰箱從廚房移出來,這樣可以買雙開門冰箱,同時廚房空間變大,而餐廳則在一側做卡座,不過個人覺得還是略顯擁擠。
還有些小夥伴冒著風險把部分承重牆砸掉了,這樣我是不推薦的,所以家裡只是對細節進行了設計,也更適合自己的習慣,希望是小夥伴們有幫助。








 
			 
			 
			 
			 
			 
			 
			 
			 
			 
			 
			 
			 
			 
			