如果提起打造一個專業的家庭影院,很多人會第一時間想到:需要一個很大的房子,還要有一個獨立的空間。
如果能滿足上述的條件那自然是好的,但無論是客廳還是獨立影音室,都可以組建合適自己的專業家庭影院,獲得優質的音畫體驗。
今天的主角“異形”同學,就在一個小小的客廳空間裡打造了一個非常專業的家庭影院。老規矩,先上圖!
客廳影院的構成
“異形”這名字真是比較特別哇!(大貓猜,他取這名字應該是異形系列的忠實粉絲吧……笑)
在現實生活中,“異形”是一位工作、生活在上海的普通70後大哥,按他自己的話來說,就是沒錢還喜歡上了“毀一生”的家庭影院。
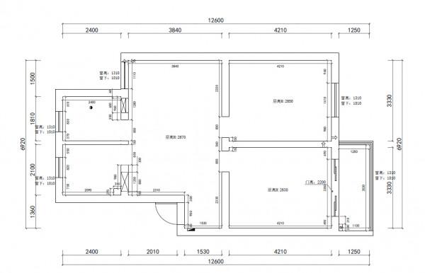
眾所周知,魔都上海的房價是非常昂貴的,所以“異形”的新房並沒有特別大的空間,使用面積僅有71平方米,是一個兩房一廳的小空間。那麼,他的家庭影院是如何構建的呢?
作為一個面積有限的房子,想要實現獨立影音室的難度是比較大的。“異形”自己也希望家庭影院是一個可以全家人共同享用的裝置,而不是一個人關在“小黑屋”裡的單人體驗。所以,這套家庭影院就順理成章地放在了客廳。
提到客廳影院,很多時候我們都會遇到一個“沙發靠牆”的情況。所以,在聲道數的設計上一般會是5.1.2或5.1.4。
不過“異形”的房型和大多數的橫向客廳不一樣,這個客廳有能夠放置後環繞的條件。
所以,地面7聲道成為了首選,佈線上以9.1.4的聲道數來佈線的,為以後升級留出空間,但是初期的器材購買只滿足7.1.4。
客廳影院的取捨
我們的設計師在和使用者溝通方案的時候,經常會提醒使用者,做家庭影院,特別是在客廳做家庭影院,很多時候就像是“戴著腳鏈跳舞”,你會在美觀、聲音效果、空間功能的實用性等等去做出取捨。
魚和熊掌不能兼得,因為我們做家庭影院的空間,就不是杜比實驗室那種絕對理想的環境。
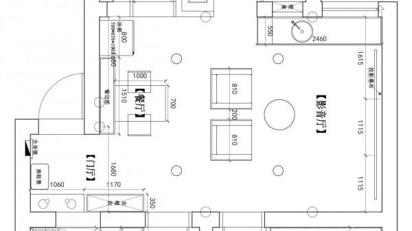
從“異形”的案例中也可以看到,客廳、餐廳為了與家庭影院共存,都是互相做了妥協:
1.餐廳的面積被壓縮,餐桌用了一張小號的。
2.廚房門使用了木門,地面用的是強化複合地板而不是地磚。
3.因為生活需要,幕布邊做了水吧檯,這裡對音質是有影響的。
4.幕布牆刷成了深灰色,兼顧了客廳、餐廳的顏值,也可降低投影機的反光。但房間其他牆面就沒法做成深色的,白色牆面對畫質還是有一定的影響。
“異形”同學的家庭影院乾貨分享
“異形”的家庭影院案例分享就到這裡,接著的是他在做家庭影院的前前後後所總結的乾貨,分享給正在做家庭影院的同學們。
第一步,建立對影院的正確認知
“異形”同學認為,組建家庭影院的第一步,是要建立對家庭影院的正確認知,其中的方法也有很多種。
你可以透過去“家有影院”的微信公眾號去做一個系統的瞭解,哪裡有包括“影院入門”、“裝修佈線”、“擺位除錯”等各種關於家庭影院的基礎知識。
如果有機會,你也可以到訪位於重慶的“家有影院”編輯部,甚至是到摩大大的家中去做家訪,瞭解一下系統的家庭影院知識。(當然,這是需要提前預約的)
不過,這極有可能讓你提高現有的預算,笑……。以上兩張圖片是摩大大評測K700 PRO時候的。
此外,各類展會以及專業商家的演示廳也是有參考意義的地方。但要注意,這些地方良莠不齊,有些展廳並不能作為參考。
如果去電影院的話,“異形”同學推薦“杜比影廳”。需要注意的是“杜比影廳”,而不是杜比廳或者杜比全景聲廳等。
“杜比影廳”是杜比公司的工程師全程參與,結合杜比視界和杜比全景聲打造的電影廳,在目前的商業影廳裡面,算是比較標準的。
第二步,確定適合自己的家庭影院方案並施工
當具備了一定的家庭影院知識,在和“家有影院”的設計師確定方案時就會變得更輕鬆。
這個部分會涉及到產品的具體配置,這時它還不是重點,這個時間段更多是確認家庭影院的架構,為相關的施工做好準備。
在“家有影院”的設計師幫助下,確定強弱電的線路佈置、地面和天空音箱擺放位置、幕布槽施工要點等……
在這個階段,你會掌握很多家庭影院相關的知識,甚至還要了解一點裝修方面的知識,方便你在施工中跟裝修公司的鬥智鬥勇。
第三步,器材的購入
如果你是客廳黨,在裝置的選擇上,還是需要跟家人多多商量。如果另外一半有顏值方面的要求,還是要儘量考慮和照顧,畢竟音箱掛在客廳裡面,對客廳裝修的影響還是比較大的。
幸運的是“異形”同學的領導更關注音質的表現,在裝置的選擇上“異形”同學可以放開手腳。於是,“異形”同學的音箱選擇了可能在很多女同學看來外觀過於專業範兒的KK。
“異形”同學的配置清單如下:
前三:KK K700PRO×3
側環:KK KS700×2
後環:KK K500×2
天空:Starke AO65×4
低音炮:Starke SUB35×1
功放:Marantz SR6015
後級:Starke A8
投影儀:SHARP QZ639A
幕布:Unicorn 120英寸電動拉線透聲幕布
播放器:OPPO203 樂穩版
總價:約20萬人民幣
對音質和畫質的追求是沒有止境的,如果你是非常喜歡影院的同學,建議要注意留下以後升級的空間。
以“異形”同學為例,他就在地面佈置了9個聲道的喇叭線,並且還安裝了可以前後移動的投影機吊架。
之後的升級規劃中,“異形”同學會再增加一隻低音炮、把合併機功放換為純前級,並再增加一臺後級,最後投影機上到更高階的JVC。總之,就是“燒”。
寫在最後,這套客廳影院的感受如何?
“異形”同學覺得自己這套影院最終的效果如何呢?用他自己的話來說大概是這樣的:
“客廳影院因為無法有效進行隔音和吸音處理,低音的聲壓又無法開到很大,所以低頻震撼力和量感是無法和有完整彈性剪力牆、吸音與擴散處理的獨立試聽空間相比的。
但在聲音的精細度方面,同樣的片子,我在家裡可以聽到更多聲音細節,聲音的輕重、定位、連貫性都是遠超普通電影院,甚至包括杜比影院。”
“畫質方面,因為投影機的亮度問題,所以使用中還是需要注意遮光。
家用投影機經過適當的設定調整後,整體畫面的顏色會更加鮮豔,能夠看到很多光影色彩的變化和過度的細節,畫面的對比度也會更好。當然,我也在計劃更高階的JVC投影機,笑……”
好了!以上便是本次的全部分享內容。還是那句老話,如果你也想打造自己的家庭影院,就趕快和“家有影院”的設計師聯絡吧!
