Tezuka architects展示了它的“城堡屋”,它建於靜岡,享有富士山的壯麗景色。在該專案的設計過程中,該團隊指出,“每個日本人都向往那座雪山,雖然它只不過是從地表下噴出的一堆“浮石”。” 富士山的景色,加上微弱的流水聲和周圍的農田,為住宅區增添了田園氣息。
由於當地的居住規則,城堡房屋的高度不得超過其鄰居的高度。由於靜岡縣的大多數房屋都有傳統的斜屋頂,因此對於該地區的大多數人來說,富士山的特權景觀僅限於二樓的窗戶。建築師指出:“因此,‘向上攀登’的行為一直自然地融入日本人的日常生活中。”
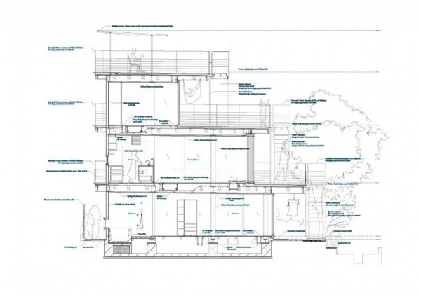
Tezuka architects將其城堡房屋設計為向上展開的旅程,因此當居住者上升到頂部時,風景會發生變化。團隊說:'這乍一看似乎很明顯,但與上樓不同。當房子被大懸垂的甲板抬起時,對風景和生活方式的看法發生了變化。
就像“放在砧板上的配菜”,主要的生活空間被翻轉了,與傳統建築相反。這些“砧板”既可以用作屋頂,也可以用作容納生活空間的平臺。建築師詳細說明:“在這間由浮板組成的房子上找到了一個家,就像只有建築外殼才有室內一樣。"
生活在半空中允許“開放隱私”的元素。在方向上,人類對環境的感知一般是水平的或垂直的。建築師解釋說:'如果你將注意力向上轉移並繼續行走,你會陷入坑坑窪窪的。因此,處於較高的位置會產生一種由重力促成的微妙的隱私感。
Tezuka architects對其城堡房屋的精神發表了評論:“人類不能離開自然而生存。不僅僅是氧氣和水等基本需求,整個生態系統都離不開。現代人已經無法應付真正的戶外活動。所以急需與外部環境建立良好的關係。
正如人不能吃樹皮的動物一樣生存,但人更不能離開自然而生存。這就是為什麼在房子的設計中考慮花園的原因。因為花園是屬於鋼鐵城市中人類的感受大自然的替代品。
“但人們又不能一直住在花園裡,因為花園是一個讓人沉迷其中的環境。人們可以住在這個甲板上,這裡保持了隱私,長長的跨簷可以為居民擋雨,身處花園中,卻又可以保持適當的距離,遠離泥濘的土壤。”
