今天分享的案例來自一個位於烏克蘭基輔的70㎡一居室。
細膩的裝飾材料和粗獷的建築基地相互碰撞,強烈的衝突感帶來豐富的視覺體驗。
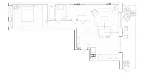
▲平面圖
▲軸側圖
玄關處用木架分隔,隔而不斷,一盞壁燈讓空間層次感更多元。
木架由玄關直通客餐廳,整體感很強。
透過虛實變化,構成不同空間不很明確的區分。
客廳沒有電視,沙發對面是矮櫃和一張做工考究的椅子,木架延伸成書架,就是一個簡單而舒適的閱讀角。
沙發背後是開放式餐廚區,無主燈設計和客廳天花連通,水槽重點照明透明線,樸素中透著設計感。
臥室延續了客廳的白木底色,門上做通頂百葉,趣味十足。
臥室整面的櫃子帶來充足的收納空間,床頭壁燈勾勒出輕鬆隨意的氛圍。
臥室高處牆飾面沒有做到頂,保留了磚牆,只漆成白色,肌理效果豐富。
衛生間做板牆隱藏管線,上方利用進深增加鏡櫃,實木浴室櫃很有復古味道。
壁掛式馬桶,水件隱藏在櫃體裡,整面牆的櫃子收納空間充足。
