這期的屋主小兩口是地地道道地北京土著,從小串在衚衕裡,兒時經歷過幾家人共用廚房、共用衛生間的逼仄感,長大了就喜歡了有陽光、有超大衛生間的房子。
這個朝南的113㎡三室兩廳兩衛簡直就是他們的夢中情房。
兩個朝南臥室+超大落地窗,採光超好!還有兩個衛生間全都戳中了小夫妻倆的訴求。
但考慮到寶寶正在長大,需要大量的活動空間,還有夫妻倆喜歡泡澡的習慣。
“家裡一定要有浴缸”,“改大兒童房”就成了結構改造的重點區域,另外一間房夫妻兩商量後決定變為衣帽間。
改造後,房子看上去空無一物,全屋無主燈照明、超大主臥自帶浴缸衛生間、獨立的衣帽間和客餐廳一體、超大兒童房應有盡有。
加上她家3個人住113㎡,人少面積大光看照片就像200㎡的大豪宅似的!
怎麼改的,咱一一說來~
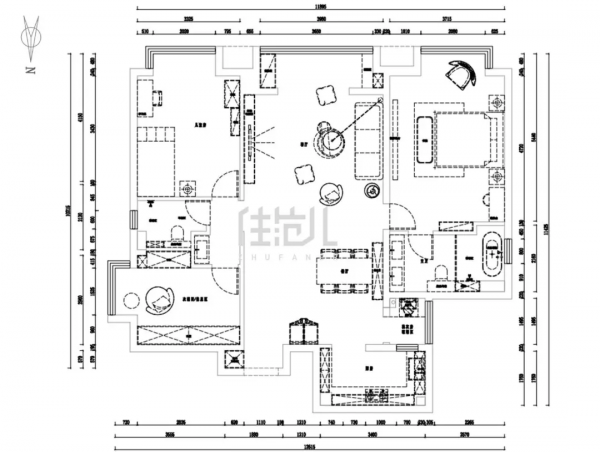
改造前
標黃的部分為拆掉的牆體
其實改造前房屋的整體結構方方正正,佈局也還算合理,無功無過。
唯一詬病的就是兩個衛生間都沒有乾溼分離區,結合屋主的訴求,主臥原有的衛生間太小,無法裝下浴缸。
改造後
改造亮點:
·重新規劃主臥衛生間,拆掉了原有牆體,向主臥借了20cm,可以容納下1.5x1.8m的浴缸;
· 做乾溼分離,雙臺盆可同時滿足夫妻兩人同時使用
· 拆掉原有兒童房牆體,向次臥衛生間借1m,擴大兒童房面積
· 臺盆外接,次臥衛生間形成“乾溼分離區”,洗漱和上廁所互不打擾
· 功能性改變,增加25㎡定製櫃,將小次臥變成衣帽間,全家人的衣物集中收納
房屋位置:北京
房屋面積:建面150㎡ 套內113㎡
房屋戶型:3室1廳1廚2衛
裝修套餐:顏值革命4.0
全部花費:49W(29W全部硬裝+傢俱家電12w+全屋定製4.8w+其他雜費3.2w)
常住人口:3人(夫妻兩和寶寶)
設計經理:王瑜
01
玄關
這個玄關,有點特殊,準確來說,是一部分在門外,一部分在門內。
門外的部分,其實在北京也很常見,大抵就是一戶或者兩三戶共用一個公共入戶門,而鞋櫃,通常也對應放在這戶人家的入門處。
從入戶玄關看望公共過道
不過這期,恰好是一戶一門,在真正進入屋主家之前,還要走過一段近3m的走廊。
走廊裡,暗藏了這棟樓的水電閘、暖氣管道等公共設施,而本應該放在室內玄關的鞋櫃也放在了門外,這就大大節省了室內的空間。
嚴格來說,這個屬於公共空間,我們不過多贅述。
公共走廊
門內的部分也很簡單。
除了通體刷乳膠漆,只在側面開門的地方做了與牆面齊平的通頂櫃,內部只做一層活動板,上面放旅行常用的行李箱,下面收納出門隨身穿的外套,長衣短衣都能掛下~
牆體左邊是自家的電器開關處,為了更好的維修,沒做過多的裝飾。
與牆一隔的就是廚房了,往前走是通體明亮、採光超棒的客餐廳。
02
餐廳+家政間
其實玄關一過,第一眼看到的就是餐廳了。
餐廳是個開放空間,與廚房、家政間、客廳都是打通的,沒有門。
從客廳望向餐廳
從餐廳延伸到客廳的照明,都是一體的“無主燈照明”。
筒燈是固定位置,每間隔1m做1個,相當於主要照明光源,屋主一共用了5個;軌道燈可以隨時調節位置做區域性照明,搭配帶狀燈,屋主在吊頂的兩邊分別做了3.5m長,共花費近1萬元。
喜歡無主燈照明的可以做個參考。
需要提醒的是,無主燈照明雖然流行,但不一定適合所有的家庭,而且施工相對複雜,修改費用也不低,做之前一定要想清楚~
從餐廳望向客廳
餐廳靠牆的一側做了1.75m長的定製櫃,門板都是愛格板的,健康又環保。
定製櫃都通頂,不落灰。高2.4m的通頂櫃未來會成為家政區的一部分,放吸塵器、洗地機等地面清潔物品,目前暫時放在陽臺。
“吊櫃+開放格+抽屜”的部分主要用作餐邊櫃,也可以作為臨時的茶水吧使用。
從兒童房過道望向玄關
餐桌和餐桌椅是配套的,餐桌椅用的灰色的人造大理石的桌子,大約是1.8x0.8m的,可同時容納至少6人就餐,搭配全屋淺灰色系,簡約又有質感。
不過乍一看挺冷的,屋主丹丹說小時候的房子都太擠了,現在就喜歡這樣大、敞亮的感覺,剛好小小滿足一下她“斷舍離”的計劃。
作為全職媽媽,她打算帶娃從小養成這個習慣。
餐桌對面靠牆的一側,放了上下四開門的日立大冰箱,因為有娃,單獨選了個帶母嬰功能的。
而往前走,就是蝸居在角落裡的家政間,雖然與廚房僅有一牆+一窗之隔,但因為是承重牆,所以無法打掉,只能“各為其用”。
上圖為改造前,下圖為改造後
家政間很小,僅有1.2㎡,只能容納下洗衣機和烘乾機疊放。
屋主一家是“美的”的忠實使用者,所以洗烘都選了美的旗下的高階品牌“Colmo”的,一共花了近2w。
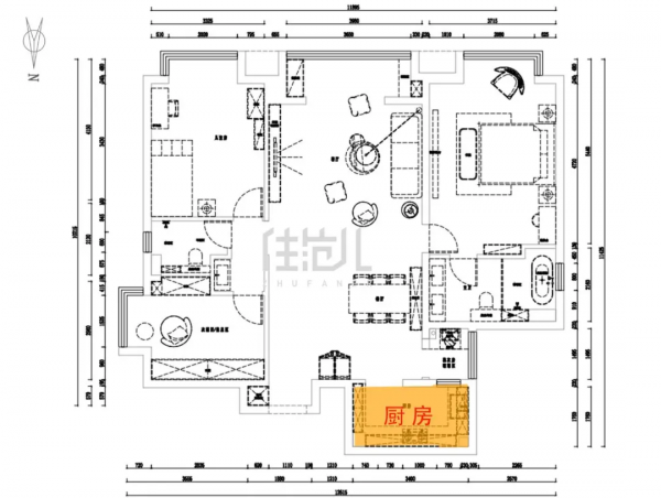
03
廚房
家政間的對面就是廚房,廚房和之前相比,變化不大。
拆掉了原有的玻璃實木門,廚房從全封閉式變成了半開放式,內部裝飾也從複雜變為簡約,和整體風格更搭配。
本來屋主計劃拆掉與家政區連線的牆體,但這裡是承重牆,只好作罷。
改造前後對比圖
上改前 下改後
廚房原本就臨著窗戶,雖然開窗後是對面的樓梯會遮擋一部分採光,但也能解決一部分採光問題。
改造後的廚房整體採用吊櫃+開放格+地櫃的組合形式,是典型的U型佈局。
相比改造前,吊櫃幾乎挨著吊頂,不易積灰造成衛生死角;新增的開放格也能隨手容納下炒菜的瓶瓶罐罐,不佔用廚房檯面,整潔好用。
我們去拍攝時,屋主丹丹一家剛入住3個月,開放格里還放滿了綠蘿用來除甲醛,天氣好的地方窗戶也一直是開著的。
地櫃下方隱藏了暖氣管道、燃氣表。
新裝的灰色門板簡約大方,更耐髒,一直被誇誇誇的洗碗機,還有常用的微波爐、蒸烤箱也安排上了。
改造前後對比圖
廚房牆面用30x30cm的瓷磚組合,易清潔好打理。
牆面特別安排了可以單獨調控的三個排插,好用又省了走線佔地的麻煩。
從家政間門口望向廚房
04
客廳+陽臺
餐廳和客廳實際是一體的,只是透過軟裝劃分功能區。
客廳沿用了餐廳現代簡約的風格,但透過沙發等軟裝加入了一些明亮輕快的顏色,看上去也更加有造型感。
從走廊望向客廳和餐廳
尤其是正午陽光直射時,陽臺上的花透過窗戶斜斜地打在紗窗上,影影綽綽,稀稀疏疏,頗有一份“歲月靜好的模樣”。
屋主就帶著娃,躺在這裡曬太陽,是夢想中的躺平生活了。
(扯遠了哈哈哈~~~)
入住3個月,屋主也表示在客廳待著的時間最長,她認為客廳是一個家的中心,不能少。
功能上,因為做無主燈,吊頂佔用了大約8cm左右的高度。
客餐廳通鋪的0.8x0.8m的淺灰色瓷磚,雖然反光,實際情況有點扎眼,但視覺上也很顯大顯高。
客廳靠牆的一側,屋主選了100寸的索尼大電視上牆,搭配淺灰色的懸浮定製櫃,既解決了收納問題,也不用擔心螢幕不好,對小朋友眼睛的傷害。
索尼電視為線下購買
在軟裝尤其是沙發的選擇上,屋主就一個原則“舒適”!
所以你看她家沙發的進深都不小,屬於“一屁股坐下就起不來的”,陷進去了。
茶几為了和客廳整體明快的感覺搭配,選用了淺色系的人造大理石和金屬材質的。
客廳的盡頭,隔著整牆的窗簾,就是陽臺了。
窗簾和吊頂一起,提前安置了窗簾盒,整牆的落地窗簾也不會分隔空間。
陽臺的左右兩側靠著承重牆,原計劃屋主打算用定製櫃做平牆收納,考慮到這裡還有其他的電路箱子,暫時沒有特殊的設計。
只用做養花和健身區域。
下面這張是我拉開窗簾後,用手機拍攝的植物,感覺很溫暖,
打算入手同款養花盆。
▼
05
主臥+衛生間
從客廳靠沙發這個白色木門進去,就是主臥以及主臥衛生間了,主要供屋主小夫妻倆使用。
咱就有一說一,不論是改造前後,這個主臥的採光真的是一級棒!
改造前後示意圖
改造前,這個主臥的床頭牆和定製櫃上滿面桌布,還顏色、花色各有選擇,加上當時流行的吊頂,也不好說好不好看,但最少不是屋主喜歡的“簡約感”。
改造後,臥室也沿用了固定的筒燈做“無主燈照明”,全屋牆面通體刷成白色,簡約還顯大。
通頂的定製櫃只預留了進深30cm,兩面門板,放兩人常穿的內衣、睡衣的貼身衣物,其餘的全都放在衣帽間;中間鏤空預留照片展示牆。
床頭牆左右兩側,分別預留了兩個排插,方便晚上睡覺時手機充電,或者未來又想添置檯燈。
為了搭配全屋的簡約風,屋主特地選用了烤漆面板搭配金屬腳的淺灰色床頭櫃,還有一款透明的亞克力材質床頭櫃,共花了近2000.
雖然材質多,但因為顏色不多,搭起來也不錯。
主臥通鋪的實木多層板,光腳走起來也很爽!
從進門處望向主臥
從定製櫃旁邊的玻璃門進去,就是主臥附帶的衛生間。
前面我們已經說過,屋主希望有一個大浴缸,這是個硬訴求。
其實原來的衛生間裡也不是沒有,只是大小不合適,而且牆面上發黃的大理石瓷磚風格不搭調,還顯髒。
改造後的主臥衛生間,是通鋪的30x60cm的中號淺灰色瓷磚,很顯大。
透過半透明的長虹玻璃門分隔,一邊是泡澡、淋浴區,一邊是雙人洗漱、馬桶區,乾溼分離;還能滿足兩人同時洗漱,很實用。
馬桶選用直排式懸浮馬桶,底部預留出20cm,可供拖地機器人隨時清潔。
雙人的洗漱區借用酒店式設計的思路,鏡櫃上牆,做懸浮式的洗漱臺盆,下置“開放式與抽屜一體”的收納空間。
鞋子、浴袍、還有洗漱的瓶瓶罐罐都有地方藏。
溼區向主臥借了10cm空間,牆體重置後,終於容納下1.8x1.5m的泡澡盆,不用砌牆固定省出的空間,還能在側面單獨劃分淋浴區。
向牆面挖出的壁龕可隨手放置泡澡的沐浴露、洗髮水等瓶瓶罐罐,很實用。
唯一擔心的就是浴缸周邊和裡面的死角不好清理。
06
次臥(兒童房)
次臥的位置在主臥的對面,門洞與主臥幾乎齊平。
主要給3歲小朋友使用,因為孩子還小,內飾並沒有做多餘的設計,只在空間上擴了2.5㎡。
從主臥望向次臥
原有次臥很小,只能容納下一張床和一個書桌,床還是功能沙發床。
改造後的兒童房向次臥衛生間借了1m,可以同時容納一張1.8x1.5m的單人床,還能多餘出1m成小朋友的玩耍空間。
即使以後慢慢長大,也只需要不斷更換傢俱,不在空間改造上大費周章。
從次臥望向次臥過道
07
衣帽間
透過一個約2m的走廊,就進入與次臥相望的衣帽間,原來是小次臥。
原有的佈局中,小次臥的門廳與次臥僅一步之遙,從客廳可以直接進入,不需要走廊。
為了次臥衛生間的乾溼分離做臺盆外接,且不直接對著客廳,加入了走廊做隔斷,原有的小次臥門廳向內推了1m,也就是現在的衣帽間門。
拆改結構示意圖
▼
改造後的小次臥是全家的衣帽間,全屋由通頂定製櫃組成。
為了配合全屋現代簡約的風格,定製櫃門板也是淺灰色,門板是經過篩選地愛格板,每塊板上都有出廠的編號。
現在才入住3個月,這裡還沒被裝滿。未來,屋主小夫妻倆、寶寶的衣物、玩具都會被集中收納在這裡。
衣帽間的門口,屋主特地在某寶選用了孟菲斯設計風格的白色網紅鏡,四周水波紋的造型不斷向外延伸,給人無限的遐想。
上邊是屋主家的,下邊是原版的,原價要1w美金。
滿是金錢的味道~哈哈哈哈
▼
08
衛生間+走廊
次臥衛生間夾在衣帽間和兒童房之間,大約2.5 ㎡。
做了單獨的臺盆外接,可滿足兩人同時上廁所和洗漱,方便家裡有客人時使用。
臺盆外接同樣參考酒店設計的思路,在最開始就預留出單獨的進深和空間。
白色臺下盆搭配黑色金屬拉手的懸浮櫃,高階又不失質感。
放在這裡,換衣服、寶寶洗手或者客人洗手都很方便,還有牆體遮擋,有一定的隱秘性。
次臥衛生間透過平開的長虹玻璃門進入。
衛生間同樣通鋪30x60cm的白色瓷磚,與整體風格統一,還顯大,同樣的直排式懸浮馬桶好用,還不會積水。
唯一有點小bug的就是沒有做乾溼分離,這個後期拯救也簡單,不考慮美觀的話,後期在某寶買一個防水布懸掛即可。
此外,相比於以往的衛生間,它還有窗戶,是個明衛,這個簡直好太多了,你說呢?
屋主好物清單
家政間 洗衣機+烘乾機 COLMO 19999元(線下購入)
餐廳 冰箱 日立 34999元(線下購入)
客廳 毛毛蟲懶人沙發 希爾頓 1691元
客廳 電視 索尼 15299元(線下購入)
客廳 三人沙發 高乾 7134元(線下)
主臥衛生間 浴缸 11900元(線下購入)
主臥 左邊床頭櫃 極有家 1120元
主臥 右邊床頭櫃 Onelux 398-486元
主臥 床墊 絲漣 9670元 (線下購入)
兒童房 兒童床墊 絲漣 6850元 (線下購入)
衣帽間 ins網紅孟菲斯鏡 極有家 579~3473元
好了,這就是本期113㎡的真實人家了。
雖沒有以往小戶型案例看著那麼清新,倒是現代簡約版的另一種參考風格,你覺得呢?
喜歡本期案例的扣“喜歡”,覺得有用的評論區打“有用!”當然【點贊】也希望你安排一下下啦~
