夫妻隱居深山,就地取材造房子,36㎡微型房屋,還帶露臺和桑拿房
生活不止眼前的苟且,還有詩和遠方的田野,隱居的家居生活令我們嚮往!
我想舒服地躺一下,可我不能,因為我還在工作;我想假期出去旅遊一下,可我不能,因為我還要加班。為了生計,你是否也像我一樣,不能隨內心所想?不能按計劃去做?很多時候自己決定去做的事情卻不能實現,因為計劃趕不上變化。每天工作的忙碌,身心的疲憊,讓我們感到壓抑,卻又無處釋放。每天還要為柴米油鹽而精打細算,想著總有一天自己能熬出頭,可是,那一天沒有誰知道什麼時候來。活在當下,我們不能光想著未來,而忽略了現在。過得好嗎?是啊,現在我們過得好嗎,既然未來是不定式,那我們何不享受現在,享受生活,隨內心所想去做呢?今天MOMO分享的案例,來自國外,一對夫妻隱居的家居生活。這對夫妻因為生活上的壓抑,遠離了繁華的都市,一家來到了偏遠的深山,在這裡建造了36㎡微型房屋,過得相當舒適、幸福!現在跟隨MOMO的腳步,一起看看這對夫妻幸福的隱居生活。
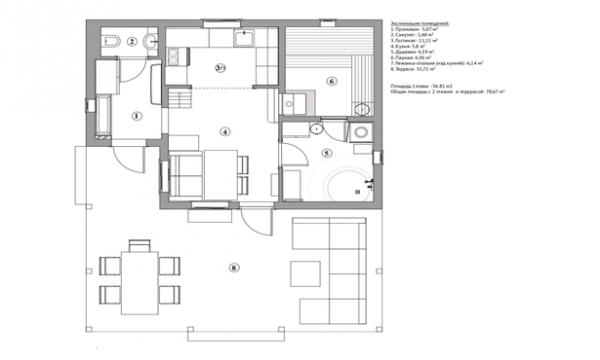
平面戶型佈局圖
從戶型佈局圖我們可以看到這套房屋佈局規劃很到位,這套房屋的空間模型是長方體的空間結構,面積雖小,但功能齊全,還帶露臺和桑拿房。房子是就地取材的,用了許多樹木建造的,也許有人會說,為什麼不建大一點,大一點不是更好嗎?在夫妻眼裡看來,房子的大小不是重點,重點是居住的溫馨、舒適,這麼大就足夠了。
房屋外觀圖
在這裡,我們能感受到大自然的清新,感受到生活的愜意。在這裡,我們看不見高樓大廈,聽不到嘈雜的車鳴聲,卻看得到茂盛的樹木,碧綠的草地……這套房子外形看起來是很美觀的,採用樹木建造。進門兩旁擺放了許多植物盆栽,走上臺階就是露臺了。
露臺的佈局
露臺的佈局還是很美觀的,沒有采用一點水泥,全是木頭建造的。這是露臺的右邊,沙發圍繞四周擺放。沙發的底座是木製的,上面鋪了白色的坐墊和靠墊,幾個顏色不同的抱枕進行點綴。旁邊還有一盞白色的落地臺燈,版型挺大的,牆壁上還掛有圓形的石英鐘。沙發前面擺放了一張紅色的木製茶几,茶几上面放了茶具。
女主人抱著黑色的貓咪坐在沙發上面,很是開心。露臺的後面有許多綠色的植物藤蔓,像是一面植物牆,充滿清新與自然的氛圍感。
露臺的左邊擺放了休憩的木製座椅,有四把木製摺疊椅,兩兩相對而放。桌子上面擺放了一些水果和幾個陶瓷杯具,這裡是飯後茶談的寶地,不僅能欣賞自然的風光,還能品味茶後人生。
如果按照現代房屋設計來說,這裡可以說是玄關,但又不完全是。一張紅色木製的櫃子,有三層抽拉櫃設計,可以放一些雜物之類的物品。櫃子是靠窗戶擺放的,檯面上放了茶壺,還擺放了水養植物花盆。旁邊的紅色椅子上面放了一盆植物盆栽,上方的牆面上有兩個黑色的掛鉤,一盞杏色的漁夫帽掛在上面。
室內佈局裝飾
這是客廳的裝飾佈局,全屋木板隔條設計,很美觀。通風和採光效果還是不錯的,兩個窗戶,玻璃房門設計。進門口有一個木製的鞋櫃,容納空間還是挺大的,有四層格子層,還可以放其它一些雜物。餐桌靠窗而放,四角都有輪子,是可以推拉的。靠牆面擺放的沙發也是可以推拉的。
沙發旁邊有一個竹子做成的箱子,看起來是挺大的。牆壁上還掛有一幅歐美風格的人物水彩畫,畫的上方有一盞黑色的檯燈。客廳的燈具是用竹子籠罩著的,很新穎。餐桌上面擺放了紅色的茶壺和一些盤子碗之類的。
這裡是屋內取暖裝置,火燒爐子取暖,燒木材的。牆壁上方掛了許多一家人幸福生活的照片,我們可以看得出這對夫妻一家人還是非常幸福的,生活也非常美好。
廚房
現代式的廚房,白色的櫥櫃,櫥櫃有許多格層,容納空間非常大。廚房正對面還有一扇窗戶,推拉玻璃窗戶,邊框是木製的,通風和採光效果是很棒的。左邊的牆面上鑲嵌了白色的壁櫃,有三個檯面,上面擺放著一些玻璃瓷器和一些陶瓷之類的器具。右邊的牆面上則貼了一些大小各異的盤子進行裝飾。
這是烹飪的區域,採用的是液化氣灶,兩個灶頭的,液化氣罐是放在櫥櫃裡面的。灶臺上有正在燒水的水壺,旁邊有一些烹飪用的廚房用品。
櫥櫃上面有黑色的水槽,是可以調節水溫的。旁邊的菜板上有正在切的水果,是用來泡水果茶的。右邊的櫥櫃檯面上還有一個籃子,籃子外面有幾個檸檬。牆壁上還鑲嵌了一個木製檯面,上面擺放了一些盤子還有一臺微波爐。下方有一排掛鉤,按順序排列掛了大小不一的勺子,還有茶杯。
廚房上面是閣樓,也是夫妻的臥室。這木梯就是通往閣樓的,木梯的板面很大。木梯對面的牆面上還有兩層木製的臺櫃,上面擺放了一些書籍。現在我們一起去看看夫妻溫馨的臥室吧。
閣樓裡的臥室
從木梯上來,就是夫妻二人的臥室了,上來我們就能看到一幅歐美風格的汽車圖畫,這幅畫的旁邊有一個大木樁床頭櫃,看起來是很珍貴的。上面擺放了一盆水養的花束盆栽,牆壁上還掛有一盞黑色的檯燈。
臥室的採光還是可以的,在床頭的正中央有一盞小型的窗戶。房頂是三角形的設計,不高不矮剛剛好,也不會顯壓抑。床頭的另一邊有黑色的櫃子,裡面放了一些書籍,檯面上放了蠟燭架。
衛生間過道(玄關式設計)
我們可以直接從露臺走進來,這裡的牆面是用石塊建造的,看起來很堅固。門背有一壁櫃,非常小型,但也可以放一些物品。牆壁上還開有一扇小型的窗戶,下方是沙發式的小床,可以用來坐著休息,牆面上還有一排掛鉤,黑色小包掛在上面。
過道地面的中央鋪有圖案的瓷磚,看起來很漂亮。過道左邊還有木製的衣櫃,雙開門設計,容納空間是非常大的。衣櫃對面有兩個木製的櫃子,並排而放,櫃子有許多格子層,抽拉式的,櫃檯上面還擺放了一盆植物盆栽。天花板上還裝有幾盞燈具。
衛生間
衛生間的牆面是深藍色的,很清新。牆底有非常小的瓷磚走線,這樣設計牆底不會滲水。牆壁上裝有毛巾架,可以很好地掛浴巾和毛巾。
這是洗漱臺,水槽是挺高的,牆面上貼有兩幅對稱花瓣的圖案。右邊的牆壁上有兩個懸掛的籃子,一個用來放牙刷牙膏,另一個用來養花朵,很清新與自然。洗漱臺下方是洗衣機,裝有簾子進行遮擋。這裡有個非常新穎的設計,窗戶也是梳妝鏡。
衛生間有兩個窗戶,通風還是非常好的。窗戶是木製的條框的,下方是馬桶。
桑拿房
桑拿房採用了白色的裝飾風格。白色的木板門,這裡比室內的地面低一個門檻,便於排水。門的左邊牆壁上有一排掛鉤,掛了一個淺綠色的袋子。下方有一個垃圾桶,是用材料編織而成的,還有蓋子。
桑拿房也是設計了窗戶的,採光也還是可以的。一把木製的椅子,上面放了一個水桶。上方是鏤空的壁櫃,可以放一些桑拿用品,壁櫃上還貼有三個掛鉤,掛了兩個浴球。桑拿房的地面鋪的是灰色透白的瓷磚,非常適合。
牆壁上還裝有花灑,可以很好的淋浴。在這裡洗浴也是非常不錯的,隔著一面牆就是取暖爐,在這裡不用擔心寒冷問題。可以很舒服地進行洗浴。
結語:我們雖不能像“採菊東籬下,悠然見南山”的陶淵明一樣,過著隱居田園的生活,但我們可以享受生活。家居生活也是很重要的,當我們結束一天的勞累後,如果躺在舒適、溫馨的家裡,心裡也是會感到一絲欣慰的。這對夫妻帶給我們的家居生活經驗有很多,露臺的設計特別吸引人,也許有一天我們實現了財富自由,我們都可以借鑑這對夫妻的經驗,設計一個舒適、溫馨的家居生活氛圍。
