陽光照射著通透的客廳
動線流暢又鬆弛有度
譜出了生活的悠閒雅緻
三代同堂五口之家
不僅僅是數字
更是內心的溫暖、歡喜
和小確幸
在這裡生根發芽~
本案裝修後是一家五口居住,業主夫妻和父母,還有一個6歲的小男孩,業主的訴求是:增加儲物量、滿足廚藝愛好者的需求、擁有單獨的兒童使用空間,擴充房間使用面積。
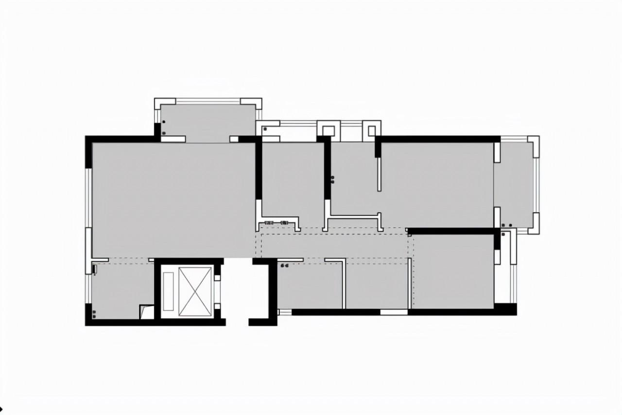
原始勘測圖
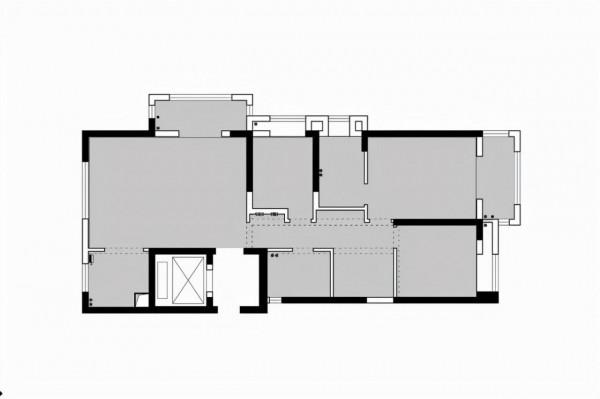
平面佈局圖
設計說明:
1.改變廚房門洞位置,優化了廚房及客餐廳動線 ;
2.微調了過道牆體位置,縮小了主衛生間,使主臥面積得以擴充,空間利用率得到提高。
簡約灰色是一種不事張揚的色彩,靜謐中蘊含著高貴的時尚內涵,隨意中能給人別緻的感受。
進戶門左手是儲物櫃和鞋櫃,做到了隱藏式分割槽儲存。米色電視牆搭配黑色電視、冷灰色的地磚與全房配色和諧統一,使得空間採光的充足,光感明亮。
設計師特意在客廳構建了一個利用率超高的家庭核心區,使得客廳、餐廳、廚房連線貫通,提高了空間的利用率,加強了空間的互動性和通透感。
餐廳做了整面到頂的櫃體,將部分廚房電器嵌入其中,放眼望去,精緻整潔。
餐桌的白色大理石臺面乾淨優雅,搭配黑色皮椅,襯托出空間的高階感。
簡約的廚房,美得像個工藝品,360度拉伸的水龍頭和櫥櫃無拉手設計,凸顯設計的細緻用心。
幸福就是簡單的飯食,來自家人的精美廚藝,親手蒸煮的香,伴隨著晚餐時的歡聲笑語。
走廊隱藏式分割槽儲存,減少了因櫃子帶來的壓抑感和存在感,各類物品做到了準確分割槽儲存。
主臥採用粉色加米色,營造極簡的舒適感,是的,臥室不僅僅是身體休息的地方,更是享受簡單寧靜的地方。
兒童房小主人是6歲小男孩,採用的主色調是藍色,藍色表現出冷靜、理智、安詳與廣闊。
背景牆上的火箭、太空星系也是為小男孩的興趣而設計的,他躺在床上,彷彿置身於無邊無際的宇宙之中,享受著無窮無盡的神秘感。
主衛採用長虹玻璃推拉門,乾溼分割槽的功能設計,採光通風極佳,生活的精緻來自精心設計。
收藏
客衛白色的花灑搭配灰色牆磚,永恆經典。設計師在牆上設計了壁龕,將空間的收納和整體色調實現了完美統一。
下班後的洗漱,細聽流水的音符,家就是溫馨的港灣。
